
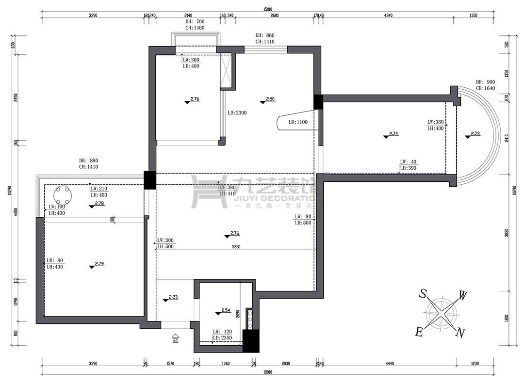
改造前:
①采光不足,动线不合理。
②收纳空间不足,无法满足日常储物需求。
业主诉求:
本案是旧房改造,业主一家三口。想要一个开放式厨房,水吧台,两个房间,洗手间要大,洗菜盆台面高度要90厘米;洗碗机+消毒柜+蒸烤箱+净水器+中央空调;收纳空间要很多很多很多……

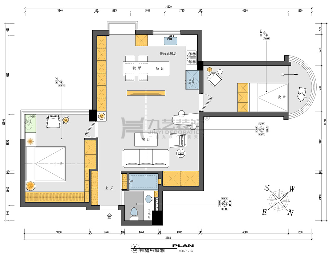
改造后:
①全屋容下 鞋柜+工具柜+储物柜+书柜+酒柜+主卧衣柜,为业主的日常物资进行有效的分类收纳。
②客厅的一个房间拆除,与原先开放式厨房合并,改为餐厨区域,沿着墙面设计L型开放式厨房,使餐桌、岛台形成洄游空间。
③保留两个房间,主卧生活阳台并入卧室,扩大面积;次卧使用柜体作隔断,床头对着弧形阳台,将屋外城市景观引入室内。
④洗手间扩大,做好干湿分离。

进门玄关,对比之前显得空无一物,柜体藏露结合增加空间层次感,
白色+浅灰蓝的搭配清爽自然,玄关客厅餐厨一镜到底,增加视觉纵深感。

客厅保留船木吧台,拆除儿童房间后,整个空间恢复原本的开阔。
沿着墙面安排书柜,吧台也是工作台。



半墙电视柜分离客厅和餐厨区域,起收纳和隔断作用。

餐厨区域,沿着墙面设计L型开放式厨房,使餐桌、岛台形成洄游空间。

L型开放式厨房设计,将烤箱、洗碗机、冰箱嵌入进柜体,将空间利用最大化。


主卧生活阳台打通纳入室内,不但内部布局更加合理美观,同时也扩大主卧的空间尺度。



淋浴间的玻璃门是整个空间的点睛之笔。

洗手间整体是现代简约风格,瓷砖通铺,整体效果出来后特别显大有质感。
本案是旧房改造,业主一家三口,想要一个开放式厨房,水吧台,两个房间,洗手间要大,洗菜盆台面高度要90厘米;洗碗机+消毒柜+蒸烤箱+净水器+中央空调;超强的收纳空间……