
客户诉求
CUSTOMER DEMANDS
对自我从事的职业,行业及经济发展态势有乐观的预期;崇尚闹中取静的都市生活;具有既让自己和家人生活的更舒适的理性需求,又有尊贵、社会地位及体面的感性要求。

设计理念
DESIGN CONCEPT
遵循建筑原有特征,在现有建筑外观结构和材质上做轻度调整,采用典型的“包豪斯”建构手法,巧妙地利用大块面的断、舍、离关系,从而达到高级的建构形式。通过合理的比例与黑白对话,营造出让人耳目一新的建筑美感。
将原有过小窗户改成大落地窗,满足采光需求,让阳光洒入房间,使得室内充满阳光。在满足美观前提下同时注重防水细节,达到功能+美学+安全于一体!

1F平面布局
1F PLANE LAYOUT
一、楼梯的位置进行了统一。原建筑的楼梯并在一侧,在二楼上三楼需要经过一个过道,比较远。
二、一楼在楼梯挪到东面后,空出来的位置做了司机房,过道、新增吧台。东面设计厨房、餐厅、电梯。
三、前花园去掉鱼塘,改为车库。后花园靠近餐厅的部分改成休闲区,作就餐景观。

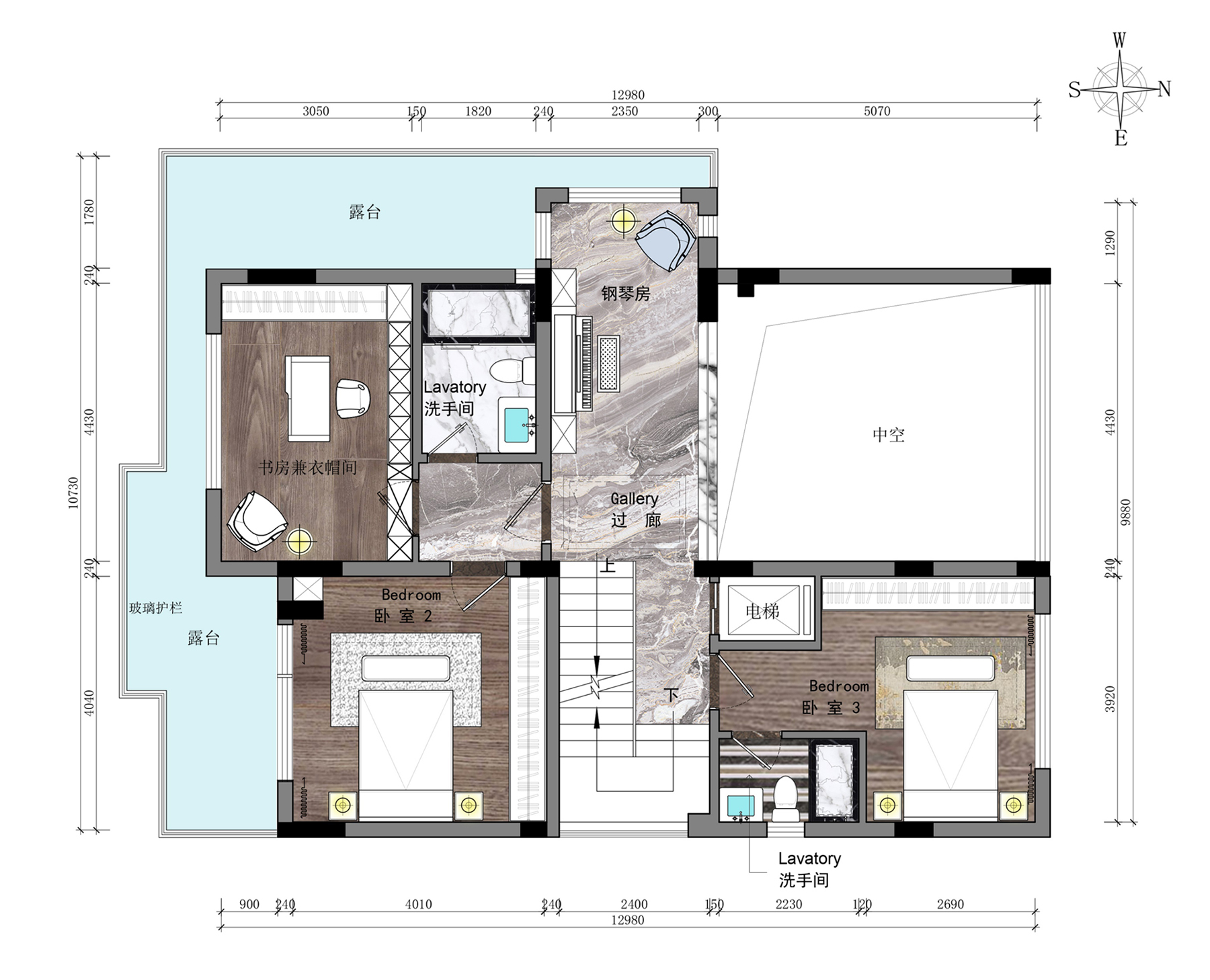
2F平面布局
2F PLANE LAYOUT
四、原先一楼到二楼的楼梯挪到东面后,空出来的区域作为钢琴区,在中空的客厅,有非常完美的音响效果。
五、南面的房间改为大套间,其中一个房间作为书房衣帽间。

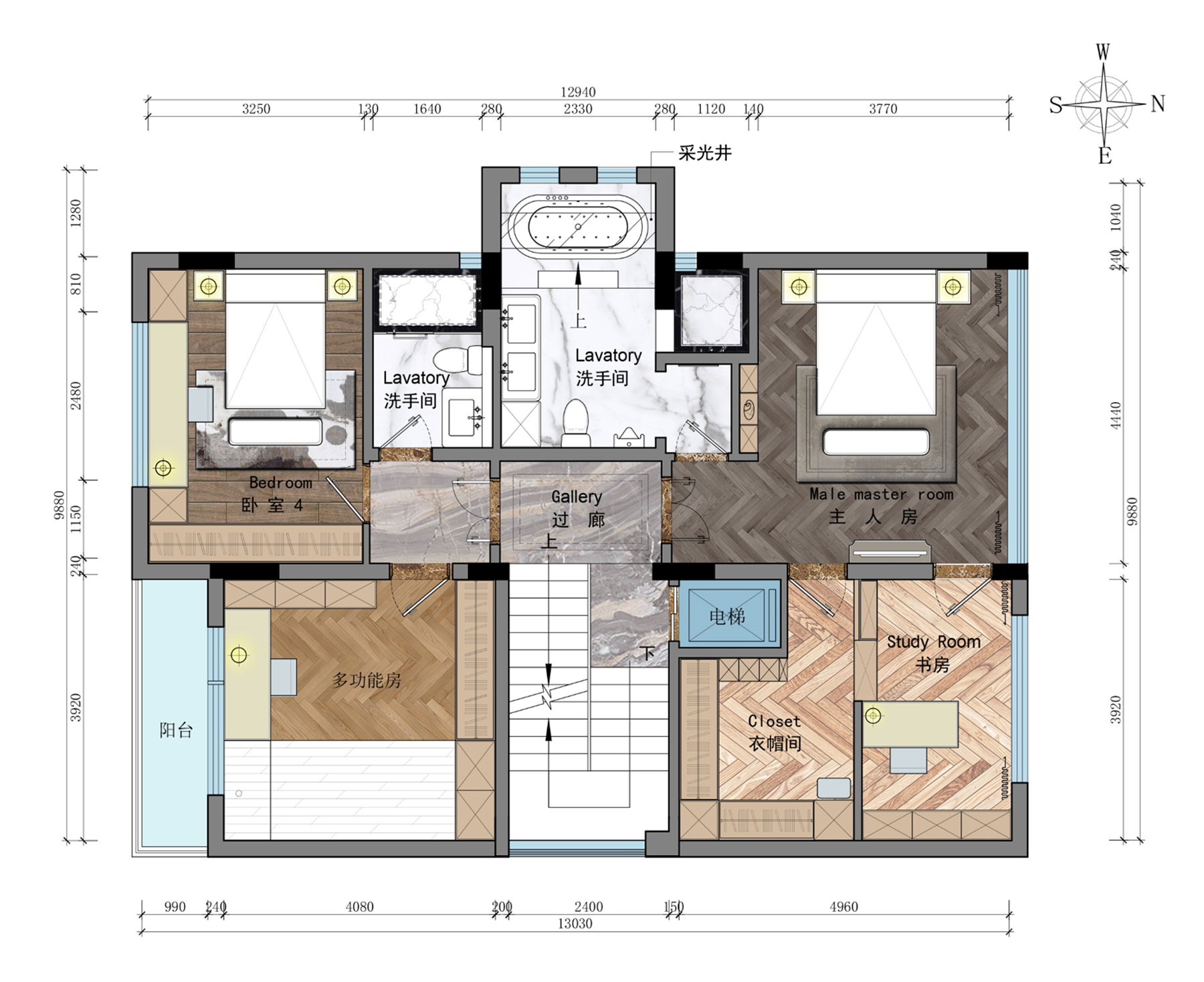
3F平面布局
3F PLANE LAYOUT
七、天台采光井盘活作为阳光浴房。
八、南北四个房间,分别改为两个大套间。

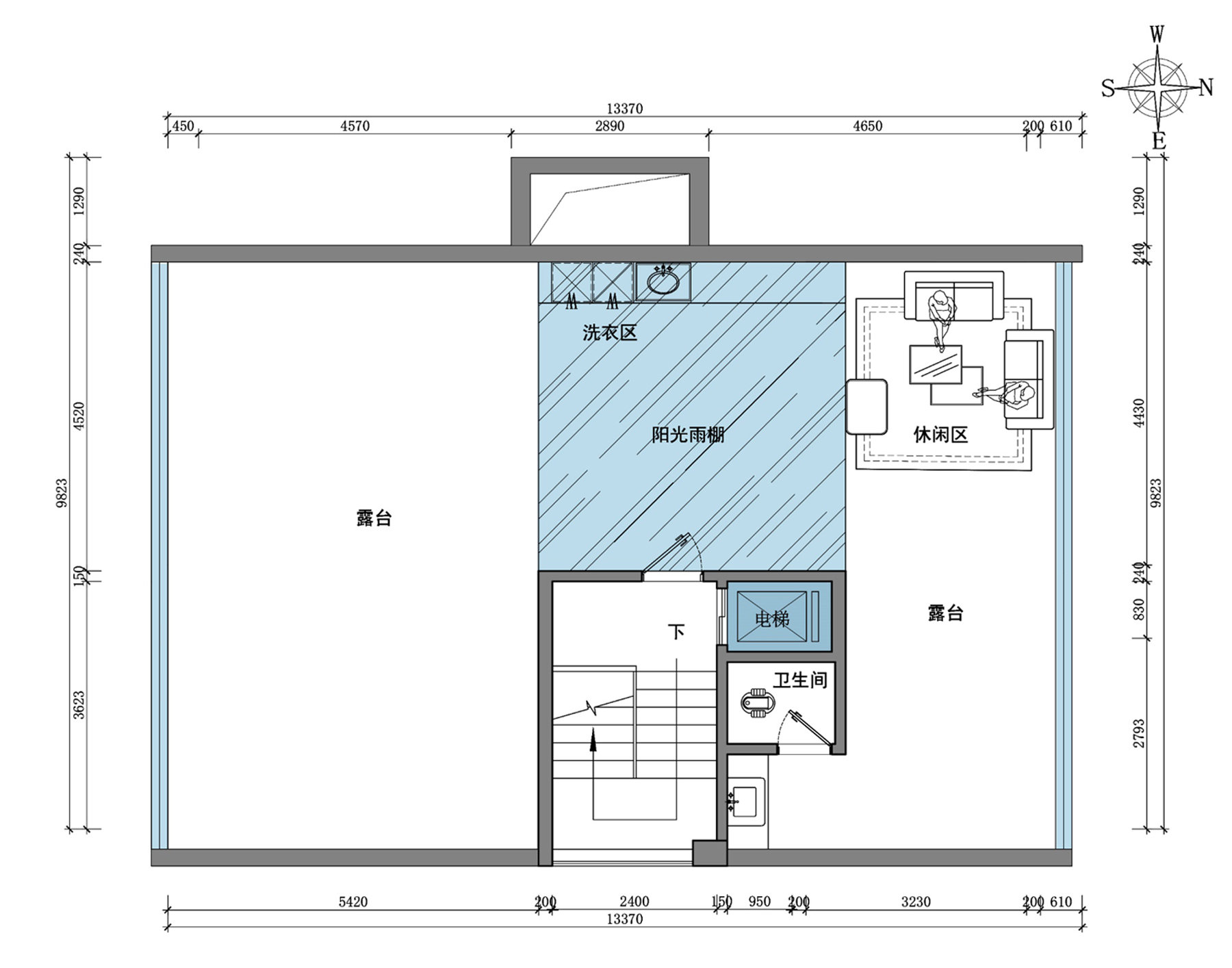
4F平面布局
4F PLANE LAYOUT
顶层区域设计为露台、休闲区和洗衣区、不浪费一寸空间。

玄关设计采用较空灵手法,在选择性保留原有结构基础上,重构其形式与组合。
除去多余的装饰,让自然的风和气息在室内自由流通,让空间呈现自由、开放、清净、豁达、流畅的意念,体现业主的态度与品味非凡!


1F客厅
1F LIVING ROOM
挑高的客厅充分满足了自然采光,大大展示了别墅空间的魅力。
大面积留白处理与线性结构穿插,提升了整体空间流畅性。
石材与铝木材质的交相辉映,折射出轻奢的质感效果。
在软装的衬托下,灰白的纱帘会记录风的形状,与中空客厅交相呼应、张弛有度,感性与理性共存,相得益彰。

2F休闲厅
2F LEISURE HALL
休闲厅视野通透,地面云石灰的纹理使整个区域绵亘流长。

餐厅
DINING ROOM
龟:作为吉祥四灵之一,寓意:长寿
风水角度:五行属水,利于财运.
通过龟型图案作为餐厅拼花的元素,暗寓:吉祥、健康、财运通达!

西餐厅
WESTERN DINIING ROOM
过厅空间采用大量白色原石为主,木饰面为辅 再以铜合金的金属质感穿插其间,点、线、面结合,勾勒出清晰的空间轮廓
构造出优雅大气的空间,使得空间气流顺畅,明朗!

厨房
KITCHEN
餐厨空间,满足其功能的前提,注重屋主的生活习惯,通过储藏→烹饪→试菜→传菜→用餐,规律整洁有序,营造一种良好的饮食习惯。
结构设计力求简约,避免出现赘余的装饰,不便于清洁,在色彩搭配上采用豪车的烤漆蓝色选择,给人清新、明朗、干净、精神的氛围!


1F客卧
1F GUEST ROOM
1F客房主要以接待客人为主,提供休息、睡眠区域,面积适宜为妥。
由于建筑结构梁的限制,作了“凸”型天花设计,包裹住结构梁,解决其带来的矛盾与美观问题。
用绿色和暖灰色点缀空间,营造安静祥和的睡眠空间。

2F大套间
2F SUITE ROOM
色彩上柔和搭配,灯光采用见光不见灯设计手法,光照度在3000~3800K上下,使空间明亮柔和以达到舒适惬意的卧室空间!

3F主人房
3F MASTER ROOM
高级灰配合方案,6+3+1法则提升空间档次,高贵时尚,大落地玻璃的采用,临江而望,视野开阔,展现王者风范,气宇轩昂!

1F司机房
1F DRIVER ROOM
空间以淡雅素色为主,突出简洁明快,从而在视觉上拓宽空间的效果。

3F套房
3F SUITE ROOM
在暖灰色的大基调下,采用石墨蓝的色彩进行互补,对比,营造一个舒适活跃的氛围。

3F多功能房
3F MULTI FUNCTION ROOM

2F大套间书房
2F LARGE SUITE STUDY
温暖的灰色基调与柔软的地毯,雅致的灯光与柔和的木地板间形成整体和谐的氛围,营造一个宁静舒缓的书房空间。
艺术挂画的装饰点缀,让空间艺术气息十足。

3F大套间书房
3F LARGE SUITE STUDY
采用大落地玻璃的使用,让自然的风景透过窗,映入眼帘。
徐徐的微风吹进书房,纱帘在高级的地板上写下诗意的篇章,惬意祥和,充满幸福感!

3F大套房衣帽间
3F LARGE SUITE CLOAKROOM
衣帽间的设计预留的一扇小窗,为女主妆扮提供明亮的采光。
打破传统的衣帽间格局,提倡点、线光源的结合,让质朴的空间增添活跃气息!


2F卫生间
2F TOILET
天然石材的独特运用,通过错拼组合等手法让卫生间产生独特的魅力!

3F卫生间
3F TOILET
卫生间设计整体以白色为主,但又要有层次区别,给人一种干净利索的空间,同时工艺细节以及人文情怀也要体现出来,海景大油画的布置就很好的体现了这一点。
给沐浴增添了一道亮丽的风景,具有一定的浪漫主义精神体现了屋主对高品质生活的追求理念。

楼梯
STAIRS
“四叶草”寓意“幸运草”象型上又有财富的寓意。
大面积的高级灰整体控制,采用6+3+1法则,金属质感点亮空间氛围,轻奢韵味油然而生。
遵循建筑原有特征,在现有建筑外观结构和材质上做轻度调整,采用典型的“包豪斯”建构手法,巧妙地利用大块面的断、舍、离关系,从而达到高级的建构形式。通过合理的比例与黑白对话,营造出让人耳目一新的建筑美感。
将原有过小窗户改成大落地窗,满足采光需求,让阳光洒入房间,使得室内充满阳光。在满足美观前提下同时注重防水细节,达到功能+美学+安全于一体!