乐动体育

九艺装饰(三星装饰)

广州
切换城市
自营公司
  • 广州市
  • 肇庆市
  • 惠州市
  • 汕头市
  • 湛江市
  • 赣州市
  • 泉州市
  • 漳州市
  • 南安市
  • 福州市
  • 镇江市
  • 威海市
  • 六盘水
  • 东莞市
  • 海口市
装修报价咨询热线: 177-8888-9250
您的当前位置: 乐动体育 › 装修案例
600㎡大平层无敌江景奢宅,对望广州塔
600㎡大平层无敌江景奢宅,对望广州塔
本案业主代表当下社会精英阶层,对生活品质有自己感知和追求。设计师结合业主的生活轨迹,以现代简约为基调,融入港式轻奢于生活空间中。滨江高层住宅,让家回归大自然。正如安腾忠雄所言:奢华的家要有安静的感觉,触动心灵深处!
  • 装修公司
    九艺装饰
  • 装修楼盘
    华标品峰
  • 装修风格
    轻奢
  • 户型结构
    大平层
  • 装修面积
    600平方
  • 设计师
    柏晓辉
0
  • 全部
  • 户型图
  • 玄关
  • 客厅
  • 餐厅
  • 厨房
  • 主卧
  • 次卧
  • 儿童房
  • 书房
  • 衣帽间
  • 卫生间
  • 阳台
  • 其他
  • 设计说明
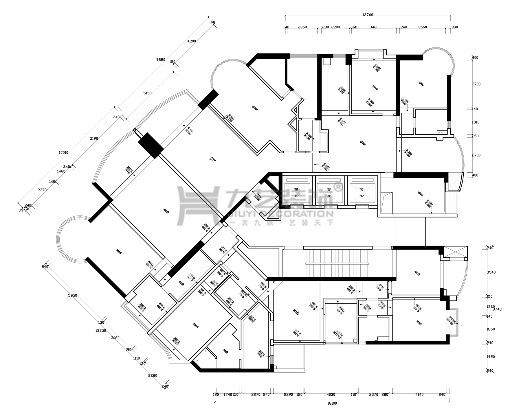
  • 户型图JIUYIDES
    原始户型图
  • 平面户型方案图

    方案说明


    SCHEME DESCRIPTION

    168米天幕尺度上,山海苍绿、城市璀璨;360°云端景观面,映收天际画卷;滨江大宅,云端之上与自然话生活,礼遇非凡人生。

    本案业主代表当下社会精英阶层,对生活品质有自己感知和追求。

    设计师结合业主的生活轨迹,以现代简约为基调,融入港式轻奢于生活空间中。滨江高层住宅,让家回归大自然。正如安腾忠雄所言:奢华的家要有安静的感觉,触动心灵深处!

  • 玄关JIUYIDES
    玄关
  • 客厅JIUYIDES
    客厅全景视角

    客厅


    LIVING ROOM

    从门厅步入客厅,便是一个新天地。

    大幅全尺度的落地窗设计,拉伸了空间的延伸感,引入自然光线。

    大理石纹路的地砖、茶几,低饱和度的沙发,融入木纹路,显得低调而纯粹。

    在这里,对望广州塔,尽享珠江之美景。

  • 客厅
  • 客厅电视面
  • 客厅阳台区
  • 客厅品酒区

    酒品区


    WINE TASTING AREA

    客厅以沙发作为隔断, 模糊品酒区和客厅两个空间界限, 赋予待客空间整体感,增加空间的互动性。 

    休闲的品酒区以木纹理打底,温润平和的氛围成为卸下疲惫的所在。

    西厨中岛吧台上, 咖啡、烘培、葡萄美酒, 雅致不失时尚。

    放眼望去,简洁的造型和统一的色调,共同营造和谐韵律。

  • 休闲区

    休闲区


    LEISURE SPACE

    象牙白与雅粽相搭配,延续整屋的风格。一面墙的柜子藏着不少美酒。

    休闲的时候,与爱人吐纳着微醺,感受优雅、浪漫。

  • 餐厅JIUYIDES
    餐厅

    餐厅


    DINING ROOM

    家中生活本味来自餐厅。

    木格栏镜面开阔视野,把江畔的气息引入屋内。

    格栏将镜面风景切割,与窗外珠江景色相互交融。

    温润的自然木元素凝聚了家的中心。

    • 主卧JIUYIDES
      主卧

      主人房


      MASTER ROOM

      套间一,延伸了整个空间的格调。两个方位大面积的飘窗,饱览广阔珠江美景。

      设计上去繁就简,木地板、大白墙,金边修饰恰到好处。

      局部以英式床屏和深棕厚窗帘点缀,去除主灯,采用分散型射灯和灯带,光线柔和,带来身心无限放松。

    • 次卧JIUYIDES
      次卧套间

      套间二


      SUITE TWO

      套间二稍微多了点轻奢典雅装饰。

      270度落地窗观赏珠江风景,让入住者感受到星级酒店的礼遇。

    • 套间

      套间三


      SUITE THREE

      套间三的设计以中性低调的深棕色为主,搭配象牙白柜台,赋予高端沉稳的绅士格调。

      落地窗视野极佳,多人沙发和茶几在自然光的映射下更显质感,让人感受到一种城市的美。

    • 儿童房JIUYIDES
      男孩房

      设计师在软装上采用饱和度偏低的绿,来搭配几何图案的白墙、自然木地板,使色调与全屋保持统一。

      摆上玩具书籍,高档次的同时,不缺清新明快的童真氛围。

    • 女孩房
        • 卫生间JIUYIDES
          卫生间

          这是其中一个卫浴区域。

          在高空中,宽敞的浴缸里,洗去一身的疲惫,享受无与伦比的沐浴体验。

            168米天幕尺度上,山海苍绿、城市璀璨;360°云端景观面,映收天际画卷;滨江大宅,云端之上与自然话生活,礼遇非凡人生。

            本案业主代表当下社会精英阶层,对生活品质有自己感知和追求。

            设计师结合业主的生活轨迹,以现代简约为基调,融入港式轻奢于生活空间中。滨江高层住宅,让家回归大自然。正如安腾忠雄所言:奢华的家要有安静的感觉,触动心灵深处!

            本案设计师简介
            柏晓辉
            设计五部 设计经理
            从业年限:18 年 | 精选案例:12套
            擅长风格:港式、现代、轻奢、欧式、轻奢
            预约TA
            我家装修需要多少钱?10秒估算一下
            装修估算
            装修计算器已经有 16508 业主获取了装修预算
            • 您的称呼:
            • 手机号码:
            • 所在城市:
            • 房屋面积:
            装修预算报价为:184657
            • 材料费:18897
            • 人工费:24514
            • 设计费:4988 元
            • 管理费:8504 元
            * 报价价格仅供参考,实际装修价格以人工报价为准
            九艺简介
            乐动体育-乐动体育官方网站|LEDONGSPORTS 热线
                177-8888-9250
            地址:广州市天河区珠江新城花城大
            道2号名门大厦首层
            预约设计
            扫一扫,微信沟通
            扫一扫,微信沟通
            Copyright@2021-2025 architectephilippegobin.com All Rights Reserved 乐动体育-乐动体育官方网站|LEDONGSPORTS 版权所有
            《中华人民共和国电信与信息服务业务经营许可证》
            X
            我要预约
            装修顾问将在预约后24小时内与您联系
            • 您的姓名
            • 您的手机号
            • 房屋的面积
            * 为了您的利益和我们的口碑,我们将严格保密您的个人隐私
            X
            设计方案
            定制您的专属设计方案