乐动体育

九艺装饰(三星装饰)

广州
切换城市
自营公司
  • 广州市
  • 肇庆市
  • 惠州市
  • 汕头市
  • 湛江市
  • 赣州市
  • 泉州市
  • 漳州市
  • 南安市
  • 福州市
  • 镇江市
  • 威海市
  • 六盘水
  • 东莞市
  • 海口市
装修报价咨询热线: 177-8888-9250
您的当前位置: 乐动体育 › 装修案例
锦绣香江-142㎡《烟灰色》
锦绣香江-142㎡《烟灰色》
现代简约风格的主要设计理念是简洁、舒适,没有多余的装饰,线条简单,室内空间大方。简约风格的设计不是缺乏设计要素,而是一种更高层次的设计境界。在满足功能需求的前提下,将空间、人及物品进行合理精致的组合,用最洗练的笔画,描绘出最简洁素雅的空间效果,这是设计艺术的最高境界。用最少的元素,去满足人们的设计需求,这个需要设计师去思考,实践。现代简约风格不是造型简陋、工艺简单的为简约设计,其从布局到材料颜色的搭配、物品的摆放都非常的讲究,这需要设计师的反复思量和考究。
  • 装修公司
    九艺装饰
  • 装修楼盘
    锦绣香江
  • 装修风格
    现代
  • 户型结构
    二居室
  • 装修面积
    142平方
  • 设计师
    眭力凡
0
  • 全部
  • 户型图
  • 玄关
  • 客厅
  • 餐厅
  • 厨房
  • 主卧
  • 次卧
  • 儿童房
  • 书房
  • 衣帽间
  • 卫生间
  • 阳台
  • 其他
  • 设计说明
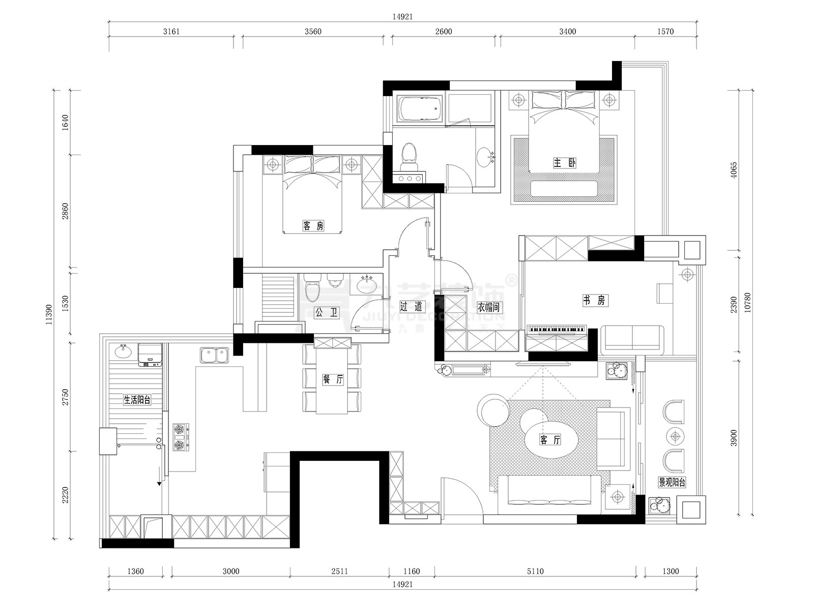
  • 户型图JIUYIDES
    平面户型图
  • 玄关JIUYIDES
    玄关
  • 客厅JIUYIDES
    客厅
  • 客厅
  • 客厅
  • 餐厅JIUYIDES
    餐厅
  • 餐厅
  • 厨房JIUYIDES
    厨房
  • 厨房
  • 主卧JIUYIDES
    主卧
  • 主卧
      • 书房JIUYIDES
        书房
        • 卫生间JIUYIDES
          卫生间

            现代简约风格的主要设计理念是简洁、舒适,没有多余的装饰,线条简单,室内空间大方。简约风格的设计不是缺乏设计要素,而是一种更高层次的设计境界。在满足功能需求的前提下,将空间、人及物品进行合理精致的组合,用最洗练的笔画,描绘出最简洁素雅的空间效果,这是设计艺术的最高境界。用最少的元素,去满足人们的设计需求,这个需要设计师去思考,实践。现代简约风格不是造型简陋、工艺简单的为简约设计,其从布局到材料颜色的搭配、物品的摆放都非常的讲究,这需要设计师的反复思量和考究。

            本案设计师简介
            眭力凡
            专家设计师
            从业年限:13 年 | 作品案例:8套
            擅长风格:简约、轻奢、现代、中式、混搭
            预约TA
            我家装修需要多少钱?10秒估算一下
            装修估算
            装修计算器已经有 16508 业主获取了装修预算
            • 您的称呼:
            • 手机号码:
            • 所在城市:
            • 房屋面积:
            装修预算报价为:184657
            • 材料费:18897
            • 人工费:24514
            • 设计费:4988 元
            • 管理费:8504 元
            * 报价价格仅供参考,实际装修价格以人工报价为准
            九艺简介
            乐动体育-乐动体育官方网站|LEDONGSPORTS 热线
                177-8888-9250
            地址:广州市天河区珠江新城花城大
            道2号名门大厦首层
            预约设计
            扫一扫,微信沟通
            扫一扫,微信沟通
            Copyright@2021-2025 architectephilippegobin.com All Rights Reserved 乐动体育-乐动体育官方网站|LEDONGSPORTS 版权所有
            《中华人民共和国电信与信息服务业务经营许可证》
            X
            我要预约
            装修顾问将在预约后24小时内与您联系
            • 您的姓名
            • 您的手机号
            • 房屋的面积
            * 为了您的利益和我们的口碑,我们将严格保密您的个人隐私
            X
            设计方案
            定制您的专属设计方案