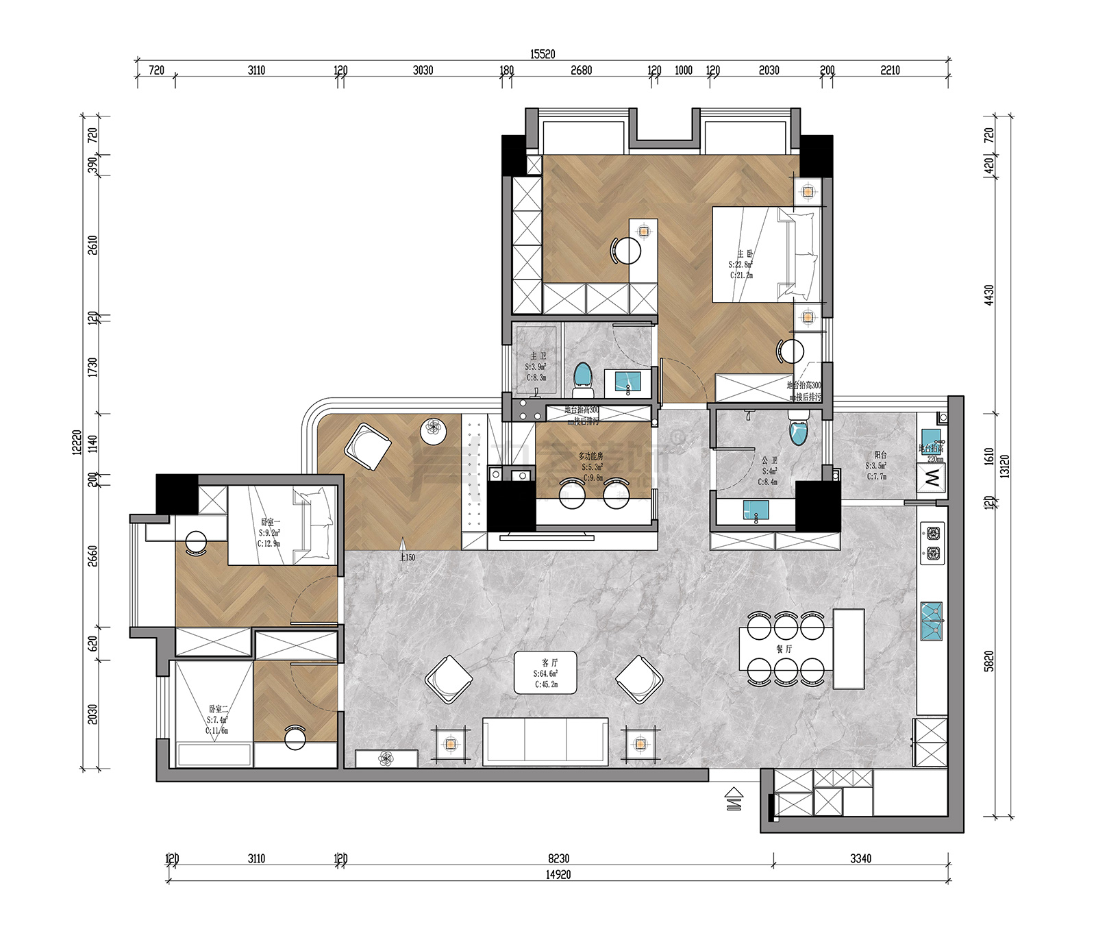
本案为旧房翻新,设计师为客户打造一个开放式的情感交流空间,将客,餐,厨及休闲区联动起来,动线流畅,通过阳台和休闲区通风采光,保障整个空间通透空气流通,主卧套间在一偶,内置衣帽间及化妆一体宽敞明亮,独立又通透的书房写作区,让整体与过道空间感增大不少,两个小孩房用纯真的色彩及饰品搭配,视觉上更显宽敞温馨,搭配多个储物柜,两个小孩家也不乱。