








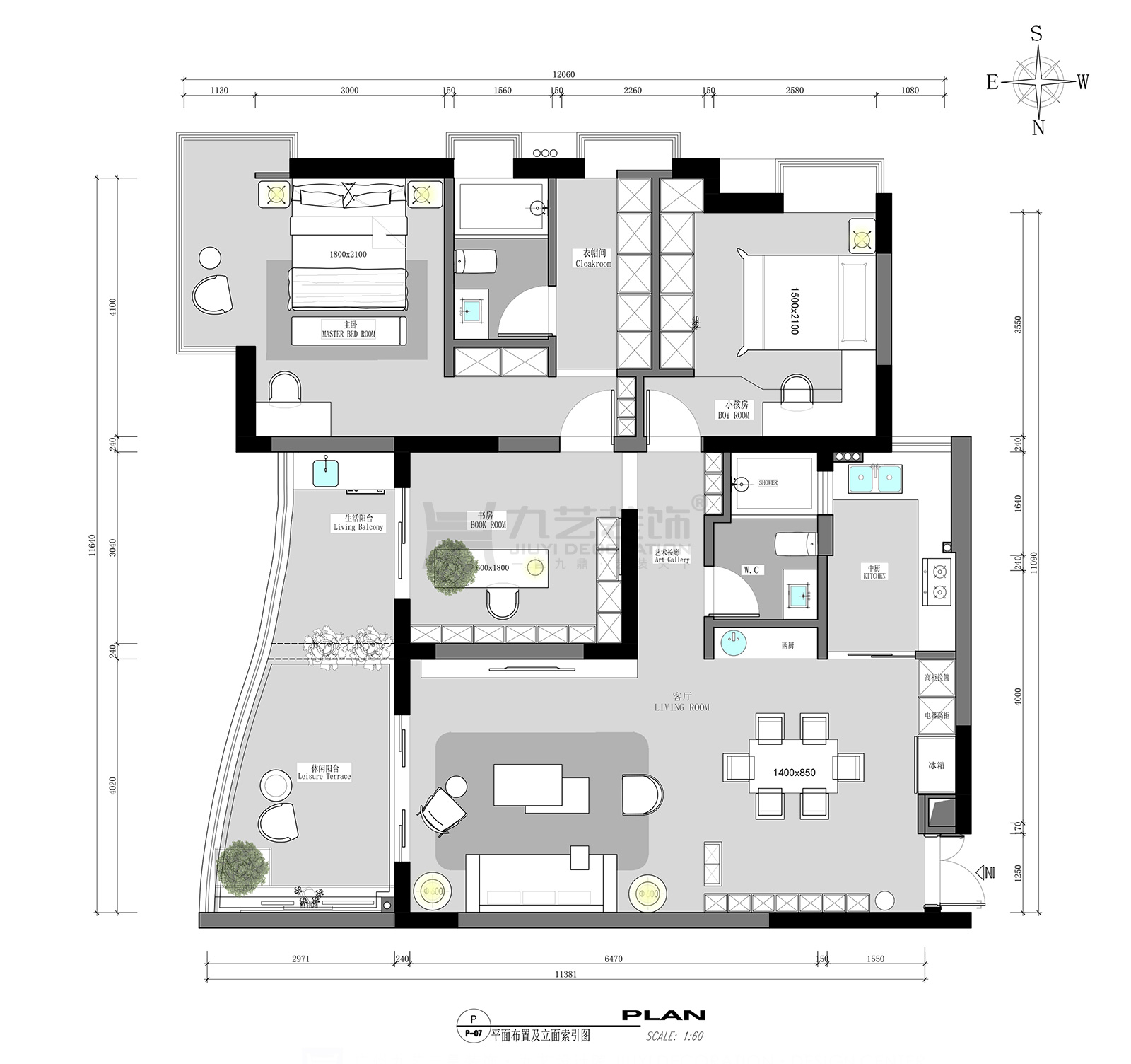
本案的业主是一对恩爱的夫妻,有一个准备上大学的儿子,对于这个家,业主非常注重整体落地与品控,希望可以在高品位的家居中享受生活的惊喜。出于生活实用与视觉审美的考虑,业主选择将这套二次装修的房子的装修全部拆除,希望保留原有的实木餐桌,最终以高级、精致且浪漫的新中式风格完美落地。整个装修过程,我们感受到了男女主人之间浓浓的爱意,对于女主人的想法和需求,男主人无一不支持配合,以至于这个家也以女主人为中心呈现。因此,我们给本案起名《梦幻竹林》,希望业主在未来的悠悠岁月里,享受生活的惊喜,幸福绵长。
设计方案解析
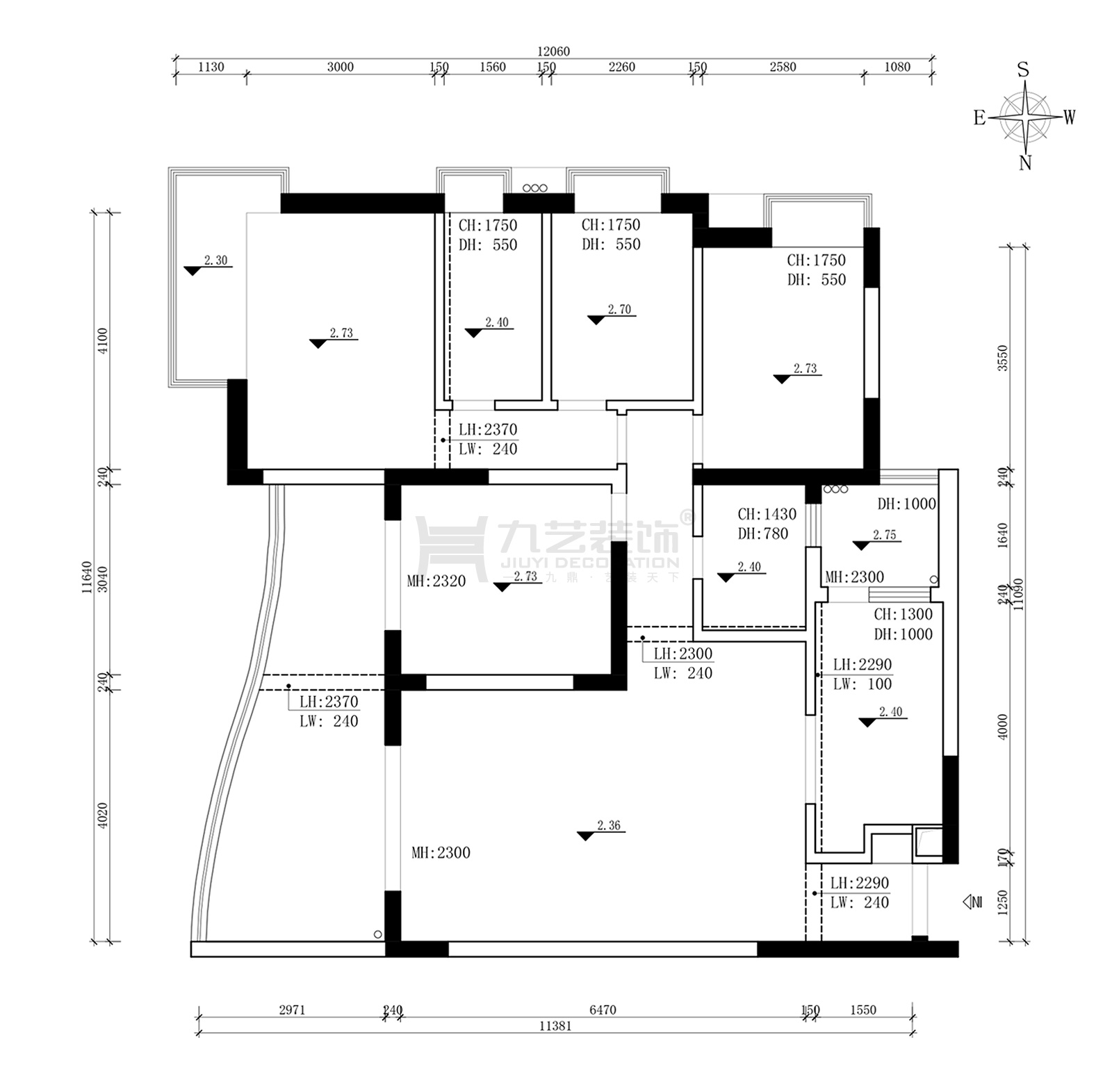
原始户型140㎡的面积拥有三室两卫和超大的横厅,完全满足一家三口的居住需求,但是基于业主的需求,我们从生活品质与舒适度的层面出发,将:
① 玄关收纳需要重点考虑,前厅鞋柜可以考虑常用的,玄关鞋柜可考虑换季或细化功能,正衣镜及对景屏风柜!
② 生活阳台使用率不高,改变厨房结构并利用餐厅空间实现中西厨。释放阳台的空间,让餐厅形成环绕动线。
③ 休闲阳台空间占的比重相对较大,为了提高空间使用率。可划分为生活阳台、休闲阳台两大功能使用区域