乐动体育

九艺装饰(三星装饰)

广州
切换城市
自营公司
  • 广州市
  • 肇庆市
  • 惠州市
  • 汕头市
  • 湛江市
  • 赣州市
  • 泉州市
  • 漳州市
  • 南安市
  • 福州市
  • 镇江市
  • 威海市
  • 六盘水
  • 东莞市
  • 海口市
装修报价咨询热线: 177-8888-9250
您的当前位置: 乐动体育 › 装修案例
东晖花园-140㎡空间重新焕发活力!
东晖花园-140㎡空间重新焕发活力!
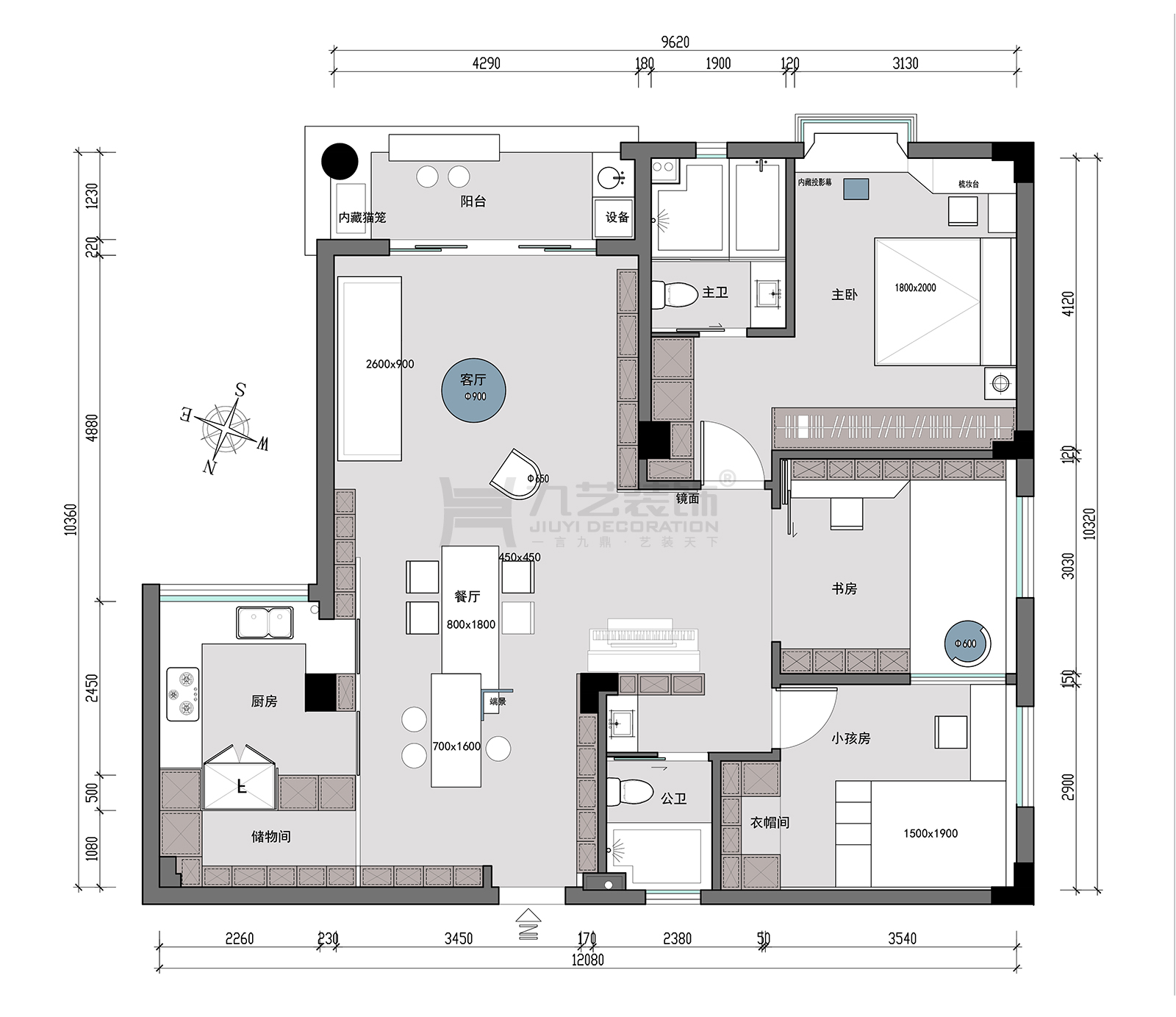
本案户型非常方正,开间都是小方块,客户希望能有更加通透开放的空间,希望每个区域之间关系衔接紧密的同时能做到适当的区分;设计初始希望能打破常规,倾向一些结构性的做法,运用了大量的结构组合的方式,来营造空间关系,色彩上面大胆的采用深色的材质强调空间层次,处理块面过渡关系,使空间化零为整。
  • 装修公司
    九艺装饰
  • 装修楼盘
    东晖花园
  • 装修风格
    简约
  • 户型结构
    三居室
  • 装修面积
    140平方
  • 设计师
    孙林超
0
  • 全部
  • 户型图
  • 玄关
  • 客厅
  • 餐厅
  • 厨房
  • 主卧
  • 次卧
  • 儿童房
  • 书房
  • 衣帽间
  • 卫生间
  • 阳台
  • 其他
  • 设计说明
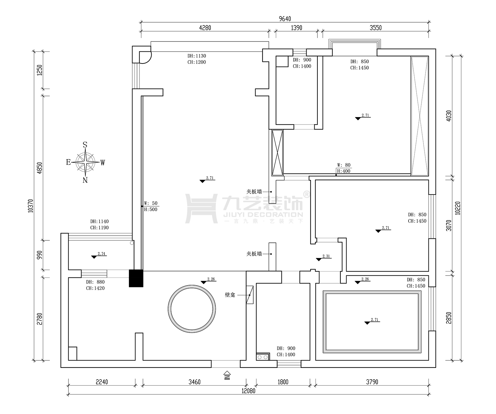
  • 户型图JIUYIDES
    原始户型图
  • 平面户型图
    • 客厅JIUYIDES
      客厅
    • 客厅
    • 客厅
    • 餐厅JIUYIDES
      餐厅
      • 主卧JIUYIDES
        主卧
      • 主卧
        • 儿童房JIUYIDES
          儿童房
        • 书房JIUYIDES
          书房

                本案户型非常方正,开间都是小方块,客户希望能有更加通透开放的空间,希望每个区域之间关系衔接紧密的同时能做到适当的区分;设计初始希望能打破常规,倾向一些结构性的做法,运用了大量的结构组合的方式,来营造空间关系,色彩上面大胆的采用深色的材质强调空间层次,处理块面过渡关系,使空间化零为整。

                本案设计师简介
                孙林超
                设计六部 设计经理
                从业年限:13 年 | 作品案例:10套
                擅长风格:新中式、北欧、现代、简约
                预约TA
                我家装修需要多少钱?10秒估算一下
                装修估算
                装修计算器已经有 16508 业主获取了装修预算
                • 您的称呼:
                • 手机号码:
                • 所在城市:
                • 房屋面积:
                装修预算报价为:184657
                • 材料费:18897
                • 人工费:24514
                • 设计费:4988 元
                • 管理费:8504 元
                * 报价价格仅供参考,实际装修价格以人工报价为准
                九艺简介
                乐动体育-乐动体育官方网站|LEDONGSPORTS 热线
                    177-8888-9250
                地址:广州市天河区珠江新城花城大
                道2号名门大厦首层
                预约设计
                扫一扫,微信沟通
                扫一扫,微信沟通
                Copyright@2021-2025 architectephilippegobin.com All Rights Reserved 乐动体育-乐动体育官方网站|LEDONGSPORTS 版权所有
                《中华人民共和国电信与信息服务业务经营许可证》
                X
                我要预约
                装修顾问将在预约后24小时内与您联系
                • 您的姓名
                • 您的手机号
                • 房屋的面积
                * 为了您的利益和我们的口碑,我们将严格保密您的个人隐私
                X
                设计方案
                定制您的专属设计方案