乐动体育

九艺装饰(三星装饰)

广州
切换城市
自营公司
  • 广州市
  • 肇庆市
  • 惠州市
  • 汕头市
  • 湛江市
  • 赣州市
  • 泉州市
  • 漳州市
  • 南安市
  • 福州市
  • 镇江市
  • 威海市
  • 六盘水
  • 东莞市
  • 海口市
装修报价咨询热线: 177-8888-9250
您的当前位置: 乐动体育 › 装修案例
鑫隆世家-150㎡现代简约《Dream Home》
鑫隆世家-150㎡现代简约《Dream Home》
本案是幸福的一家四口,男业主常年经商,四处奔波,现也因疫情影响,想多留时间陪伴家人,买下这套顶楼复式,周围环境优美,交通方便,是理想的居住环境,所以想在此处拥有一个“Dream Home”也可享受天伦之乐。
  • 装修公司
    九艺装饰
  • 装修楼盘
    鑫隆世家
  • 装修风格
    现代
  • 户型结构
    复式
  • 装修面积
    150平方
  • 设计师
    吴明洪
0
  • 全部
  • 户型图
  • 玄关
  • 客厅
  • 餐厅
  • 厨房
  • 主卧
  • 次卧
  • 儿童房
  • 书房
  • 衣帽间
  • 卫生间
  • 阳台
  • 其他
  • 设计说明
  • 户型图JIUYIDES
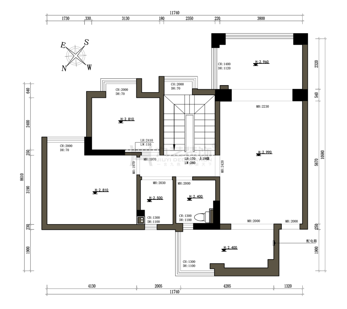
    一楼原始户型图
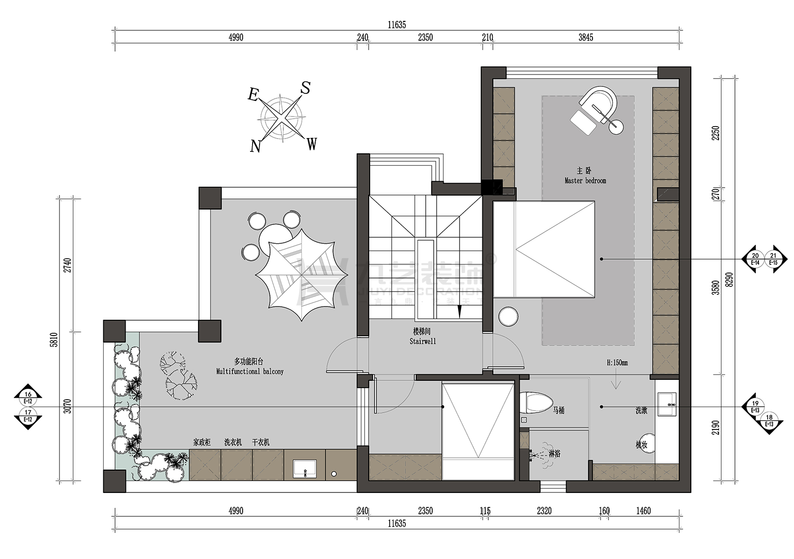
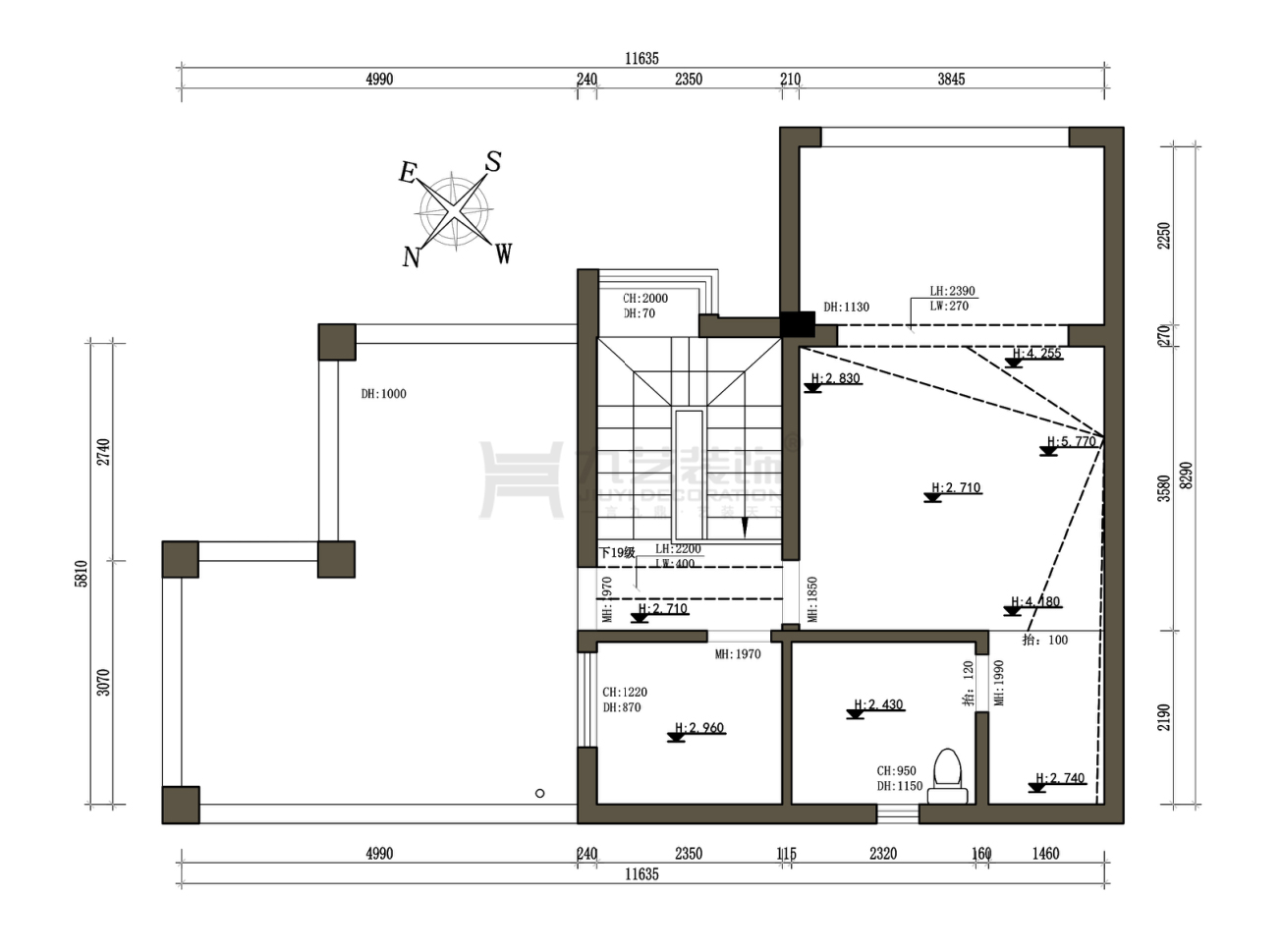
  • 二楼原始户型图

    本案是幸福的一家四口,男业主常年经商,四处奔波,现也因疫情影响,想多留时间陪伴家人,买下这套顶楼复式,周围环境优美,交通方便,是理想的居住环境,所以想在此处拥有一个“Dream Home”也可享受天伦之乐。

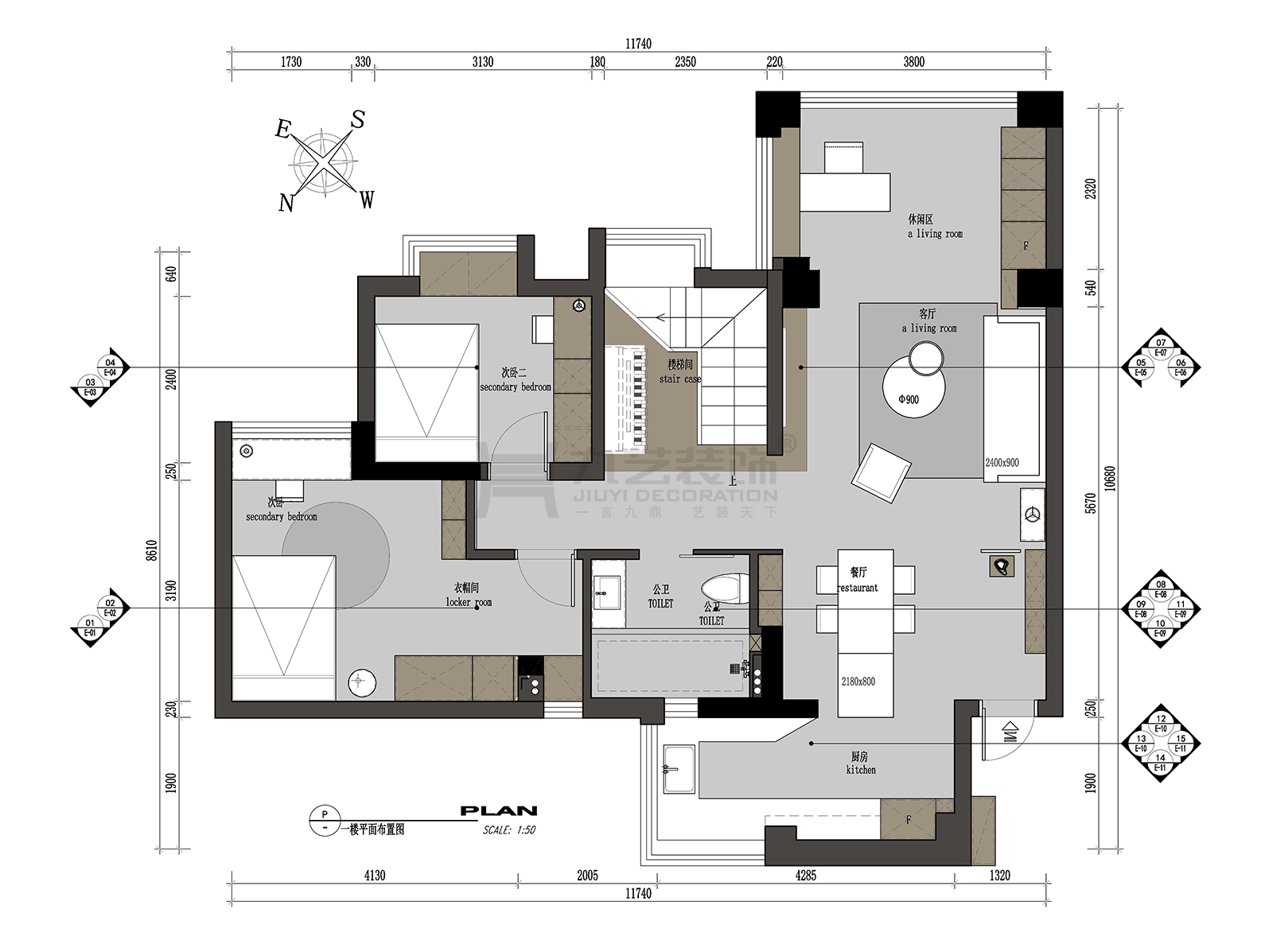
  • 一楼户型图
  • 二楼平面户型图
  • 玄关JIUYIDES
    入户玄关
  • 玄关鞋柜
  • 客厅JIUYIDES
    客厅
  • 客厅
  • 客厅
  • 客厅
  • 客厅
  • 餐厅JIUYIDES
    餐厅
  • 餐厅
  • 餐厅
  • 餐厅
  • 餐厅
  • 厨房JIUYIDES
    厨房
  • 主卧JIUYIDES
    主人房
  • 主人房
  • 主人房
  • 主人房
  • 主人房
  • 次卧JIUYIDES
    客房
  • 儿童房JIUYIDES
    儿童房
  • 儿童房

            本案是幸福的一家四口,男业主常年经商,四处奔波,现也因疫情影响,想多留时间陪伴家人,买下这套顶楼复式,周围环境优美,交通方便,是理想的居住环境,所以想在此处拥有一个“Dream Home”也可享受天伦之乐。

            本案设计师简介
            吴明洪
            资深设计师
            从业年限:8 年 | 精选案例:7套
            擅长风格:现代、极简、新中式、奶油
            预约TA
            我家装修需要多少钱?10秒估算一下
            装修估算
            装修计算器已经有 16508 业主获取了装修预算
            • 您的称呼:
            • 手机号码:
            • 所在城市:
            • 房屋面积:
            装修预算报价为:184657
            • 材料费:18897
            • 人工费:24514
            • 设计费:4988 元
            • 管理费:8504 元
            * 报价价格仅供参考,实际装修价格以人工报价为准
            九艺简介
            乐动体育-乐动体育官方网站|LEDONGSPORTS 热线
                177-8888-9250
            地址:广州市天河区珠江新城花城大
            道2号名门大厦首层
            预约设计
            扫一扫,微信沟通
            扫一扫,微信沟通
            Copyright@2021-2025 architectephilippegobin.com All Rights Reserved 乐动体育-乐动体育官方网站|LEDONGSPORTS 版权所有
            《中华人民共和国电信与信息服务业务经营许可证》
            X
            我要预约
            装修顾问将在预约后24小时内与您联系
            • 您的姓名
            • 您的手机号
            • 房屋的面积
            * 为了您的利益和我们的口碑,我们将严格保密您的个人隐私
            X
            设计方案
            定制您的专属设计方案