
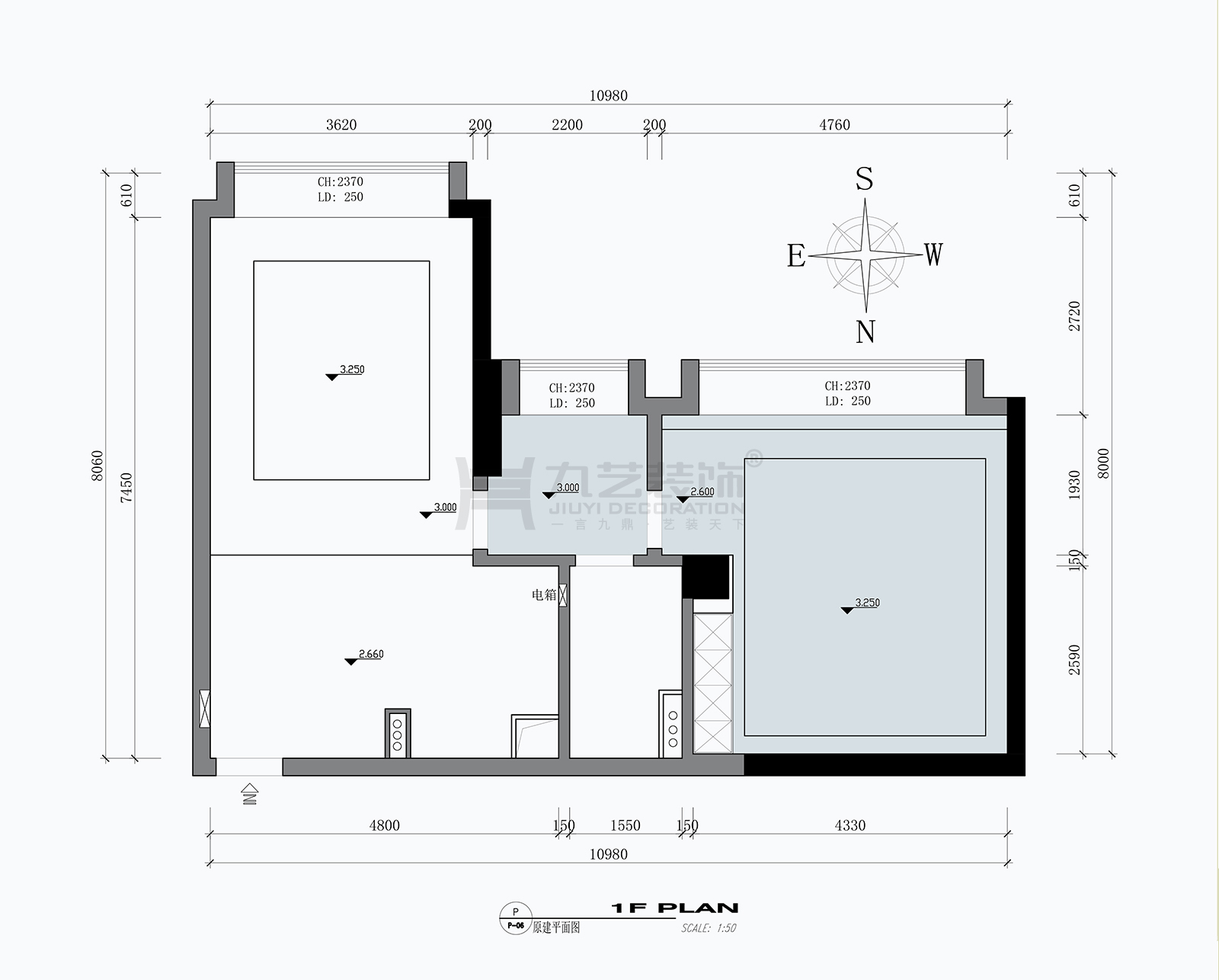
这是一套位于广州天河CBD套内面积76㎡的公寓式住宅,居住者是年轻的夫妻二人与一个两岁半的男宝宝,会有老人家帮带小孩所以希望有三个独立的卧室;男业主稳重成熟,金融行业,喜欢黑白灰的色调;女业主希望家居温馨舒适,有足够的收纳;结合空间布局,合理规划家居,呈现本案。

设计亮点:
①大套间改三室,另增一个卫生间形成主套配制。开放式厨房让公共区域显得更加开阔;
②入户小吧台结合鞋柜设计解决玄关收纳问题;
③过道区规划洗衣烘干区,功能丰富实用;
④新增1间卧室+书房,新增加主卧卫生间满足客户需求;
⑤书房设计沙发床,方便日后客人留宿。















这是一套位于广州天河CBD套内面积76㎡的公寓式住宅,居住者是年轻的夫妻二人与一个两岁半的男宝宝,会有老人家帮带小孩所以希望有三个独立的卧室;男业主稳重成熟,金融行业,喜欢黑白灰的色调;女业主希望家居温馨舒适,有足够的收纳;结合空间布局,合理规划家居,呈现本案。
设计亮点:
①大套间改三室,另增一个卫生间形成主套配制。开放式厨房让公共区域显得更加开阔。
②入户小吧台结合鞋柜设计解决玄关收纳问题;
③过道区规划洗衣烘干区,功能丰富实用;
④新增1间卧室+书房,新增加主卧卫生间满足客户需求;
⑤书房设计沙发床,方便日后客人留宿。