乐动体育

九艺装饰(三星装饰)

广州
切换城市
自营公司
  • 广州市
  • 肇庆市
  • 惠州市
  • 汕头市
  • 湛江市
  • 赣州市
  • 泉州市
  • 漳州市
  • 南安市
  • 福州市
  • 镇江市
  • 威海市
  • 六盘水
  • 东莞市
  • 海口市
装修报价咨询热线: 177-8888-9250
您的当前位置: 乐动体育 › 装修案例
侨景大厦-90㎡简约生活美学
侨景大厦-90㎡简约生活美学
本设计方案旨在简化复杂元素,追求简约而不简单的设计理念。主要空间以简洁、朴素和大气为主,同时确保实用性。在细节处理上,我们采用有限的色彩搭配,以宽敞的布局和简洁、优雅的风格为特点,营造出一个既实用又美观的居住空间。
  • 装修公司
    九艺装饰
  • 装修楼盘
    侨景大厦
  • 装修风格
    简约
  • 户型结构
    三居室
  • 装修面积
    90平方
  • 设计师
    张瑞坤
0
  • 全部
  • 户型图
  • 玄关
  • 客厅
  • 餐厅
  • 厨房
  • 主卧
  • 次卧
  • 儿童房
  • 书房
  • 衣帽间
  • 卫生间
  • 阳台
  • 其他
  • 设计说明
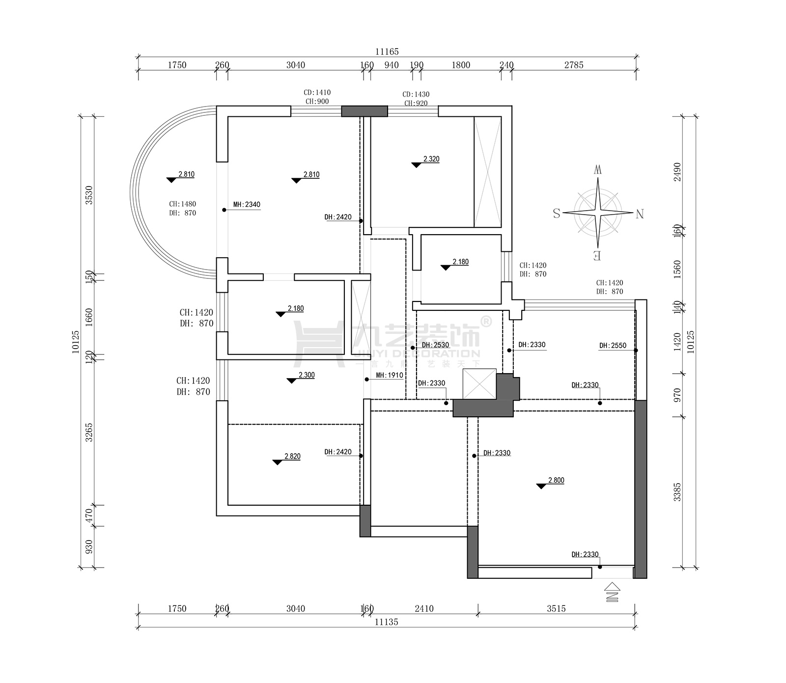
  • 户型图JIUYIDES
    原始户型图
  • 平面户型图
    • 客厅JIUYIDES
      客厅
    • 客厅
      • 厨房JIUYIDES
        厨房
      • 主卧JIUYIDES
        主卧
      • 次卧JIUYIDES
        次卧
            • 卫生间JIUYIDES
              卫生间

                业主注重生活品质,追求一个温馨而舒适的家居环境,并强调充足的收纳空间。

                本设计方案旨在简化复杂元素,追求简约而不简单的设计理念。主要空间以简洁、朴素和大气为主,同时确保实用性。在细节处理上,我们采用有限的色彩搭配,以宽敞的布局和简洁、优雅的风格为特点,营造出一个既实用又美观的居住空间。

                本案设计师简介
                张瑞坤
                资深设计师
                从业年限:6 年 | 作品案例:5套
                擅长风格:现代简约、轻奢、新中式、原木风、奶油风
                预约TA
                我家装修需要多少钱?10秒估算一下
                装修估算
                装修计算器已经有 16508 业主获取了装修预算
                • 您的称呼:
                • 手机号码:
                • 所在城市:
                • 房屋面积:
                装修预算报价为:184657
                • 材料费:18897
                • 人工费:24514
                • 设计费:4988 元
                • 管理费:8504 元
                * 报价价格仅供参考,实际装修价格以人工报价为准
                九艺简介
                乐动体育-乐动体育官方网站|LEDONGSPORTS 热线
                    177-8888-9250
                地址:广州市天河区珠江新城花城大
                道2号名门大厦首层
                预约设计
                扫一扫,微信沟通
                扫一扫,微信沟通
                Copyright@2021-2025 architectephilippegobin.com All Rights Reserved 乐动体育-乐动体育官方网站|LEDONGSPORTS 版权所有
                《中华人民共和国电信与信息服务业务经营许可证》
                X
                我要预约
                装修顾问将在预约后24小时内与您联系
                • 您的姓名
                • 您的手机号
                • 房屋的面积
                * 为了您的利益和我们的口碑,我们将严格保密您的个人隐私
                X
                设计方案
                定制您的专属设计方案