乐动体育

九艺装饰(三星装饰)

广州
切换城市
自营公司
  • 广州市
  • 肇庆市
  • 惠州市
  • 汕头市
  • 湛江市
  • 赣州市
  • 泉州市
  • 漳州市
  • 南安市
  • 福州市
  • 镇江市
  • 威海市
  • 六盘水
  • 东莞市
  • 海口市
装修报价咨询热线: 177-8888-9250
您的当前位置: 乐动体育 › 装修案例
凯德双桥-71㎡复古怀旧,悠享舒适生活
凯德双桥-71㎡复古怀旧,悠享舒适生活
本案例是一套精装房的巧妙改造,整体设计以复古、怀旧为主题,通过材质、色彩和细节的搭配,营造出悠闲舒适的居住氛围。木纹元素的广泛运用,搭配拼色收纳柜、木质卷帘等设计,让整个空间充满复古韵味,为居住者带来独特的居住体验。
  • 装修公司
    九艺装饰
  • 装修楼盘
    凯德·双桥新作
  • 装修风格
    混搭
  • 户型结构
    二居室
  • 装修面积
    71平方
  • 设计师
    卢金旺
0
  • 全部
  • 户型图
  • 玄关
  • 客厅
  • 餐厅
  • 厨房
  • 主卧
  • 次卧
  • 儿童房
  • 书房
  • 衣帽间
  • 卫生间
  • 阳台
  • 其他
  • 设计说明
  • 户型图JIUYIDES
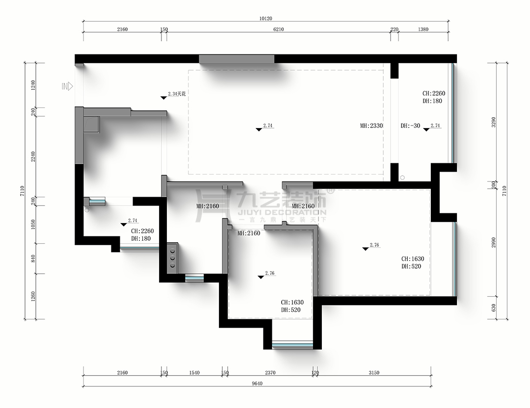
    原始户型图
  • 平面户型图
  • 玄关JIUYIDES
    玄关
  • 客厅JIUYIDES
    客厅
  • 客厅
  • 客厅
  • 客厅
  • 客厅
  • 餐厅JIUYIDES
    餐厅
  • 餐厅
  • 餐厅
  • 餐厅
  • 餐厅
  • 厨房JIUYIDES
    厨房
  • 主卧JIUYIDES
    主卧
  • 主卧
  • 主卧
            • 阳台JIUYIDES
              阳台
            • 阳台

              本案例是一套精装房的巧妙改造,整体设计以复古、怀旧为主题,通过材质、色彩和细节的搭配,营造出悠闲舒适的居住氛围。木纹元素的广泛运用,搭配拼色收纳柜、木质卷帘等设计,让整个空间充满复古韵味,为居住者带来独特的居住体验。

              本案设计师简介
              卢金旺
              专家设计师
              从业年限:13 年 | 作品案例:7套
              擅长风格:现代、简约、北欧、新中式、轻奢
              预约TA
              我家装修需要多少钱?10秒估算一下
              装修估算
              装修计算器已经有 16508 业主获取了装修预算
              • 您的称呼:
              • 手机号码:
              • 所在城市:
              • 房屋面积:
              装修预算报价为:184657
              • 材料费:18897
              • 人工费:24514
              • 设计费:4988 元
              • 管理费:8504 元
              * 报价价格仅供参考,实际装修价格以人工报价为准
              九艺简介
              乐动体育-乐动体育官方网站|LEDONGSPORTS 热线
                  177-8888-9250
              地址:广州市天河区珠江新城花城大
              道2号名门大厦首层
              预约设计
              扫一扫,微信沟通
              扫一扫,微信沟通
              Copyright@2021-2025 architectephilippegobin.com All Rights Reserved 乐动体育-乐动体育官方网站|LEDONGSPORTS 版权所有
              《中华人民共和国电信与信息服务业务经营许可证》
              X
              我要预约
              装修顾问将在预约后24小时内与您联系
              • 您的姓名
              • 您的手机号
              • 房屋的面积
              * 为了您的利益和我们的口碑,我们将严格保密您的个人隐私
              X
              设计方案
              定制您的专属设计方案