乐动体育

九艺装饰(三星装饰)

广州
切换城市
自营公司
  • 广州市
  • 肇庆市
  • 惠州市
  • 汕头市
  • 湛江市
  • 赣州市
  • 泉州市
  • 漳州市
  • 南安市
  • 福州市
  • 镇江市
  • 威海市
  • 六盘水
  • 东莞市
  • 海口市
装修报价咨询热线: 177-8888-9250
您的当前位置: 乐动体育 › 装修案例
星河·东悦湾-123㎡法式奶油风精装房装修
星河·东悦湾-123㎡法式奶油风精装房装修
❶ 从高级审美出发,融合现代的气质与法式的浪漫; ❷ 用米白、米灰、原木色渲染明丽洁雅的空间基调; ❸ 提炼元素,以立体雕饰呈现平面到立体的造型感; ❹ 遵循叠墅架构,划分场域,满足多元的生活情态; ❺ 通过结构、布局、形式,确立连续又独立的动线; ❻ 运用拱形的柔美廓感,贯穿各区之间相通的体验。
  • 装修公司
    九艺装饰
  • 装修楼盘
    星河·东悦湾
  • 装修风格
    奶油风
  • 户型结构
    四居室及以上
  • 装修面积
    123平方
  • 设计师
    龙建群
0
  • 全部
  • 户型图
  • 玄关
  • 客厅
  • 餐厅
  • 厨房
  • 主卧
  • 次卧
  • 儿童房
  • 书房
  • 衣帽间
  • 卫生间
  • 阳台
  • 其他
  • 设计说明
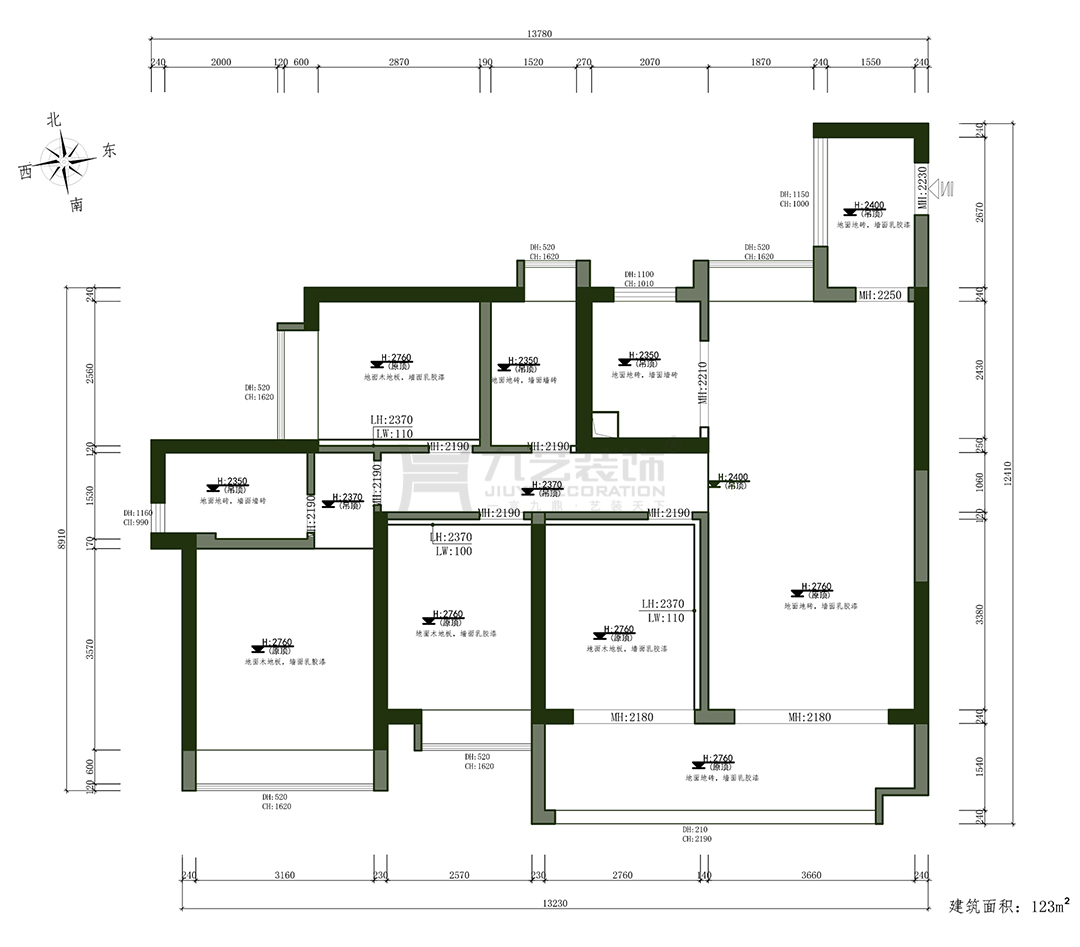
  • 户型图JIUYIDES
    原始户型图
  • 平面户型图
  • 玄关JIUYIDES
    入户玄关
  • 入户玄关
  • 客厅JIUYIDES
    客厅
  • 客厅
  • 客厅
  • 客厅
  • 客厅
  • 客厅
  • 客厅
  • 餐厅JIUYIDES
    餐厅
  • 餐厅
  • 餐厅
  • 餐厅
  • 餐厅
    • 主卧JIUYIDES
      主卧
    • 主卧
    • 主卧
    • 主卧
      • 儿童房JIUYIDES
        儿童房
      • 儿童房
      • 儿童房
      • 书房JIUYIDES
        书房
      • 书房
      • 书房
          • 阳台JIUYIDES
            阳台

            ❶ 从高级审美出发,融合现代的气质与法式的浪漫;

            ❷ 用米白、米灰、原木色渲染明丽洁雅的空间基调;

            ❸ 提炼元素,以立体雕饰呈现平面到立体的造型感;

            ❹ 遵循叠墅架构,划分场域,满足多元的生活情态;

            ❺ 通过结构、布局、形式,确立连续又独立的动线;

            ❻ 运用拱形的柔美廓感,贯穿各区之间相通的体验。

            本案设计师简介
            龙建群
            专家设计师
            从业年限:12 年 | 作品案例:12套
            擅长风格:新中式、现代、简约、轻奢、美式
            预约TA
            我家装修需要多少钱?10秒估算一下
            装修估算
            装修计算器已经有 16508 业主获取了装修预算
            • 您的称呼:
            • 手机号码:
            • 所在城市:
            • 房屋面积:
            装修预算报价为:184657
            • 材料费:18897
            • 人工费:24514
            • 设计费:4988 元
            • 管理费:8504 元
            * 报价价格仅供参考,实际装修价格以人工报价为准
            九艺简介
            乐动体育-乐动体育官方网站|LEDONGSPORTS 热线
                177-8888-9250
            地址:广州市天河区珠江新城花城大
            道2号名门大厦首层
            预约设计
            扫一扫,微信沟通
            扫一扫,微信沟通
            Copyright@2021-2025 architectephilippegobin.com All Rights Reserved 乐动体育-乐动体育官方网站|LEDONGSPORTS 版权所有
            《中华人民共和国电信与信息服务业务经营许可证》
            X
            我要预约
            装修顾问将在预约后24小时内与您联系
            • 您的姓名
            • 您的手机号
            • 房屋的面积
            * 为了您的利益和我们的口碑,我们将严格保密您的个人隐私
            X
            设计方案
            定制您的专属设计方案