
负一楼平面布置图

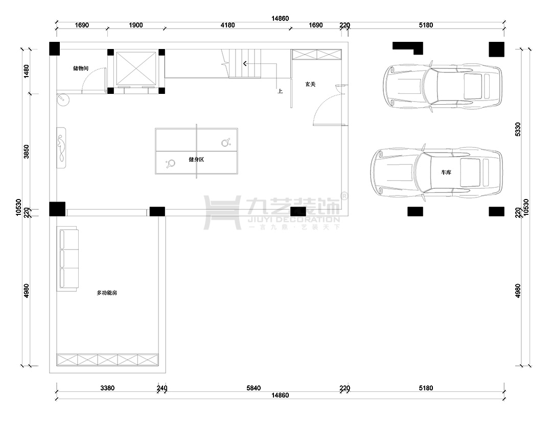
负二楼平面布置图

一楼平面布置图

二楼平面布置图

三楼平面布置图

顶楼平面布置图























以 “去繁就简,质温共生” 为核心,立足大宅阔绰尺度,打造通透舒适的理想居所。空间规划强调开阔感与功能适配,无界布局延伸社交场景,同时兼顾私属静谧需求,动线流畅有序。材质精选原木、岩板与金属线条,天然肌理搭配米白、浅灰基底及低饱和点缀,中和冷硬质感、传递温润气息。灯光采用 “基础照明 + 局部氛围灯” 组合,既凸显空间层次,又注入温馨感。功能设计贴合多元生活需求,兼顾家人互动与独处时光,整体以简约为骨、品质为魂,尽显大宅格局与生活暖意。