全心全意
用爱装饰家
相信对于大多数人来说,一提起装修就觉得是个非常头疼的问题,很多时候不知道该如何下手。

平时在后台也收到很多粉丝的留言问一些常见的装修问题或者装修流程,那么考虑到朋友们的装修需求,我们将出一期详细的装修流程,内容可能有点长,但是非常实用,看不完的收藏起来慢慢看!
决定是否找设计师
如果你没有接触过装修或者对它没有一点点了解,比起自己慢慢找攻略做功课,那么找设计师是个不错的选择。设计师会帮你考虑空间布局怎么设计才合理,省心省力。

①设计师考虑更全面:有经验的设计师会根据你的需求去帮你考虑所有空间角落,会告诉你怎么规划才是合理的。
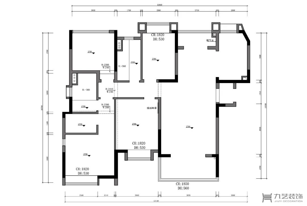
②装修效果更实在美观:家除了方便实用更需要美观住得舒适。


(原始户型图vs优化户型图)
装修方式
一般来讲,装修方式有以下三种:清包、半包、全包

①清包:装修中的所有材料由自己购买,而工人只负责施工,需要花费很多精力。
②半包:主材自己购买,辅材由装修公司提供,花费精力比较少,目前使用最多的一种方式。
③全包:主材、辅材、施工所有都由装修公司负责,是最省心省力的一种装修方式,但是要注意一些浑水摸鱼的公司。
装修材料
一般来说,主材和辅材是必备的装修材料,两者的最大的区别在于——主材可以理解为在装修时能看到的成型成品,辅材是装修后比较隐秘的装修材料。

主材:门、橱柜、地板、瓷砖、乳胶漆、墙纸、吊顶、卫浴等等
辅材:水泥、砖、沙子、腻子、钉子、螺丝、防水涂料、电线水管等等
软装:家居、家电、灯具、窗帘、家纺、摆件、绿植等等
装修流程
一般的装修流程为:墙体拆改→水电定位→泥工→木工→油漆工→收尾/安装家具→软装→通风入住

设计师会根据实际情况对空间和布局来调整部分墙体的拆改,但是要注意一点,不是所有墙体都能拆的,承重墙不能拆,否则会造成房子坍塌 。

水电定位改造这个过程需要确定好各种电器、开关插座、灯具、洗手盆等数量和确切位置,一但砖上了墙、吊顶一封上,后期返工就难了。注意,防水措施需做好,漏电保护也很重要。


泥工大致来说是负责客厅、阳台、厨房等空间的地面工作,主要是铺地砖和墙砖,先铺墙后铺地。

木工主要负责家里所有固定柜子的安装,如玄关柜,橱柜,衣柜等,吊顶,隔断,木门的安装也是他们的工作。

油漆工负责吊顶补缝、刮腻子、喷乳胶漆以及柜子的喷漆等等。

以上五个步骤完成后,家的基本模样已经出来了,可以进行保洁了,将全家大大小小角落都清洁一遍,最后再安装各种家具、灯具等等进行软装搭配。

刚装修好的房子需要通风一段时间才能入住,一般通风3-6个月,因为新装好的房子会有甲醛。

夏季是去甲醛的最佳时机;平时可以白天开窗,晚上关窗;但是下雨天不要开窗,以免雨水进入室内导致潮湿使情况更糟糕;如有风扇可以提高通风效果,加速空气对流。