乐动体育

九艺装饰(三星装饰)

广州
切换城市
自营公司
  • 广州市
  • 肇庆市
  • 惠州市
  • 汕头市
  • 湛江市
  • 赣州市
  • 泉州市
  • 漳州市
  • 南安市
  • 福州市
  • 镇江市
  • 威海市
  • 六盘水
  • 东莞市
  • 海口市
装修报价咨询热线: 177-8888-9250
您的当前位置: 乐动体育 › 装修案例
富力千禧-75㎡黑白灰色极简空间
富力千禧-75㎡黑白灰色极简空间
本案业主夫妻从事书籍出版行业,夫妇俩常年和书籍打交道,日常爱好无非阅读和观影,希望整个空间干净整洁,简单安宁,能有若白纸黑字一般清晰明了的空间层次。设计师以书籍为灵感,将无彩色的黑白灰作为空间的主要色调,大面积的灰、白色作底色,灰色的低调深邃与白色的明亮白净,在空间中产生和谐层次。
  • 装修公司
    九艺装饰
  • 装修楼盘
    富力千禧
  • 装修风格
    现代
  • 户型结构
    二居室
  • 装修面积
    75平方
  • 设计师
    伍观金
0
  • 全部
  • 户型图
  • 玄关
  • 客厅
  • 餐厅
  • 厨房
  • 主卧
  • 次卧
  • 儿童房
  • 书房
  • 衣帽间
  • 卫生间
  • 阳台
  • 其他
  • 设计说明
  • 户型图JIUYIDES
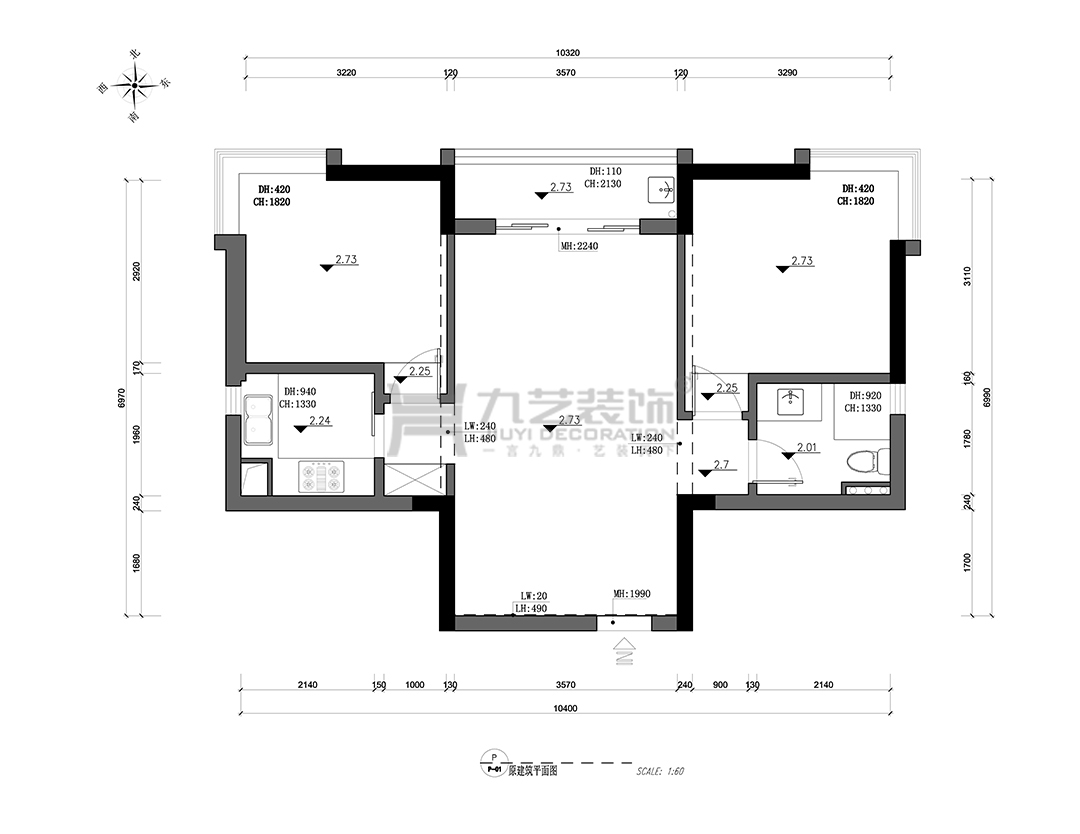
    原始建筑结构图
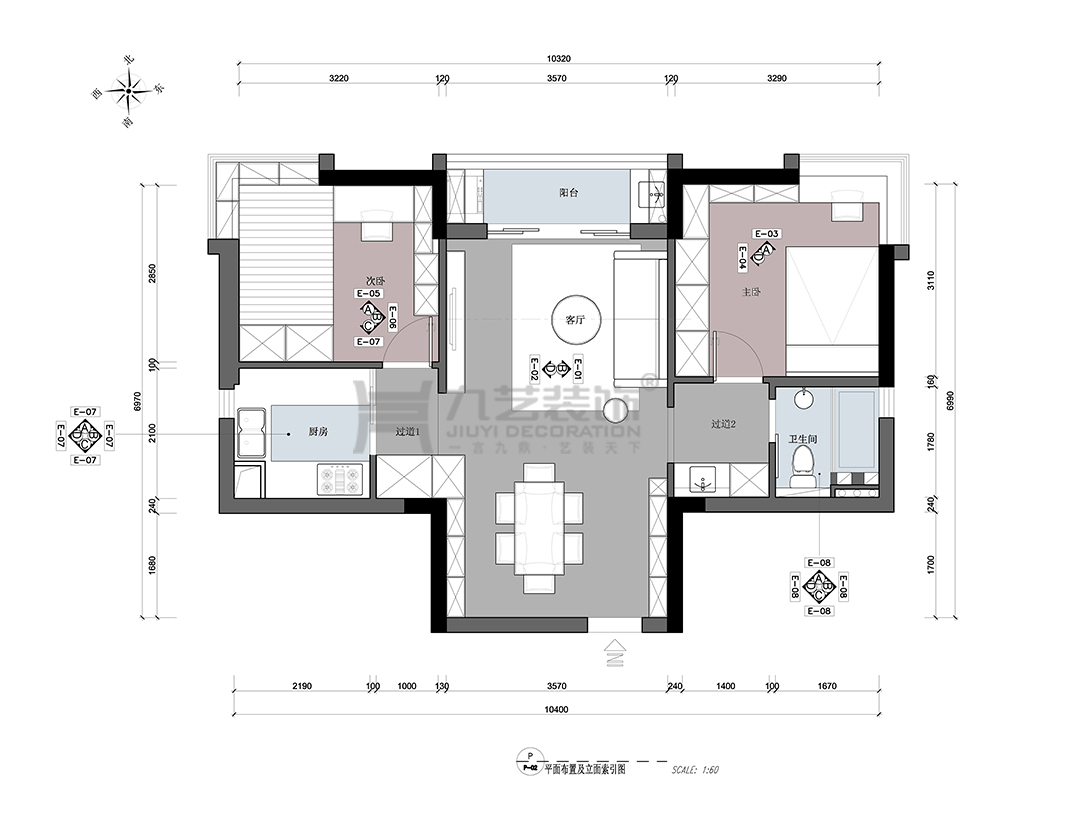
  • 平面户型图

    平面布置充分考虑了生活的基本功能需求,将空间合理划分。两个L型卧室修正成方形。厨房改成双向推拉门,出入更加方便。洗手间改成二分式,开放式的舆洗区设计大面积的储物柜,既利用时间差缓解了一家人的洗漱矛盾,又解决了各种卫浴用品的收纳。马桶位则被调整到了门侧,解决了原来直冲门口的问题

  • 玄关JIUYIDES
    玄关
  • 客厅JIUYIDES
    客厅的黑白灰色系空间

    客厅的黑白灰色系空间

  • 黄色花卉和橙色窗帘勾边

    黄色花卉和橙色窗帘勾边,增加空间动感和生气

  • 客厅米色的皮质沙发

    客厅米色的皮质沙发,为空间增加暖色

  • 客厅摆放多功能茶几

    客厅摆放多功能茶几,一部佳作一壶清茶,生活瞬间变得惬意

  • 客厅

    本案设计与业主

  • 餐厅JIUYIDES
    餐边柜中部为开放式

    餐边柜中部为开放式,可放置需要经常了用的物品

  • 利用空间设计到顶的柜子

    餐厅充分利用空间,设计到顶的柜子,满足业主超大的储物空间需求

  • 餐厅成为阅读小憩的区域

    餐厅除了就餐,还可以成为阅读小憩的区域

  • 厨房JIUYIDES
    黑白色调的现代简洁厨房

    黑白色调的现代简洁厨房

  • 主卧JIUYIDES
    主卧的空间使用了浅灰加浅米色的搭配

    主卧的空间使用了浅灰加浅米色的搭配,淡雅舒适

  • 主卧一面墙的定制衣柜

    主卧一面墙的定制衣柜,让原本无处安放的衣物都找到了自己的归宿。

  • 定制的书桌满足夜间办公的需求

    定制的书桌满足夜间办公的需求

  • 少部分橙色点缀在窗帘和挂画

    少部分橙色点缀在窗帘和挂画,增加暖意

    • 儿童房JIUYIDES
      餐边柜中部为开放式

      小孩房设计榻榻米床,既节省空间,又增加收纳

        • 卫生间JIUYIDES
          开放式的舆洗区配置大面积的储物柜

          开放式的舆洗区配置大面积的储物柜,解决了各种卫浴用品的收纳

        • 灰白色为主色的卫生间

          灰白色为主色的卫生间,整洁明亮

            经典的黑白色因其冷静、理性的特点深受人们喜爱。黑白色带来的强对比感、清晰感,能创造出理性、宁静的空间氛围。看似单纯,却给人丰富的想象空间,激发人想象力,带来深层次的感受。

            本案业主夫妻从事书籍出版行业,夫妇俩常年和书籍打交道,日常爱好无非阅读和观影,希望整个空间干净整洁,简单安宁,能有若白纸黑字一般清晰明了的空间层次。

            设计师以书籍为灵感,将无彩色的黑白灰作为空间的主要色调,大面积的灰、白色作底色,灰色的低调深邃与白色的明亮白净,在空间中产生和谐层次。

            空间上充分考虑了生活的基本功能需求,将空间合理划分。两个L型卧室修正成方形。厨房改成双向推拉门,出入更加方便。洗手间改成二分式,开放式的盥洗洗区设计大面积的储物柜,既利用时间差缓解了一家人的洗漱矛盾,又解决了各种卫浴用品的收纳。马桶位则被调整到了门侧,解决了原来直冲门口的问题。

            经过精心设计的空间简洁实用,布置得温暖舒适,一家人品品茶、看看电影,自有一方宁静与悠闲。

            本案设计师简介
            伍观金
            设计八部 设计经理
            从业年限:16 年 | 作品案例:12套
            擅长风格:中式、现代简约、轻奢、简欧
            预约TA
            我家装修需要多少钱?10秒估算一下
            装修估算
            装修计算器已经有 16508 业主获取了装修预算
            • 您的称呼:
            • 手机号码:
            • 所在城市:
            • 房屋面积:
            装修预算报价为:184657
            • 材料费:18897
            • 人工费:24514
            • 设计费:4988 元
            • 管理费:8504 元
            * 报价价格仅供参考,实际装修价格以人工报价为准
            九艺简介
            乐动体育-乐动体育官方网站|LEDONGSPORTS 热线
                177-8888-9250
            地址:广州市天河区珠江新城花城大
            道2号名门大厦首层
            预约设计
            扫一扫,微信沟通
            扫一扫,微信沟通
            Copyright@2021-2025 architectephilippegobin.com All Rights Reserved 乐动体育-乐动体育官方网站|LEDONGSPORTS 版权所有
            《中华人民共和国电信与信息服务业务经营许可证》
            X
            我要预约
            装修顾问将在预约后24小时内与您联系
            • 您的姓名
            • 您的手机号
            • 房屋的面积
            * 为了您的利益和我们的口碑,我们将严格保密您的个人隐私
            X
            设计方案
            定制您的专属设计方案