乐动体育

九艺装饰(三星装饰)

广州
切换城市
自营公司
  • 广州市
  • 肇庆市
  • 惠州市
  • 汕头市
  • 湛江市
  • 赣州市
  • 泉州市
  • 漳州市
  • 南安市
  • 福州市
  • 镇江市
  • 威海市
  • 六盘水
  • 东莞市
  • 海口市
装修报价咨询热线: 177-8888-9250
您的当前位置: 乐动体育 › 装修案例
自由人花园-180㎡造现代之雅境
自由人花园-180㎡造现代之雅境
结合所有的需求,怀着这份孝顺的感知,设计师以“雅致”作为主题,从传统中国色中提取绿、黄、蓝等色彩,结合山水之形、花卉之意展示中国传统文化的意境之“雅”;又用现代手法造型造境,空间线条凝炼简约,以意传神。
  • 装修公司
    九艺装饰
  • 装修楼盘
    自由人花园
  • 装修风格
    新中式
  • 户型结构
    三居室
  • 装修面积
    180平方
  • 设计师
    广州设计团队
0
  • 全部
  • 户型图
  • 玄关
  • 客厅
  • 餐厅
  • 厨房
  • 主卧
  • 次卧
  • 儿童房
  • 书房
  • 衣帽间
  • 卫生间
  • 阳台
  • 其他
  • 设计说明
  • 户型图JIUYIDES
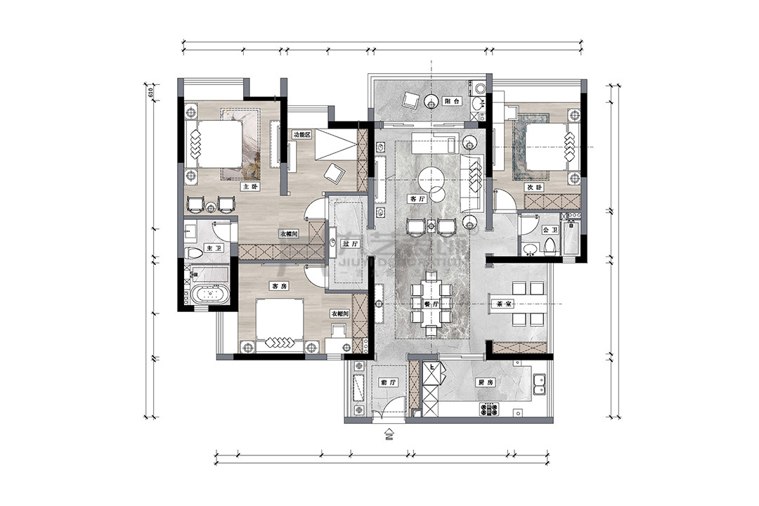
    原始户型图
  • 平面户型图
    设计师规划了三卧两厅一茶室一多功能室的格局,满足业主的各项需求
  • 玄关JIUYIDES
    玄关屏风
    入户玄关中式矮柜搭配花卉工艺屏风,中式古典韵味扑面而来
  • 客厅JIUYIDES
    中国文化的高雅的意趣

    这套180平的现代中国式的雅居,体现了业主平静、精致且从容的生活态度,既符合现代人的生活方式,又要不失中国文化的高雅的意趣和审美意识上的享受

  • 家具选用新中式

    家具选用新中式混搭现代经典家具,色彩协调,质感丰富,配合智能家具系统,无一不体现出现代设计之精“致”

  • 细腻皮质坐椅体现生活品质

    细腻皮质坐椅体现生活品质

  • 沙发背景墙以现代山水画装饰

    沙发背景墙以现代山水画装饰

  • 沙发组用浅茶色为主色调

    沙发组用浅茶色为主色调,用蓝色和梪色带来活泼感

  • 客餐厅与茶室

    在客餐厅与茶室营造出“千寻尽处暮云碧,林外扶疏竹影碎”的悠然意境

  • 餐厅JIUYIDES
    餐厅以石材搭朽米色餐和橙色餐椅

    餐厅以石材搭朽米色餐和橙色餐椅,与沙发区和谐一致

  • 餐厅墙面以花草画和盆景装饰

    餐厅墙面以花草画和盆景装饰

  • 餐厅与茶室隔而不断

    餐厅与茶室隔而不断

  • 餐厅天然石材桌面

    餐厅天然石材桌面、碧色吊灯、山水壁画……,与客厅山水背景墙相呼应

  • 厨房JIUYIDES
    简洁现代的厨房设计

    简洁现代的厨房设计

  • 主卧JIUYIDES
    家具选用了新中式矮柜

    家具选用了新中式矮柜

  • 点缀墨绿色荷花挂画和绿色小靠背椅

    浅茶色空间,点缀墨绿色荷花挂画和绿色小靠背椅

  • 碧色小沙发营造休闲角落

    碧色小沙发营造休闲角落

  • 次卧JIUYIDES
    茶色作为主色调

    卧室以深浅不一的茶色作为主色调

  • 床头点缀中式挂画

    床头点缀中式挂画,既协调又有层次感

  • 客卧仍然选用茶色作为主色调

    客卧仍然选用茶色作为主色调

  • 床头背景抽象中式山水画点缀

    床头背景抽象中式山水画点缀

        • 卫生间JIUYIDES
          洗手间用现代设计

          洗手间用现代设计,简洁明快

          • 其他JIUYIDES
            茶室用花形屏风半隔断

            茶室用花形屏风半隔断,隐约透出茶艺茶具和盆景,体现中式园林借景之趣

          • 茶室的墨绿色靠椅

            茶室的墨绿色靠椅,配水墨窗帘,意境悠然

          • 透过隔断屏风

            透过隔断屏风,可以看到茶室的小景

          设计背景

          本案业主是年近七旬的叔叔阿姨,房子是三个女儿买给父母养老居住。女儿们希望在父母喜欢的传统中式上加入一些现代的元素,希望父母的老年生活也能充满活力和色彩。二女儿作为一家大型企业的老总,虽然工作繁忙,但是在整体设计过程中,仍然细心的将父母的喜好,生活中的小要求,以及作为子女希望为父母规划的晚年居所格调向设计师细细诉说……所有的无微不至,都深深的打动着设计团队。

          结合所有的需求,怀着这份孝顺的感知,设计师以“雅致”作为主题,从传统中国色中提取绿、黄、蓝等色彩,结合山水之形、花卉之意展示中国传统文化的意境之“雅”;又用现代手法造型造境,空间线条凝炼简约,以意传神。

          中国传统雅趣和现代精致生活在这个空间里和谐融合。在这样的家里,既有“笑看风轻云淡,闲听花静鸟喧”的闲适,更有“万物互联,一键掌控”的随心。既继承了传统文化,又善用了现代科技,真正取传统之精髓 造现代之雅境。

          这套180平的现代中国式的雅居,体现了业主平静、精致且从容的生活态度,既符合现代人的生活方式,又要不失中国文化的高雅的意趣和审美意识上的享受。

          本案设计师简介
          广州设计团队
          私宅家装室内装修设计
          设计案例:26套
          擅长风格:现代简约、轻奢、新中式、北欧、美式、奶油风、中式、欧式、日式…
          预约TA
          我家装修需要多少钱?10秒估算一下
          装修估算
          装修计算器已经有 16508 业主获取了装修预算
          • 您的称呼:
          • 手机号码:
          • 所在城市:
          • 房屋面积:
          装修预算报价为:184657
          • 材料费:18897
          • 人工费:24514
          • 设计费:4988 元
          • 管理费:8504 元
          * 报价价格仅供参考,实际装修价格以人工报价为准
          九艺简介
          乐动体育-乐动体育官方网站|LEDONGSPORTS 热线
              177-8888-9250
          地址:广州市天河区珠江新城花城大
          道2号名门大厦首层
          预约设计
          扫一扫,微信沟通
          扫一扫,微信沟通
          Copyright@2021-2025 architectephilippegobin.com All Rights Reserved 乐动体育-乐动体育官方网站|LEDONGSPORTS 版权所有
          《中华人民共和国电信与信息服务业务经营许可证》
          X
          我要预约
          装修顾问将在预约后24小时内与您联系
          • 您的姓名
          • 您的手机号
          • 房屋的面积
          * 为了您的利益和我们的口碑,我们将严格保密您的个人隐私
          X
          设计方案
          定制您的专属设计方案