乐动体育

九艺装饰(三星装饰)

广州
切换城市
自营公司
  • 广州市
  • 肇庆市
  • 惠州市
  • 汕头市
  • 湛江市
  • 赣州市
  • 泉州市
  • 漳州市
  • 南安市
  • 福州市
  • 镇江市
  • 威海市
  • 六盘水
  • 东莞市
  • 海口市
装修报价咨询热线: 177-8888-9250
您的当前位置: 乐动体育 › 装修案例
新鸿花园-95㎡有色彩的北欧风
新鸿花园-95㎡有色彩的北欧风
这是一套95平方的舒适现代轻奢空间,业主是年轻的90后,喜欢明快活泼前卫的现代风格。设计师使用丰富的色彩和材质,空间动感十足,现代前卫,十分符合屋主夫妇的个性。
  • 装修公司
    九艺装饰
  • 装修楼盘
    新鸿花园
  • 装修风格
    欧式
  • 户型结构
    三居室
  • 装修面积
    95平方
  • 设计师
    广州设计团队
0
  • 全部
  • 户型图
  • 玄关
  • 客厅
  • 餐厅
  • 厨房
  • 主卧
  • 次卧
  • 儿童房
  • 书房
  • 衣帽间
  • 卫生间
  • 阳台
  • 其他
  • 设计说明
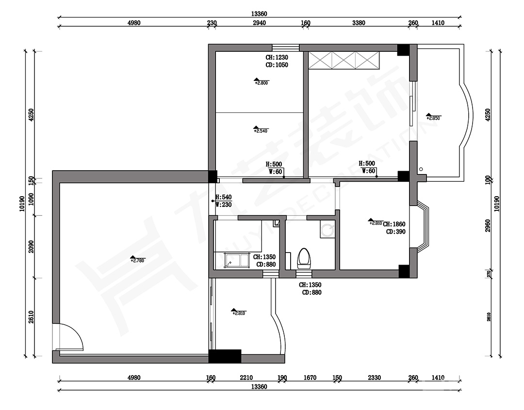
  • 户型图JIUYIDES
    原始建筑结构图
  • 平面户型图

    改造的格局:拆掉了原封闭式厨房、阳台,改成与客餐厅一体化的开放式厨房。同时增加中岛台,与餐桌相连。洗碗机藏在中岛台一端,饭后再也不用纠结谁洗碗了

    • 客厅JIUYIDES
      客厅使用了丰富的色彩和几何图案

      客厅使用了丰富的色彩和几何图案,动感有活力

    • 撞色和尖锐的几何图案带来现代前卫感觉

      撞色和尖锐的几何图案带来现代前卫感觉

    • 马卡龙糖果色系

      马卡龙糖果色系, 写满女主人的少女心。 森林系的墙, 吸收掉顶层多余的光线, 清清凉凉,心情愉悦

    • 客餐厅一体的设计使空间通透大气

      客餐厅一体的设计使空间通透大气,同时解决怆采光的问题

    • 客厅、餐厅、开放式厨房

      客厅、餐厅、开放式厨房, 层次丰富,视线开阔

    • 米色真皮沙发与斑纹抱枕带来轻奢感

      米色真皮沙发与斑纹抱枕带来轻奢感

    • 茶几上的向日葵与艳丽杂志相搭

      茶几上的向日葵与艳丽杂志相搭,热力十足

    • 客餐厅的挂画由空间主色构成

      客餐厅的挂画由空间主色构成,与空间相呼应

    • 白色落地灯的金色杆身

      白色落地灯的金色杆身,打造魅力十足的休息角藩

    • 餐厅JIUYIDES
      使用简洁的岩板餐桌

      使用简洁的岩板餐桌;白色桌面与蓝色墙面搭配,干净和谐

    • 墨绿墙面,一张餐桌,就是一个餐厅

      墨绿墙面,一张餐桌,就是一个餐厅。 亲朋好友到访, 它可以是吧台。 工作繁忙时, 它也可以是工作台

    • 别致的网格花瓶有年轻现代感

      绿色座椅与墙面颜色一致,靠背金色珠子走线,体现精致感;

      别致的网格花瓶有年轻现代感

    • 餐厅墙角摆放绿植,暗灰色的花盆体现质感

      餐厅墙角摆放绿植,暗灰色的花盆体现质感

    • 厨房JIUYIDES
      开放厨房
    • 线条分明的白色开放式厨房

      线条分明的白色开放式厨房, 是原先的封闭式厨房和阳台改成的。 冰箱烤箱嵌入储物柜, 视野中看不到多余的物品。 厨房干干净净, 每天都可以感受到直播料理的乐趣

    • 主卧JIUYIDES
      卧室延续了整屋的墨绿色

      卧室延续了整屋的墨绿色,金属质感的加入, 让整个空间现代感十足

    • 主卧
    • 次卧JIUYIDES
      次卧
        • 衣帽间JIUYIDES
          衣帽间木地板深线不同的色块拼接

          衣帽间木地板深线不同的色块拼接,充满了现代意识

        • 卫生间JIUYIDES
          卫生间
        • 卫生间

            这是一套95平方的舒适现代轻奢空间,业主是年轻的90后,喜欢明快活泼前卫的现代风格。设计师使用丰富的色彩和材质,空间动感十足,现代前卫,十分符合屋主夫妇的个性。

            1. 拆掉了原封闭式厨房、阳台,改成与客餐厅一体化的开放式厨房。

            2. 同时增加中岛台,与餐桌相连。洗碗机藏在中岛台一端,饭后再也不用纠结谁洗碗了。

            3. 房子2人住,房间不需要多。其中一间房间改为储物室、衣帽间。衣帽间与主卧打通。储物室一面墙内凹,做嵌入式冰箱、橱柜,成为开放式厨房的一部分。

            本案设计师简介
            广州设计团队
            私宅家装室内装修设计
            设计案例:26套
            擅长风格:现代简约、轻奢、新中式、北欧、美式、奶油风、中式、欧式、日式…
            预约TA
            我家装修需要多少钱?10秒估算一下
            装修估算
            装修计算器已经有 16508 业主获取了装修预算
            • 您的称呼:
            • 手机号码:
            • 所在城市:
            • 房屋面积:
            装修预算报价为:184657
            • 材料费:18897
            • 人工费:24514
            • 设计费:4988 元
            • 管理费:8504 元
            * 报价价格仅供参考,实际装修价格以人工报价为准
            九艺简介
            乐动体育-乐动体育官方网站|LEDONGSPORTS 热线
                177-8888-9250
            地址:广州市天河区珠江新城花城大
            道2号名门大厦首层
            预约设计
            扫一扫,微信沟通
            扫一扫,微信沟通
            Copyright@2021-2025 architectephilippegobin.com All Rights Reserved 乐动体育-乐动体育官方网站|LEDONGSPORTS 版权所有
            《中华人民共和国电信与信息服务业务经营许可证》
            X
            我要预约
            装修顾问将在预约后24小时内与您联系
            • 您的姓名
            • 您的手机号
            • 房屋的面积
            * 为了您的利益和我们的口碑,我们将严格保密您的个人隐私
            X
            设计方案
            定制您的专属设计方案