
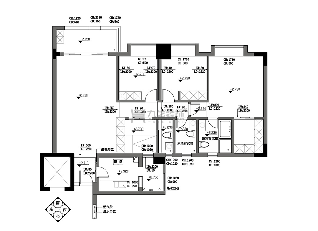
原始建筑结构的问题:一是公共空间多人共处时较为局促;二是厨房门在入户位置,出入时携带的灰尘会弥漫进厨房;三是餐桌位置正对入户大门,缺乏私密性,影响就餐氛围;四是主卧衣帽间空间不足;五是房间走廊过长,浪费空间

针对户型存在的问题,设计师重新对空间进行了功能划分。房屋的南侧向阳舒适区被规划为客厅、多功能区域和四间卧室。北侧一间卧室被拆除,并入餐厨区,依次规划了餐厨、两间舆洗室、洗衣区和大衣帽间。改动后的格局,空间大气灵动,不仅有了单独一隅的大餐厅,完整的入户玄关,扩大了的衣帽间,还设置了多功能空间以及专门的洗衣晾晒区。房间走道的一部分被纳入餐厅,既解决了走廊太长的问题,又提高了空间利用率

整个空间选用中性色为主色调,橘色作为点缀,适度的橘色点缀,沉稳中带着一点俏皮,整个空间出呈现丰富的层次感

阳台空间和客厅空间完全联通后,整个空间呈现丰富的层次感,透露着沉稳又不失清新的优雅格调

沙发区与阳台区以窗帘作为软隔断,不仅视线开阔,也不影响采光和通风

走廊的一部分被纳入客餐厅后,既解决了走廊太长的问题,又提高了空间利用率。整个客餐厅空间非常的大气

线性围合的空间,大方得体,晏然自若

大开大合的正餐厅尺度,可以满足6-8人同时聚餐

打通后的餐厅,采光极佳,视野开阔

西厨柜,简餐区,中岛台,中厨一应俱全

主卧以柔和的灰色调搭配木色,营造安静温和的空间氛围

主卧现代感十足的浅杏色立柜与花艺装饰空间,充满了艺术感

客房延续了延续了主卧空间色调,低调温润

儿童以粉色布艺点缀,打破了硬装空间宁静,带来活泼和可爱的气息

卫生间以灰色和桃木色突现层次,大气简洁

墙面黄色和黑色磁砖的点缀,使得灰色空间不再那么沉闷,带来温暖和生气


这间130平的四房三卫单位,日常杜先生和王小姐与两个孩子居住,家里长辈偶尔也会过来,临时住上几晚。但杜先生一家对这套居室的客厅、餐厅、厨房等空间都不太满意。经过设计师对空间重新进行划分打造,不仅极大地提高了空间的功能性和便利性,为业主一家展现出生活更加美好和舒适的一面,大气通透的设计,让130平空间有了近200平的大气效果。
原始建筑结构的问题:一是公共空间多人共处时较为局促;二是厨房门在入户位置,出入时携带的灰尘会弥漫进厨房;三是餐桌位置正对入户大门,缺乏私密性,影响就餐氛围;四是主卧衣帽间空间不足;五是房间走廊过长,浪费空间。
针对户型存在的问题,设计师重新对空间进行了功能划分。房屋的南侧向阳舒适区被规划为客厅、多功能区域和四间卧室。北侧一间卧室被拆除,并入餐厨区,依次规划了餐厨、两间舆洗室、洗衣区和大衣帽间。改动后的格局,空间大气灵动,不仅有了单独一隅的大餐厅,完整的入户玄关,扩大了的衣帽间,还设置了多功能空间以及专门的洗衣晾晒区。房间走道的一部分被纳入餐厅,既解决了走廊太长的问题,又提高了空间利用率。