乐动体育

九艺装饰(三星装饰)

广州
切换城市
自营公司
  • 广州市
  • 肇庆市
  • 惠州市
  • 汕头市
  • 湛江市
  • 赣州市
  • 泉州市
  • 漳州市
  • 南安市
  • 福州市
  • 镇江市
  • 威海市
  • 六盘水
  • 东莞市
  • 海口市
装修报价咨询热线: 177-8888-9250
您的当前位置: 乐动体育 › 装修案例
淘金家园-99㎡现代浪漫风格
淘金家园-99㎡现代浪漫风格
设计师精心布局,打通了客厅和厨房,在这个大空间内重新规划了玄关、客厅、餐厅、多功能室以及厨房区域,满足了业主对生活空间多种功能性需求。通过电视柜、储藏柜进行半隔断,原来逼仄的空间变得通透、开阔又灵动。深有感触的设计师,为了李先生这片梦幻海洋,将整个公共空间进行了精细规划,让每次归家的他,都能感受到热爱的海洋的气息。
  • 装修公司
    九艺装饰
  • 装修楼盘
    淘金家园
  • 装修风格
    现代
  • 户型结构
    二居室
  • 装修面积
    99平方
  • 设计师
    眭力凡
0
  • 全部
  • 户型图
  • 玄关
  • 客厅
  • 餐厅
  • 厨房
  • 主卧
  • 次卧
  • 儿童房
  • 书房
  • 衣帽间
  • 卫生间
  • 阳台
  • 其他
  • 设计说明
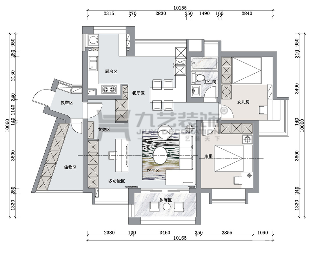
  • 户型图JIUYIDES
    平面户型图

    设计师精心布局,打通了客厅和厨房,在这个大空间内重新规划了玄关、客厅、餐厅、多功能室以及厨房区域,满足了业主对生活空间多种功能性需求。通过电视柜、储藏柜进行半隔断,原来逼仄的空间变得通透、开阔又灵动

  • 玄关JIUYIDES
    电视隔断柜的背面设置了小的工作台

    电视隔断柜的背面设置了小的工作台

  • 安置了一个大型珊瑚鱼缸

    设计师克服了排水、循环、恒温系统等一系列难题,在玄关和餐厅中间的隔断柜间,安置了一个大型珊瑚鱼缸,将他魂牵梦萦的小小海洋悄悄地带回了家

  • 客厅JIUYIDES
    整个空间选择了白色为背景色

    整个空间选择了白色为背景色,使用灰色和木色作为主色,简单的色彩组合和利落的空间线条,展现空间质感。石材、皮革、木材等材质的对比又增加了空间的层次感

  • 灰色L型转角沙发搭桔色单人沙发

    灰色L型转角沙发搭桔色单人沙发,有效利用空间

  • 暗桔色的单人真皮水发

    暗桔色的单人真皮水发,低调有质感

  • 沙发区的小憩台

    沙发区的小憩,甚至于吧台小酌,都能看到这一片绚烂多姿的海景鱼缸。因为这巧妙的设置,蓝色海洋的气息弥漫在家庭的每一个生活场景,时刻伴随左右……

  • 餐厅JIUYIDES
    餐厅搭配水吧和恒温酒柜,中西兼容

    餐厅搭配水吧和恒温酒柜,中西兼容

  • 餐厅旁简洁的桌面也可以作为西餐的料理台

    餐厅旁简洁的桌面也可以作为西餐的料理台,冰箱和恒温酒柜被安置在吊柜内,空间整洁有序

  • 厨房JIUYIDES
    半开放式厨房设计

    半开放式厨房设计

  • 工作阳台与厨房半开放连接

    工作阳台与厨房半开放连接,空间扩大,采光和通风也更好了

  • 主卧JIUYIDES
    主卧风格素雅沉稳

    中性色加木色地板,主卧风格素雅沉稳

  • 一面墙的衣柜设计解决衣物收纳

    一面墙的衣柜设计解决衣物收纳

  • 飘窗上的小柜台可以收纳一些小手边杂物

    飘窗上的小柜台可以收纳一些小手边杂物

    • 儿童房JIUYIDES
      儿童房以整体设计解决空间收纳问题

      儿童房以整体设计解决空间收纳问题

    • ​儿童房床边配置的小桌面和阅读灯

      儿童房床边配置的小桌面和阅读灯,营造小小的读书角

        • 卫生间JIUYIDES
          延续了空间风格的白加灰色调

          延续了空间风格的白加灰色调,干净利落

            作为一家航空公司的机长,李先生有一份满世界飞的工作,长年与浪漫蓝天为伍的他,对缤纷多彩的海洋反而有一份深深的眷恋:“绚烂的珊瑚,缤纷的游鱼,舒缓的洋流,感觉自己像一个婴儿,扑入地球怀抱,一刻也不想离开……。”

            深有感触的设计师,为了李先生这片梦幻海洋,将整个公共空间进行了精细规划,让每次归家的他,都能感受到热爱的海洋的气息。

            设计师精心布局,打通了客厅和厨房,在这个大空间内重新规划了玄关、客厅、餐厅、多功能室以及厨房区域,满足了业主对生活空间多种功能性需求。通过电视柜、储藏柜进行半隔断,原来逼仄的空间变得通透、开阔又灵动。

            本案设计师简介
            眭力凡
            专家设计师
            从业年限:13 年 | 作品案例:8套
            擅长风格:简约、轻奢、现代、中式、混搭
            预约TA
            我家装修需要多少钱?10秒估算一下
            装修估算
            装修计算器已经有 16508 业主获取了装修预算
            • 您的称呼:
            • 手机号码:
            • 所在城市:
            • 房屋面积:
            装修预算报价为:184657
            • 材料费:18897
            • 人工费:24514
            • 设计费:4988 元
            • 管理费:8504 元
            * 报价价格仅供参考,实际装修价格以人工报价为准
            九艺简介
            乐动体育-乐动体育官方网站|LEDONGSPORTS 热线
                177-8888-9250
            地址:广州市天河区珠江新城花城大
            道2号名门大厦首层
            预约设计
            扫一扫,微信沟通
            扫一扫,微信沟通
            Copyright@2021-2025 architectephilippegobin.com All Rights Reserved 乐动体育-乐动体育官方网站|LEDONGSPORTS 版权所有
            《中华人民共和国电信与信息服务业务经营许可证》
            X
            我要预约
            装修顾问将在预约后24小时内与您联系
            • 您的姓名
            • 您的手机号
            • 房屋的面积
            * 为了您的利益和我们的口碑,我们将严格保密您的个人隐私
            X
            设计方案
            定制您的专属设计方案