乐动体育

九艺装饰(三星装饰)

广州
切换城市
自营公司
  • 广州市
  • 肇庆市
  • 惠州市
  • 汕头市
  • 湛江市
  • 赣州市
  • 泉州市
  • 漳州市
  • 南安市
  • 福州市
  • 镇江市
  • 威海市
  • 六盘水
  • 东莞市
  • 海口市
装修报价咨询热线: 177-8888-9250
您的当前位置: 乐动体育 › 装修案例
祈福缤纷汇-83㎡白色+木色的简单配色
祈福缤纷汇-83㎡白色+木色的简单配色
这套房子的建筑面积83平方米,原始结构为三房二厅二卫的设计,空间稍嫌局促。在征询业主的意见后,按照实际生活需求,设计师对空间重新进行了划分。原有的三房二厅二卫格局被改造成了二卧室二厅二卫。主卫旁的小卧室被打通,设计成配套主卧的衣帽间,在靠墙的一角 安置书桌,兼具了办公的功能。
  • 装修公司
    九艺装饰
  • 装修楼盘
    祈福缤纷汇
  • 装修风格
    原木
  • 户型结构
    三居室
  • 装修面积
    83平方
  • 设计师
    广州设计团队
0
  • 全部
  • 户型图
  • 玄关
  • 客厅
  • 餐厅
  • 厨房
  • 主卧
  • 次卧
  • 儿童房
  • 书房
  • 衣帽间
  • 卫生间
  • 阳台
  • 其他
  • 设计说明
  • 户型图JIUYIDES
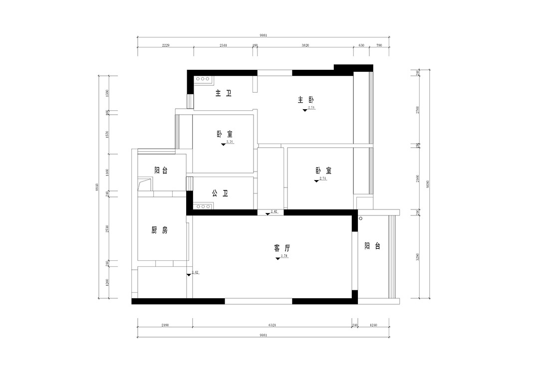
    原始结构图

    这套公寓的建筑面积83为平方米,原始结构为三房二厅二卫的设计,空间稍嫌局促。在征询业主的意见后,按照实际生活需求,设计师对空间重新进行了划分。

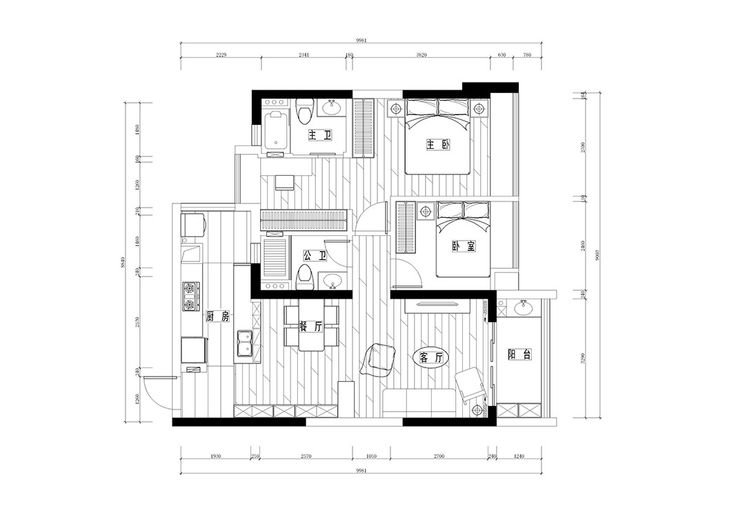
  • 平面户型图

    原有的三房二厅二卫格局被改造成了二卧室二厅二卫。主卫旁的小卧室被打通,设计成配套主卧的衣帽间,在靠墙的一角安置书桌,兼具了办公的功能。

  • 玄关JIUYIDES
    入户门简洁利落

    入户门简洁利落

  • 玄关

    玄关处的半帘将装饰了入户门

  • 客厅JIUYIDES
    空间内大量地使用白色和木色

    为了营造大空间效果,设计师在空间内大量地使用白色和木色

  • 沙发选择了舒适惬意的布艺沙发

    沙发选择了舒适惬意的布艺沙发,颜色使用了浅灰和米白色,在白和木色之间做了调和,增加了层次感

  • ​点缀些许绿植和挂画

    点缀些许绿植和挂画,整个空间清新自然,简洁素雅

  • 一排入墙柜解决了储物问题

    白色营造了干净明亮的感觉,木色则带来温暖感;一排入墙柜解决了储物问题

  • 通透明亮的客厅空间

    通透明亮的客厅空间

  • 餐厅JIUYIDES
    餐厅餐桌
  • 厨房JIUYIDES
    厨房设计成了开放式

    厨房设计成了开放式,原来和客厅相连的墙面被拆掉,设置操作岛台作为半隔断

  • 厨房相连的工作阳台的墙面也被拆掉

    与厨房相连的工作阳台的墙面也被拆掉,空间纳入了厨房,视觉上的通透增加了空间感

  • 主卧JIUYIDES
    灰色的窗帘与灰色床具非常的协调

    卧室仍然使用了白色加木色的底色,灰色的窗帘与灰色床具非常的协调

          • 卫生间JIUYIDES
            洗手间延续了白色加木色和灰色的配色

            洗手间延续了白色加木色和灰色的配色,与整个空间的氛围和谐一致

          • 卫浴产品线条简洁

            卫浴产品线条简洁

          • 镜柜能收纳大部分的洗漱用品

            门与洗漱台的木饰面保持了一致,镜柜能收纳大部分的洗漱用品

              这套房子的建筑面积83平方米,原始结构为三房二厅二卫的设计,空间稍嫌局促。在征询业主的意见后,按照实际生活需求,设计师对空间重新进行了划分。

              原有的三房二厅二卫格局被改造成了二卧室二厅二卫。主卫旁的小卧室被打通,设计成配套主卧的衣帽间,在靠墙的一角    安置书桌,兼具了办公的功能。

              为了营造大空间效果,设计师在空间内大量地使用白色和木色。白色营造了干净明亮的感觉,木色则带来温暖感。点缀些许绿植和挂画,整个空间清新自然,简洁素雅。

              沙发选择了舒适惬意的布艺沙发,颜色使用了浅灰和米白色,在白和木色之间做了调和,增加了层次感。

              厨房设计成了开放式,原来和客厅相连的墙面被拆掉,设置操作岛台作为半隔断,与厨房相连的工作阳台的墙面也被拆掉,空间纳入了厨房,视觉上的通透增加了空间感。

              卧室仍然使用了白色加木色的底色,灰色的窗帘与灰色床具非常的协调。

              本案设计师简介
              广州设计团队
              私宅家装室内装修设计
              设计案例:26套
              擅长风格:现代简约、轻奢、新中式、北欧、美式、奶油风、中式、欧式、日式…
              预约TA
              我家装修需要多少钱?10秒估算一下
              装修估算
              装修计算器已经有 16508 业主获取了装修预算
              • 您的称呼:
              • 手机号码:
              • 所在城市:
              • 房屋面积:
              装修预算报价为:184657
              • 材料费:18897
              • 人工费:24514
              • 设计费:4988 元
              • 管理费:8504 元
              * 报价价格仅供参考,实际装修价格以人工报价为准
              九艺简介
              乐动体育-乐动体育官方网站|LEDONGSPORTS 热线
                  177-8888-9250
              地址:广州市天河区珠江新城花城大
              道2号名门大厦首层
              预约设计
              扫一扫,微信沟通
              扫一扫,微信沟通
              Copyright@2021-2025 architectephilippegobin.com All Rights Reserved 乐动体育-乐动体育官方网站|LEDONGSPORTS 版权所有
              《中华人民共和国电信与信息服务业务经营许可证》
              X
              我要预约
              装修顾问将在预约后24小时内与您联系
              • 您的姓名
              • 您的手机号
              • 房屋的面积
              * 为了您的利益和我们的口碑,我们将严格保密您的个人隐私
              X
              设计方案
              定制您的专属设计方案