
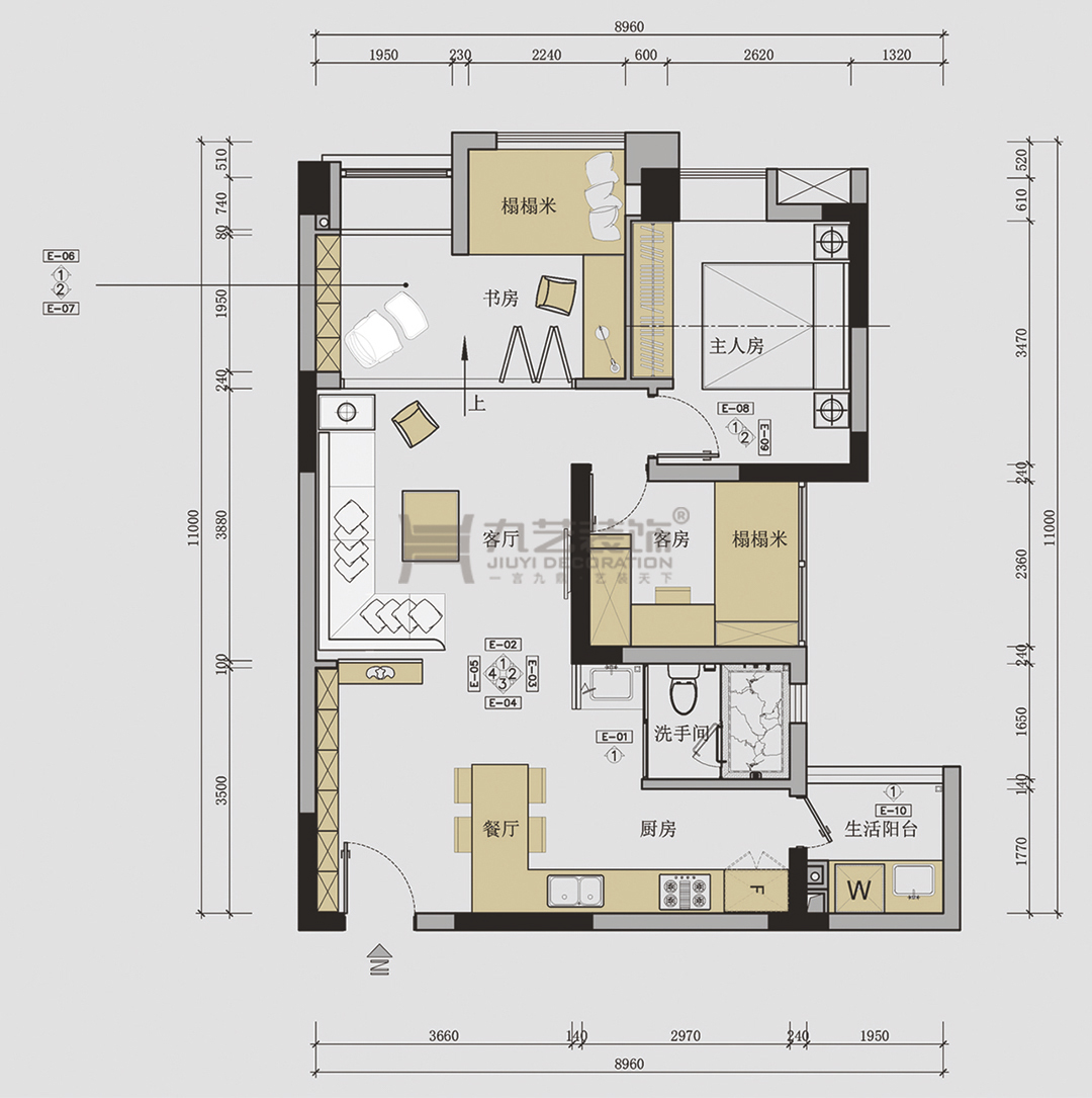
原来的客、餐厅稍显局促,改造后餐厅与客厅打通,餐厨区域的采光得到改善,空间也得到了扩充。主阳台和一间卧室打通作为大书房,用折叠玻璃门与客厅连通,入墙书柜充分满足了业主的藏书需求

改造后的客厅空间,通透、明亮,空间流畅开阔。洗手间干湿分区,舆洗池被独立划分出来,解决洗漱和沐浴同时使用的问题。客卧和书房都设置了榻榻米,既有休闲的功能又能满足休息的需求

入户区简洁利落的设计

入户侧边一组壁柜,满足鞋帽杂物等大量杂物的储藏需求,空间整洁有序

整个空间没有多余的装饰,以木色为主色调,大量采用木质元素,木地板,木质的电视背景墙、简单的木制家具,自然气息扑面而来。偶尔又用黑色几条线条进行空间勾勒,增加动感

米色的布艺沙发搭配浅蓝色的沙发抱枕,一点色彩的对比,使沙发看起来更有层次

入户设置半隔断,既能采光,又有换鞋登和收纳的功能。柜体几何线条的隔断为空间带来动感

木质低茶几,抽纳抽屉的设计,带来整洁和有序感

开放式厨房增加了通透性

卧室背景墙用了实木护墙板,搭配小碎花床品,自然清馨

简洁自然的卧室空间

榻榻米的设计,能既储物,也能满足功能性的休息需求

书房玻璃推拉门的设计为客厅带来自然明亮的光线,几何线条的装饰为空间带来动感

书房是业主学习、工作的地方,改造后的空间有了大型书柜

书房折叠门打开时,扩充客厅空间


舆洗池被独立划分出来,解决洗漱和沐浴同时使用的问题
每个人都有属于自己的一片森林,也许我们从来不曾去过,但它一直在那里,总会在那里。迷失的人迷失了,相逢的人会再相逢。
----《挪威的森林》
这这套日式风格家居,是一套三房两厅的格局,业主希望空间自然舒适,适度考虑未来家庭生活的空间需求。在深入了解业主日常生活习惯后,设计师将简约风格和日式风格结合在一起,为业主打造了这个轻松、简洁的日系自然风格空间。
1.原来的客、餐厅稍显局促,改造后餐厅与客厅打通,餐厨区域的采光得到改善,空间也得到了扩充。
2.主阳台和一间卧室打通作为大书房,用折叠玻璃门与客厅连通,入墙书柜充分满足了业主的藏书需求。改造后的客厅空间,通透、明亮,空间流畅开阔。
3.洗手间干湿分区,盥洗池被独立划分出来,解决洗漱和沐浴同时使用的问题。
4.客卧和书房都设置了榻榻米,既有休闲的功能又能满足休息的需求。