


整体空间装饰都采用简约的直线条,干净随性。无论是家具、装饰还是硬装的处理,都迎合了现代人对中式家居追求的内敛、质朴风格。使新中式看起来更加实用、富现代感

明亮的浅色调与厚重的咖啡色,在一方炫耀卡其色的反衬下,更显舒适时尚

大理石电视背景墙与两边镂空造型的屏风相呼应,层次丰富,富有立体感

如意纹和海棠纹元素的贯穿,更让人们感受到中国文化的艺术魅力
石纹与窗帘打造水墨意境

厚重实木餐桌椅带来沉稳的感觉

正餐餐厅

颇有气势的花鸟屏风作为餐厅的隔断

主卧用了奢华的皮床与皮草





高雅蓝色点缀在床后作为背景色

床上的皮毛增添贵气

古韵浓郁的书房

主卧衣帽间的雕花家具间带来轻奢感觉

简洁的洗手间
整体空间装饰都采用简约的直线条,干净随性。无论是家具、装饰还是硬装的处理,都迎合了现代人对中式家居追求的内敛、质朴风格。使新中式看起来更加实用、富现代感。
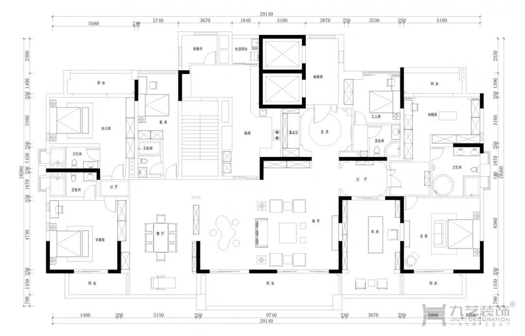
在硬装改造中,将原来与客厅相连部分的房间改成餐厅,改造后的餐厅与喝茶区屏风相隔,同时开放茶室与客厅,使整个空间更大化,符合当代人的生活需求。
设计师将当下最流行的中国元素融入到空间营造中,诠释一种雅致、贵气的意境生活。从头到尾如意纹和海棠纹元素的贯穿,更让人们感受到中国文化的艺术魅力。