乐动体育

九艺装饰(三星装饰)

广州
切换城市
自营公司
  • 广州市
  • 肇庆市
  • 惠州市
  • 汕头市
  • 湛江市
  • 赣州市
  • 泉州市
  • 漳州市
  • 南安市
  • 福州市
  • 镇江市
  • 威海市
  • 六盘水
  • 东莞市
  • 海口市
装修报价咨询热线: 177-8888-9250
您的当前位置: 乐动体育 › 装修案例
凤凰城-240㎡演绎色彩美学
凤凰城-240㎡演绎色彩美学
业主张女士一家三口居住在这套大宅内,她和先生希望房子简明大气,呈现艺术馆般的氛围;已经成年的女儿则希望自己能有独立空间,满足储物和娱乐学习的功能。将生活进行艺术化的设计和展示,是本案的设计重点。
  • 装修公司
    九艺装饰
  • 装修楼盘
    碧桂园凤凰城
  • 装修风格
    美式
  • 户型结构
    四居室及以上
  • 装修面积
    240平方
  • 设计师
    广州设计团队
0
  • 全部
  • 户型图
  • 玄关
  • 客厅
  • 餐厅
  • 厨房
  • 主卧
  • 次卧
  • 儿童房
  • 书房
  • 衣帽间
  • 卫生间
  • 阳台
  • 其他
  • 设计说明
  • 户型图JIUYIDES
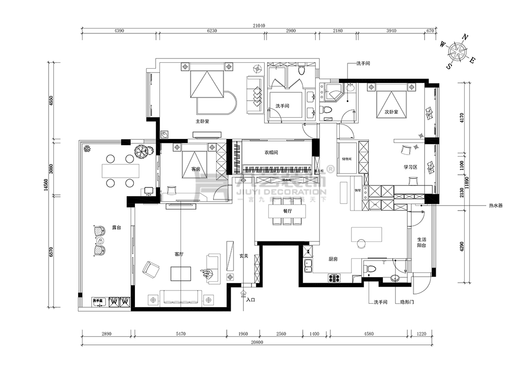
    户型图
    原结构为五房四卫两厅。梁多,房间小,功能区动线不流畅。餐厅和入户没有自然采光,比较昏暗。
  • 户型图
    重新规划后,改造成更适宜三口人居住的三房两厅三卫的格局,走廊、玄关、过道等零碎的小空间被重新规划整理。
    (1)改造后的客餐厅和中西厨形成一个大型公共空间,不仅场景开阔,还解决了原餐厅和走廊过道等区域的采光通风问题。
    (2)一间小房被划入女儿房,形成一室一厅一卫的小套房格局。
    (3)改造后的户型更能统一风格,展现格调及强大气场。
    • 客厅JIUYIDES
      客厅
      设计师借鉴艺术类展馆的空间手法,从空间尺度、生活动线入手,规划出简洁理性的空间秩序;通过色彩和软装陈设,营造空间的艺术氛围,传递美学意趣;让艺术与生活于空间中交错,迸发出迷人的气质。
    • 客厅
      沙发背景墙使用了孔雀蓝,亮眼的孔雀蓝神秘又优雅,彰显砖红色块装饰画。大胆鲜明的配色让空间充满生命力。
    • 客厅
      环形吊灯极具现代感。整个客厅的色彩和材质,或和谐呈现,或对比突显,完美地展示出色彩与氛围感受。
    • 餐厅JIUYIDES
      餐厅
      改造后的餐厅采光区域增加,设计师又大面积地使用了白色和灰色,更显宽敞明亮。
    • 餐厅
      餐厅过道悬挂一幅大尺寸的火烈鸟贝壳画,为空间打造视觉焦点并奠定气场。
    • 餐厅
      飞碟吊灯简洁现代,与现代餐桌相得益彰。
    • 厨房JIUYIDES
      厨房
      厨房墙面蓝色的墙砖,与单色的白墙面形成对比,视觉上更具冲击力。
    • 厨房
      到顶的橱柜更显简约大气。
    • 厨房
      岛台上的花艺与小品为生活增添小乐趣。
    • 主卧JIUYIDES
      主卧
      主卧选择了业主夫妻喜欢的北欧风,线条简洁。
    • 主卧
      灰绿色背景墙面搭配装饰画,鲜亮的黄色抱枕和沙发上随意放置的盖毯,带来自由、随意的感觉。
      • 儿童房JIUYIDES
        儿童房
        因为业主女儿偏好灰色,设计师用灰色调作为空间主色。
      • 儿童房
        灰蓝色布艺配合颇具设计感的金属灯具,打造年轻女孩喜欢的小美式风情。
        • 衣帽间JIUYIDES
          衣帽间
          女儿套间里专门有一间书房兼衣帽间。
        • 衣帽间
          最好收纳就是展示美观的小部分,收起日常的大部分。书桌前摆一把明黄色的座椅便点亮了整个空间。
        • 卫生间JIUYIDES
          卫生间
          主卧洗手机的装饰墙采用了与卧室一样的灰绿色墙面。
        • 阳台JIUYIDES
          阳台
          阳台摆放了一套休闲桌椅。风和日丽的时候可以享受室外充足的阳光与空气。
        • 其他JIUYIDES
          走廊
          开过式的空间设计极大地提高了空间效率,既是通道,也是功能空间的一部分。
        • 走廊
          设计师利用餐厅与厨房的联结处的墙体巧妙的安置钢琴,成为公共空间的社交亮点。

        业主张女士一家三口居住在这套大宅内,她和先生希望房子简明大气,呈现艺术馆般的氛围;已经成年的女儿则希望自己能有独立空间,满足储物和娱乐学习的功能。将生活进行艺术化的设计和展示,是本案的设计重点。

        本案设计师简介
        广州设计团队
        私宅家装室内装修设计
        设计案例:26套
        擅长风格:现代简约、轻奢、新中式、北欧、美式、奶油风、中式、欧式、日式…
        预约TA
        我家装修需要多少钱?10秒估算一下
        装修估算
        装修计算器已经有 16508 业主获取了装修预算
        • 您的称呼:
        • 手机号码:
        • 所在城市:
        • 房屋面积:
        装修预算报价为:184657
        • 材料费:18897
        • 人工费:24514
        • 设计费:4988 元
        • 管理费:8504 元
        * 报价价格仅供参考,实际装修价格以人工报价为准
        九艺简介
        乐动体育-乐动体育官方网站|LEDONGSPORTS 热线
            177-8888-9250
        地址:广州市天河区珠江新城花城大
        道2号名门大厦首层
        预约设计
        扫一扫,微信沟通
        扫一扫,微信沟通
        Copyright@2021-2025 architectephilippegobin.com All Rights Reserved 乐动体育-乐动体育官方网站|LEDONGSPORTS 版权所有
        《中华人民共和国电信与信息服务业务经营许可证》
        X
        我要预约
        装修顾问将在预约后24小时内与您联系
        • 您的姓名
        • 您的手机号
        • 房屋的面积
        * 为了您的利益和我们的口碑,我们将严格保密您的个人隐私
        X
        设计方案
        定制您的专属设计方案