乐动体育

九艺装饰(三星装饰)

广州
切换城市
自营公司
  • 广州市
  • 肇庆市
  • 惠州市
  • 汕头市
  • 湛江市
  • 赣州市
  • 泉州市
  • 漳州市
  • 南安市
  • 福州市
  • 镇江市
  • 威海市
  • 六盘水
  • 东莞市
  • 海口市
装修报价咨询热线: 177-8888-9250
您的当前位置: 乐动体育 › 装修案例
丽景华庭-160㎡色彩缤纷的“童画”之宅
丽景华庭-160㎡色彩缤纷的“童画”之宅
业主夫妻有两个不到十岁的孩子,老人另有居所。这个160平的空间是小家庭日常休憩的场地,也是与友人共赏美食的聚所,更是孩子们呼朋引伴,嬉戏玩耍的乐园。既能让成年人诗意栖息,又能激发孩子的想象力,两者如何谐调呢?设计师在小朋友们充满想象力的画作中找到了灵感和突破口。将空间焦点放在孩子们缤纷多彩、充满灵感的绘画作品上,精心挑选出一部分作品,用“童画”为这个家庭打造出多彩浪漫的美式轻奢家居。
  • 装修公司
    九艺装饰
  • 装修楼盘
    丽景华庭
  • 装修风格
    美式
  • 户型结构
    三居室
  • 装修面积
    160平方
  • 设计师
    吴明洪
0
  • 全部
  • 户型图
  • 玄关
  • 客厅
  • 餐厅
  • 厨房
  • 主卧
  • 次卧
  • 儿童房
  • 书房
  • 衣帽间
  • 卫生间
  • 阳台
  • 其他
  • 设计说明
  • 户型图JIUYIDES
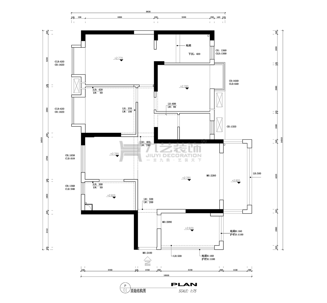
    原始户型图

    原始结构为四房二厅二卫的原始格局。入口玄关处过窄,厨房面积满足不了女业主的需求。主卧布置床和衣柜后空间不够舒适

  • 平面户型图

    玄关扩大与一侧的小房间联通,左侧设置墙柜作收纳,右侧的用地台作区域划分,设置可开合的多功能休闲区,提供儿童专有玩耍空间。餐厨空间拆除隔墙与客厅联通,开放式的布局满足了家人日常互动与交流的需求。公共洗手间将洗手池与卫浴设备做了二分式的设计,可以同时使用两个空间,提高了空间效率。主卧墙体向外推50公分后,空间尺寸变得更加舒适。

  • 玄关JIUYIDES
    经典实用的入户玄关

    经典实用的入户玄关。入墙的储物柜满足了全家的衣帽鞋等物品的收纳需求,让空间更加整洁。玄关暗绿色的背景墙上挂着孩子充满童趣挂画,桌面摆着淘气的小人物托盘,鲜明的配色带来超现实的童话意境。

  • 客厅JIUYIDES
    在节奏上以明朗轻快为主

    整个设计在节奏上以明朗轻快为主。为了保留童心,空间的整体风格倾向自然舒适,同时营造欢乐的感觉

  • 空间呈现甜美灵动的感觉

    在色彩运用上,用象牙白作为基础色调,搭配愉悦的黄色、静谧的蓝色等自然色彩,整个空间呈现甜美灵动的感觉

  • 在墙面和地面做了精致的细节处理

    为了避免单调,设计师在墙面和地面做了精致的细节处理,墙面以及柜面等立面都采用精致的欧式线条装饰,实木线条内嵌金属线,营造出典雅精致感觉

  • 孩子们的画被作为空间焦点

    孩子们的画被作为空间焦点应用在沙发背景墙面。设计师将儿童画在空间中进行合理而有趣味的组合搭配,可以保持孩子们对环境的新鲜感和好奇心, 激发他们的想象力,未来还可以不断地更新孩子们的新作品

  • 餐厅JIUYIDES
    新古典主义风格家具

    餐厅选择了新古典主义风格家具。有软包设计的餐椅舒适又大气

  • 选择了孩子们的画作组合

    餐厅的墙面同样选择了孩子们的画作组合,增加趣味性

  • 厨房JIUYIDES
    充满温情的厨房

    开放式厨房加岛台的设计既能承接各功能区,又能营造开放的社交氛围,有爱人帮忙、有小朋友参与、有朋友谈笑,充满温情的厨房

  • 厨房里的惊喜之地

    岛台隔而不断,既能为厨房空间扩容,还能充当日常加餐的餐桌、午后小酌的吧台,是厨房里的惊喜之地

  • 主卧JIUYIDES
    主卧素雅宁静

    主卧素雅宁静,背景墙采用了典雅灰绿色,用黄色作为点缀延续了主空间的灵动感

  • 灰色的精致铆钉软包床具

    灰色的精致铆钉软包床具,营造高雅的气质;非常适合精致优雅的空间

    • 儿童房JIUYIDES
      鲜亮的玫瑰色床具

      大女儿的房间活泼又甜蜜。鲜亮的玫瑰色床具,可爱的比卡丘玩偶,元素可爱有趣。放置了上下双层床,为来访小伙伴们预留了休息空间

    • 小女儿的房间清新、简洁

      小女儿的房间清新、简洁。以象牙白作为基础色,用暖意融融的浅粉和浅黄色作为点缀,带给孩子清新的视觉享受

    • 用了可爱的兔子元素

      房子里用了可爱的兔子元素,空间变得俏皮可爱

    • 书房JIUYIDES
      孩子们的玩乐场所

      孩子们的玩乐场所。动漫造型的涂鸦墙,可以打滚的榻榻米,精彩纷呈的绘本架……

    • 享受惬意的亲子时光

      玩累了的孩子们可以在榻榻米上休息,陪同的大人也能的沏上一壶茶,享受惬意的亲子时光

      • 卫生间JIUYIDES
        洗手间用了简洁利落的黑白色

        洗手间用了简洁利落的黑白色

      • 解决了化妆品收纳和梳妆的问题

        台下盘简洁,易于清洁。安装的镜柜一次性解决了化妆品收纳和梳妆的问题

          业主夫妻有两个不到十岁的孩子,老人另有居所。这个160平的空间是小家庭日常休憩的场地,也是与友人共赏美食的聚所,更是孩子们呼朋引伴,嬉戏玩耍的乐园。

          既能让成年人诗意栖息,又能激发孩子的想象力,两者如何谐调呢?设计师在小朋友们充满想象力的画作中找到了灵感和突破口。将空间焦点放在孩子们缤纷多彩、充满灵感的绘画作品上,精心挑选出一部分作品,用“童画”为这个家庭打造出多彩浪漫的美式轻奢家居。

          本案设计师简介
          吴明洪
          资深设计师
          从业年限:8 年 | 精选案例:7套
          擅长风格:现代、极简、新中式、奶油
          预约TA
          我家装修需要多少钱?10秒估算一下
          装修估算
          装修计算器已经有 16508 业主获取了装修预算
          • 您的称呼:
          • 手机号码:
          • 所在城市:
          • 房屋面积:
          装修预算报价为:184657
          • 材料费:18897
          • 人工费:24514
          • 设计费:4988 元
          • 管理费:8504 元
          * 报价价格仅供参考,实际装修价格以人工报价为准
          九艺简介
          乐动体育-乐动体育官方网站|LEDONGSPORTS 热线
              177-8888-9250
          地址:广州市天河区珠江新城花城大
          道2号名门大厦首层
          预约设计
          扫一扫,微信沟通
          扫一扫,微信沟通
          Copyright@2021-2025 architectephilippegobin.com All Rights Reserved 乐动体育-乐动体育官方网站|LEDONGSPORTS 版权所有
          《中华人民共和国电信与信息服务业务经营许可证》
          X
          我要预约
          装修顾问将在预约后24小时内与您联系
          • 您的姓名
          • 您的手机号
          • 房屋的面积
          * 为了您的利益和我们的口碑,我们将严格保密您的个人隐私
          X
          设计方案
          定制您的专属设计方案