乐动体育

九艺装饰(三星装饰)

广州
切换城市
自营公司
  • 广州市
  • 肇庆市
  • 惠州市
  • 汕头市
  • 湛江市
  • 赣州市
  • 泉州市
  • 漳州市
  • 南安市
  • 福州市
  • 镇江市
  • 威海市
  • 六盘水
  • 东莞市
  • 海口市
装修报价咨询热线: 177-8888-9250
您的当前位置: 乐动体育 › 装修案例
叠彩园-126㎡顶层复式爆改
叠彩园-126㎡顶层复式爆改
本案设计的重点在于结构的改造。通过利用阳台的加建、扩建,使原本比较狭小的空间变得宽敞,大气,通透,最大限度地发挥了空间的能动性。软装设计方面,以米黄色为主色调,点缀金色的欧式沙发,配上华丽的水晶灯,为了不使空间过于色彩单调,搭配了少许蓝色的窗帘,靠枕,饰品和挂画等,让整个空间协调舒适的同时,又不失丰富多彩的韵味感!
  • 装修公司
    九艺装饰
  • 装修楼盘
    叠彩园
  • 装修风格
    欧式
  • 户型结构
    复式
  • 装修面积
    126平方
  • 设计师
    蔡俊蓉
0
  • 全部
  • 户型图
  • 玄关
  • 客厅
  • 餐厅
  • 厨房
  • 主卧
  • 次卧
  • 儿童房
  • 书房
  • 衣帽间
  • 卫生间
  • 阳台
  • 其他
  • 设计说明
  • 户型图JIUYIDES
    一层平面布置及立面索引图

    A区在整个户型结构中,玄关面积过于小气。

    B区厨房面积小,操作台面少。

    C区客厅空间分布不明显,背景不够大气,摆放受空间的限制。

  • 一层平面布置及立面索引图
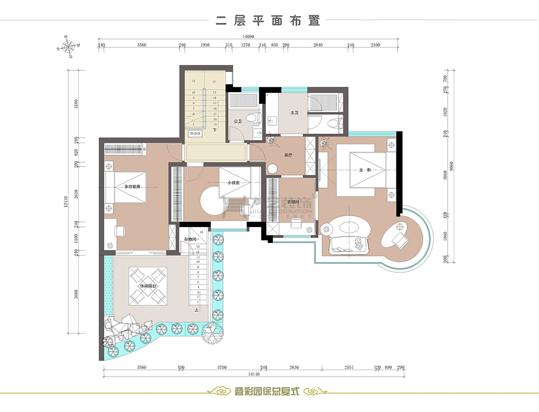
  • 二层平面布置及立面索引图

    A区小孩房面积小。

    B区主卧面积太大,床位布局受到影响。

    C区户外阳台,空间过于开阔,接近顶楼公共空间,安全性不高

  • 二层平面布置及立面索引图
  • 顶层平面布置及立面索引图

    A区从房间到顶楼的行走路线过于绕。设计师通过设计,可以直接从花园的楼梯上顶层

  • 顶层平面布置及立面索引图
  • 玄关JIUYIDES
    解决入户收纳的问题

    从入门处开始,白色的挂壁柜,解决入户收纳的问题。全屋统一,整洁干净

  • 白色的挂壁柜
  • 客厅JIUYIDES
    古典欧式元素

    设计师提炼了古典欧式元素,为空间注入了艺术气质。

    欧式家具造型典雅,线条优美;整体空间呈现出高贵、优雅的品质感。

  • 客厅和餐厅以沙发作为自然分隔

    客厅和餐厅以沙发作为自然分隔,隔而不断。

    视觉上开阔通透,富有层次感,统一的风格与色彩,避免杂乱。

  • 餐厅JIUYIDES
    餐厅
  • 厨房JIUYIDES
    大容量的储物柜

    大容量的储物柜,收纳了瓶瓶罐罐。

    在满足生活需要的同时,营造出洁净清爽的视觉感受

  • 营造出洁净清爽的视觉感受
  • 主卧JIUYIDES
    主卧幽静雅致

    主卧幽静雅致,蓝色在空间中灵活运用,融入现代生活动线里。

  • 床屏是一幅复古欧式花鸟图

    床屏是一幅复古欧式花鸟图,宁静而闲适

  • 流畅的弧形线条

    旧阳台打通后改造成飘台休闲区,成为室内的一部分。流畅的弧形线条,勾勒出迷人的空间质感

        • 衣帽间JIUYIDES
          卧室加上一排衣柜

          原有的大卧室加上一排衣柜,分割出可以当做工作室的衣帽间,大大地提高空间的利用率

        • 卫生间JIUYIDES
          玻璃隔断实现干湿分离

          玻璃隔断实现干湿分离,盛开的植物散发出一缕清新

        • 卫生间洗手盆
        • 卫生间镜子
          • 其他JIUYIDES
            花园采用分层设计

            花园采用分层设计,可以赏花,晒太阳,营造出生活悠然自得的美好画面

          • 可以赏花,晒太阳

          本案设计的重点在于结构的改造。通过利用阳台的加建、扩建,使原本比较狭小的空间变得宽敞,大气,通透,最大限度地发挥了空间的能动性。

          软装设计方面,以米黄色为主色调,点缀金色的欧式沙发,配上华丽的水晶灯,为了不使空间过于色彩单调,搭配了少许蓝色的窗帘,靠枕,饰品和挂画等,让整个空间协调舒适的同时,又不失丰富多彩的韵味感!

          本案设计师简介
          蔡俊蓉
          整装馆 设计总监
          从业年限:19 年 | 作品案例:13套
          擅长风格:现代、轻奢、美式、欧式、新中式
          预约TA
          我家装修需要多少钱?10秒估算一下
          装修估算
          装修计算器已经有 16508 业主获取了装修预算
          • 您的称呼:
          • 手机号码:
          • 所在城市:
          • 房屋面积:
          装修预算报价为:184657
          • 材料费:18897
          • 人工费:24514
          • 设计费:4988 元
          • 管理费:8504 元
          * 报价价格仅供参考,实际装修价格以人工报价为准
          九艺简介
          乐动体育-乐动体育官方网站|LEDONGSPORTS 热线
              177-8888-9250
          地址:广州市天河区珠江新城花城大
          道2号名门大厦首层
          预约设计
          扫一扫,微信沟通
          扫一扫,微信沟通
          Copyright@2021-2025 architectephilippegobin.com All Rights Reserved 乐动体育-乐动体育官方网站|LEDONGSPORTS 版权所有
          《中华人民共和国电信与信息服务业务经营许可证》
          X
          我要预约
          装修顾问将在预约后24小时内与您联系
          • 您的姓名
          • 您的手机号
          • 房屋的面积
          * 为了您的利益和我们的口碑,我们将严格保密您的个人隐私
          X
          设计方案
          定制您的专属设计方案