

方案说明
SCHEME DESCRIPTION
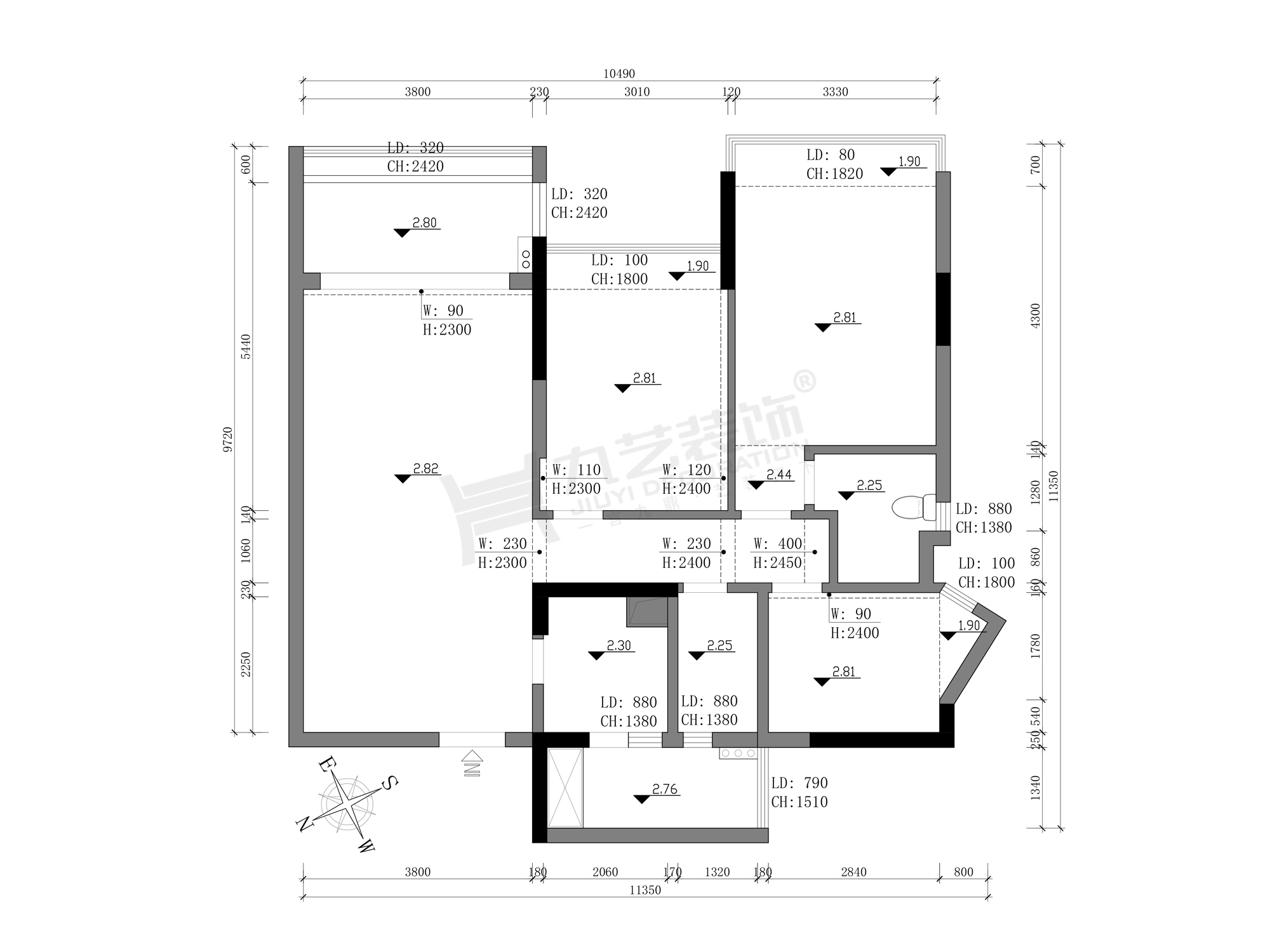
本项目属于二手住宅改造项目。常住人口是一对夫妻和一个很可爱的女儿,长辈偶尔过来居住。
我们以业主的名字为这个家命名,《Angie and Jack》,以爱之名,做有时间质感和沉淀感的设计,随着时间不断流转,家也会变得越来越有味道。

原本的空间划分较为零碎,于是将阳台纳入客厅,增设品茗区。墨绿色书架将两个功能区衔接起来,与客厅的橙色相得益彰。





餐厅的一边设计了兼酒柜和收纳于一体的多功能“墙”,为交融的空间提供功能性的收纳。

改变主卧入口的位置,向后退出一整排长衣柜,媲美一个超大衣帽间的储物体量,配合低饱和粉色和雾霾蓝点缀,营造宁静舒缓的空间感受。



女孩子的房间,粉色系的浪漫唯美中透出可爱的气息。在这一方小天地,记录下孩子成长的点点滴滴。



本项目属于二手住宅改造项目。常住人口是一对夫妻和一个很可爱的女儿,长辈偶尔过来居住。
我们以业主的名字为这个家命名,《Angie and Jack》,以爱之名,做有时间质感和沉淀感的设计,随着时间不断流转,家也会变得越来越有味道。