
负一层平面户型图

一层平面户型图

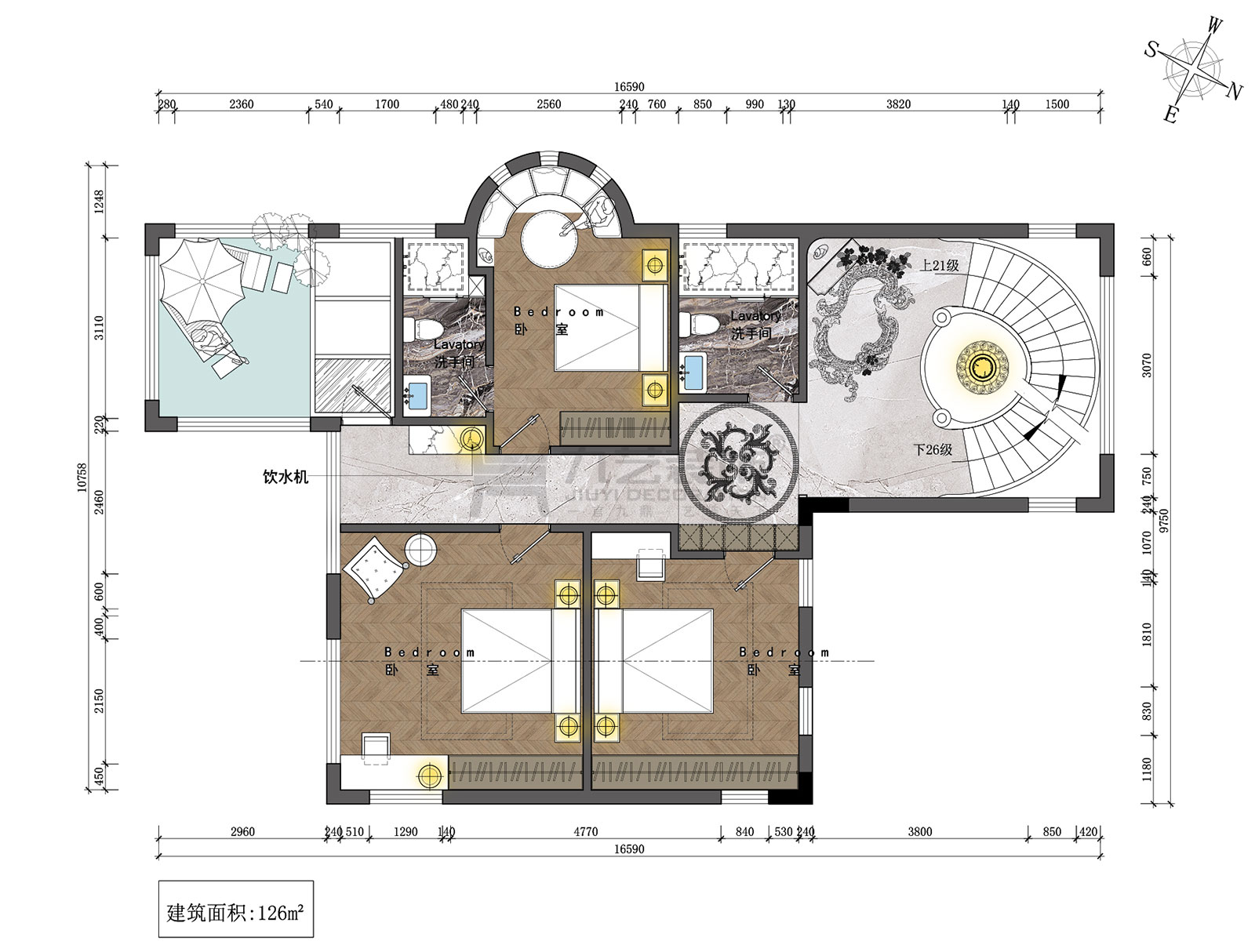
二层平面户型图

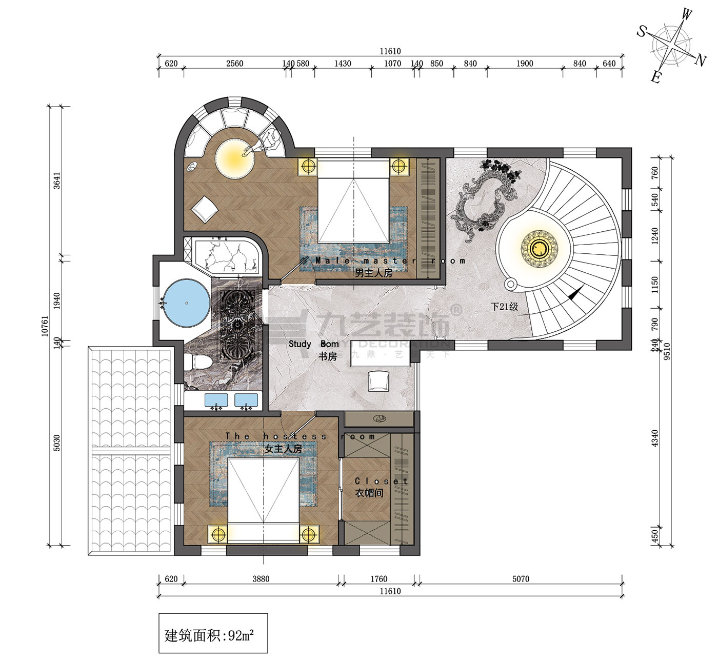
三层平面户型图
一层设计图

门厅地面采用金银花型来设计,寓意“花开富贵”,橙灰与蓝灰撞色效果醒目,在色彩彩度上面降低其纯度,使其既有对比又和谐统一,阴阳协调,好运连连,橙灰抽象画与景泰蓝背景搭配也是同出一辙!







负一层设计图
起居室JIUYIDES

波浪纹的天花独特设计是基于建筑结构梁比较复杂的情况而设计与地面鱼骨纹木纹砖的搭配时尚协调,大面积的书架展示主人翁书香文化浓郁,是有内涵的知识型人才,花型元素的点缀可谓妙笔生花、醒目自然!

吧台设计是一个亮点,金属、大理石、陶瓷绿釉材质运用,体现出吧台独特的气质!


茶室JIUYIDES

现代信息的飞速发展,有效的促进我们对新世界的认知,本空间采用后现代的手法营造,我们尝试着摒弃一种比较传统的旧观念,茶室并不一定是中式,它也可以是现代茶室,新时代的休身养性的起居居所!

古筝室JIUYIDES

古筝室还是保留中式禅意的韵味,它可以兼顾瑜伽休闲为一体的多功能房
楼梯厅JIUYIDES

弧形楼梯与圆形电梯的搭配时尚 高档,我们力求用最简洁的装饰体现一种高层次的轻奢生活美学,摒弃繁复的装饰主义,“少即是多”

二层设计图

高级灰配合方案,6+3+1法则提升空间档次,品味非凡!




色彩上柔和搭配:灯光采用见光不见灯设计手法,光照度在3000~3800K上下,使空间明亮柔和以达到舒适惬意的卧室空间!


三层设计图
男主人房JIUYIDES

三层男主人房的设计在结构上运用了点结构主义,在配色上面用莫兰迪进行装饰协调,营造氛围,简洁干练,彰显成功男士风范!
女主人房JIUYIDES

三层女主人房的设计,运用了点民宿风格返璞归真的思路,素雅安静,灯光采用3200K营造浪漫氛围,材质以温性的木材和莫兰迪配色搭配,以达到一种低调奢华浪漫的境界!

书房的设计在色彩上力求稳重协调安静。

三层卫生间,地面采用冰川玉大理石,墙面贴鱼肚白大理石,配合德国杜拉格斯的经典花洒龙头,优雅奢华,天花钛合金的线条明快质感突出,匠心独运!
遵循建筑原有特征,在现有建筑外观结构和材质上做轻度调整,参照托斯卡纳建筑风格。
轻奢主义是当下最流行的设计风格,其材质的质感差别直接影响空间品质!
折衷主义又称轻奢主义是当下最流行的设计风格,但是国内设计能理解其精髓的比较少;现代轻奢它属于不满足一种美的多项审美诉求综合体,定位在于社会顶层成功人士!不讲求固定的法式,力求比例均衡,注重形式美与功能协调的完美设计风格!