

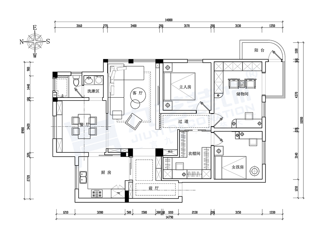
改造要点:
①增设入户玄关柜;
②原厨房入口改为玻璃展示柜;
③拆除部分墙体,改为厨房入口;
④拆除部分墙面,改为卫生间入口;
⑤餐厅与客厅部分墙体改为玻璃隔断;
⑥新建墙体,改成过道与封闭衣帽间;
⑦原入户打通,空间变大;
⑧改变卫生间入口,视觉上客厅空间增大;

深蓝色艺术涂料与木质柜搭配出神秘轻奢感

装饰画在视觉上延伸过道空间,内嵌射灯营造层次感;左侧墙增设玄关鞋柜,强化储物功能

灰色质感大理石门框将玄关与客厅空间区分开来

无主灯设计强化空间的通透感,深灰色和橙色芝华士皮质沙发互为点缀,尽显现代轻奢感,运用水波纹玻璃屏风隔断客厅与餐厅。

黑色木质开放式展示柜配合大理石地台,简约大气。

嵌入式设计使电视与背景墙融为一体,整体协调统一;实木隔断屏风,强化采光效果。嵌入式设计使电视与背景墙融为一体,整体协调统一;实木隔断屏风,强化采光效果。

大理石餐桌可手动调节长度,适应更多情况下的用餐需求,橙色餐椅与暖色灯光,营造温馨舒适的就餐氛围,开窗的设计既能加强空气流通,也能强化采光效果。

西厨台面还增加收纳和使用场景、功能。

厨房采用简约黑为主,搭配大理石合成的面板,显得更高级。

橙黄色艺术涂料搭配玫瑰金色金属线条,轻奢大气;深灰色软包与灰色窗帘相呼应,和谐统一;复合实木地板打造舒适稳重的卧室氛围。

女儿房墙面艺术涂料与整体色调相呼应,金属线条点缀装饰;金属材质壁灯,灯光柔和,适合作为睡前阅读灯或起夜照明;房门设计一门到顶,木纹色与橙色为相近色,过渡自然。

书桌用搁板分隔开,一侧打造独立办公区,一侧作为装饰物摆放区,顶部射灯强化装饰

原空间增设两面墙体,改造成衣帽间与室内过道;衣帽间独立出来作为全家的公用空间;但特意设置横向推拉门,又可保护女儿房隐私。

L型动线设计既能最大程度地利用空间,又符合居家活动的习惯。
房子是业主一家三口居住了二十多年的老房子,居家动线设计不够合理;居住时间久,储物需求大;房子层高较高,空间利用率低。
改造之后,各功能区之间形成合理的居家动线;玄关、客厅、衣帽间增设储物柜,提高空间的储物能力;灰色+橙色+卡其色作为空间主色调,空间氛围活跃有质感。
日复一日的居家生活,外观的设计可能会厌倦,只有以人为本的功能性设计,才能让客户在时间的检验中感受到设计的魅力。