乐动体育

九艺装饰(三星装饰)

广州
切换城市
自营公司
  • 广州市
  • 肇庆市
  • 惠州市
  • 汕头市
  • 湛江市
  • 赣州市
  • 泉州市
  • 漳州市
  • 南安市
  • 福州市
  • 镇江市
  • 威海市
  • 六盘水
  • 东莞市
  • 海口市
装修报价咨询热线: 177-8888-9250
您的当前位置: 乐动体育 › 装修案例
天河金地公馆-650㎡低调的舒适的生活
天河金地公馆-650㎡低调的舒适的生活
本案位于金地天河公馆,业主是一对中年事业有成的夫妇,一家五口。夫妇二人对宋代的文化和古典文温馨的居家生活颇为喜欢,他们热爱生活也对生活品质有自己的追求。夫妇二人对宋代的文化和古典文温馨的居家生活颇为喜欢。设计师以宋代文化为脉,溯源宋代美学,采用现代"奢主义"来塑造现代空间的宋代美学,以此呈现业主低调的奢华,让家庭每一个人都有一个舒适适合自己的空间。
  • 装修公司
    九艺装饰
  • 装修楼盘
    金地天河公馆
  • 装修风格
    新中式
  • 户型结构
    别墅
  • 装修面积
    650平方
  • 设计师
    唐生春
0
  • 全部
  • 户型图
  • 玄关
  • 客厅
  • 餐厅
  • 厨房
  • 主卧
  • 次卧
  • 儿童房
  • 书房
  • 衣帽间
  • 卫生间
  • 阳台
  • 其他
  • 设计说明
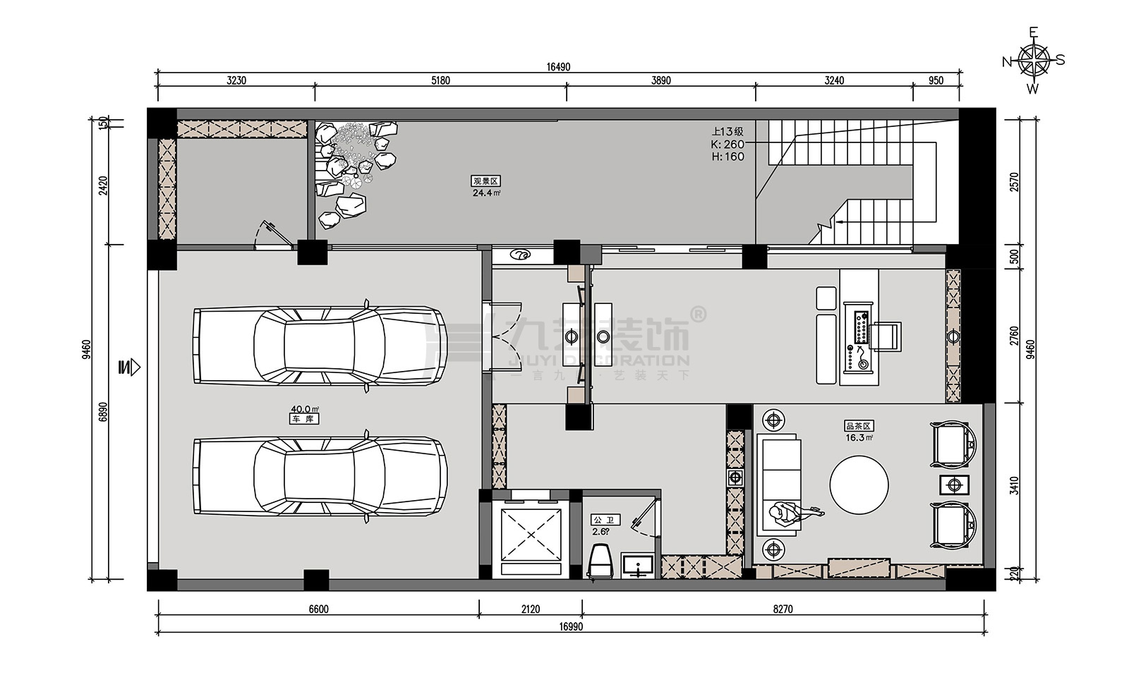
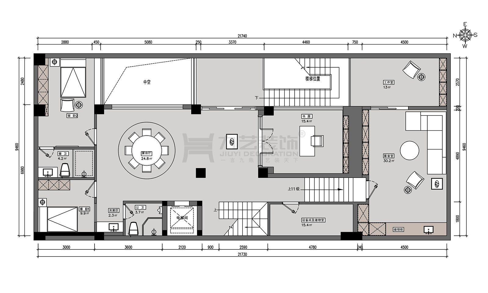
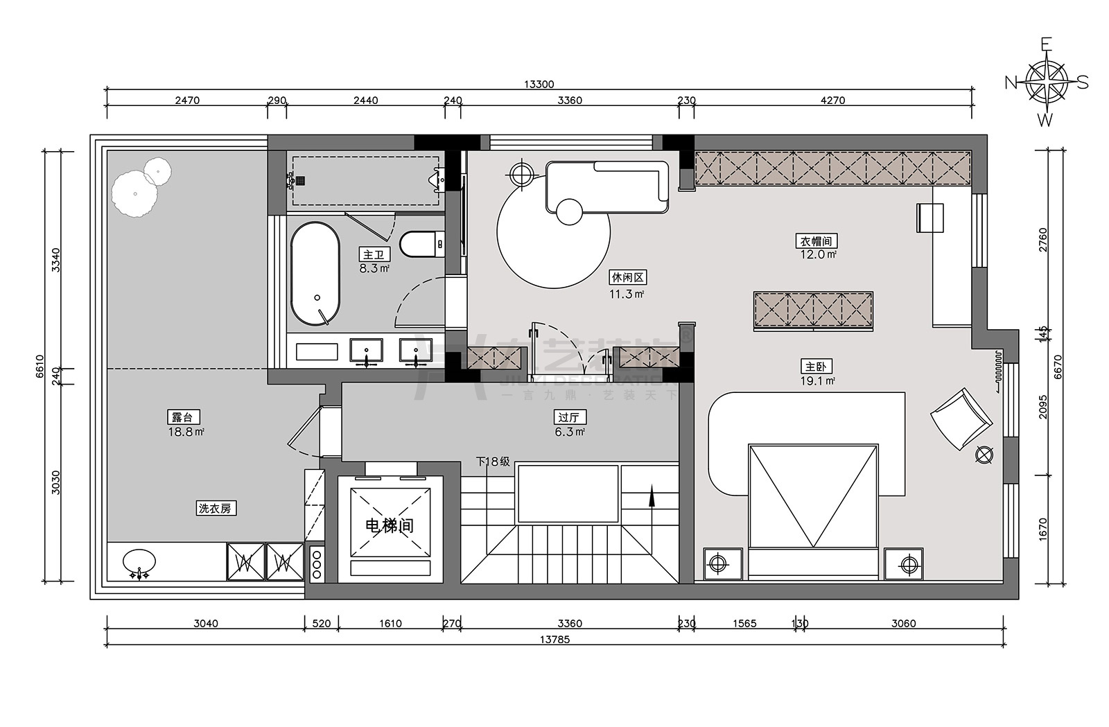
  • 户型图JIUYIDES
    平面户型图
  • 平面户型图
  • 平面户型图
  • 平面户型图
  • 平面户型图
  • 玄关JIUYIDES
    玄关
  • 客厅JIUYIDES
    客厅全景
  • 电视沙发景
  • 客厅电视景
  • 餐厅JIUYIDES
    餐厅
  • 厨房JIUYIDES
    厨房
  • 主卧JIUYIDES
    主卧
  • 主卧
  • 次卧JIUYIDES
    次卧
  • 次卧
  • 儿童房JIUYIDES
    儿童房
  • 书房JIUYIDES
    书房

          本案位于金地天河公馆,业主是一对中年事业有成的夫妇,一家五口。夫妇二人对宋代的文化和古典文温馨的居家生活颇为喜欢,他们热爱生活也对生活品质有自己的追求。夫妇二人对宋代的文化和古典文温馨的居家生活颇为喜欢。设计师以宋代文化为脉,溯源宋代美学,采用现代"奢主义"来塑造现代空间的宋代美学,以此呈现业主低调的奢华,让家庭每一个人都有一个舒适适合自己的空间。

          本案设计师简介
          唐生春
          设计研究院 院长
          从业年限:20 年 | 作品案例:6套
          擅长风格:现代、北欧、欧式、新中式、轻奢
          预约TA
          我家装修需要多少钱?10秒估算一下
          装修估算
          装修计算器已经有 16508 业主获取了装修预算
          • 您的称呼:
          • 手机号码:
          • 所在城市:
          • 房屋面积:
          装修预算报价为:184657
          • 材料费:18897
          • 人工费:24514
          • 设计费:4988 元
          • 管理费:8504 元
          * 报价价格仅供参考,实际装修价格以人工报价为准
          九艺简介
          乐动体育-乐动体育官方网站|LEDONGSPORTS 热线
              177-8888-9250
          地址:广州市天河区珠江新城花城大
          道2号名门大厦首层
          预约设计
          扫一扫,微信沟通
          扫一扫,微信沟通
          Copyright@2021-2025 architectephilippegobin.com All Rights Reserved 乐动体育-乐动体育官方网站|LEDONGSPORTS 版权所有
          《中华人民共和国电信与信息服务业务经营许可证》
          X
          我要预约
          装修顾问将在预约后24小时内与您联系
          • 您的姓名
          • 您的手机号
          • 房屋的面积
          * 为了您的利益和我们的口碑,我们将严格保密您的个人隐私
          X
          设计方案
          定制您的专属设计方案