乐动体育
广州
切换城市
自营公司
广州市
肇庆市
惠州市
汕头市
湛江市
赣州市
泉州市
漳州市
南安市
福州市
镇江市
威海市
六盘水
东莞市
海口市
设计师
装修案例
搜索
装修报价咨询热线:
177-8888-9250
乐动体育-乐动体育官方网站|LEDONGSPORTS
乐动体育-乐动体育官方网站|LEDONGSPORTS
全屋整装
个性定制
高端设计
装修贷款
品牌实力
品牌介绍
品牌故事
荣誉资质
品牌动态
客户心声
精品案例
家装案例
工装案例
全景VR
视频案例
设计团队
装修报价
优惠活动
热装楼盘
服务小区
在建工地
装修保障
服务流程
品质保障
售后服务
装修知识
装修攻略
装修空间
装修材料
装修风格
装修局部
乐动体育-乐动体育官方网站|LEDONGSPORTS
乐动体育-乐动体育官方网站|LEDONGSPORTS
全国店面
您的当前位置: 乐动体育 › 装修案例
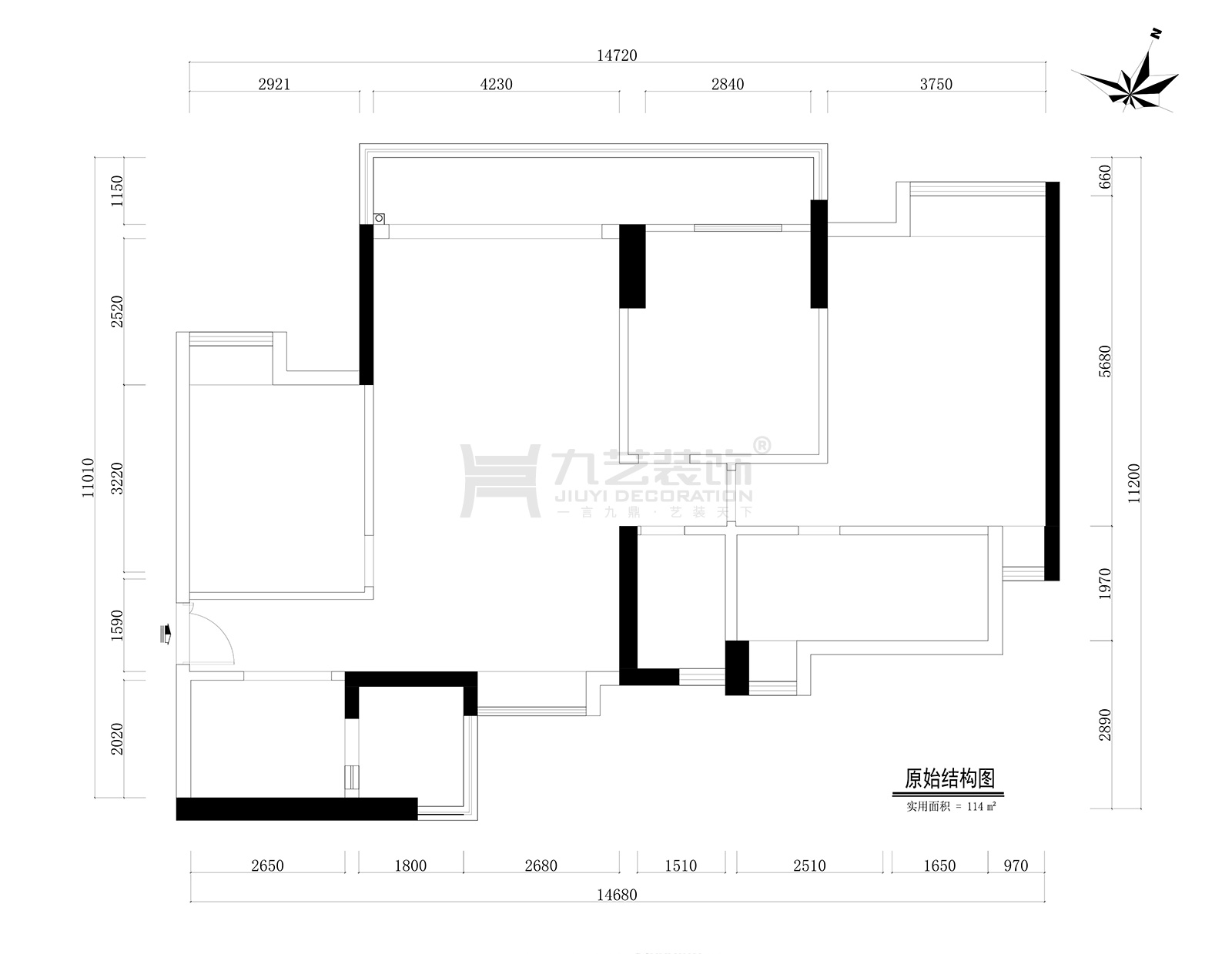
中海花城湾-114㎡摒弃色彩
摒弃色彩,是一种果敢的生活态度;是舍离? 更是收获;就像一幅单色画,少了色觉的扰乱;才能专注于物的轮廓、质地,以及光影形塑
装修公司
九艺装饰
装修楼盘
中海花城湾
装修风格
轻奢
户型结构
三居室
装修面积
114平方
设计师
叶恒果
0
全部
户型图
玄关
客厅
餐厅
厨房
主卧
次卧
儿童房
书房
衣帽间
卫生间
阳台
其他
设计说明
户型图
JIUYIDES
玄关
JIUYIDES
客厅
JIUYIDES
餐厅
JIUYIDES
主卧
JIUYIDES
次卧
JIUYIDES
儿童房
JIUYIDES
卫生间
JIUYIDES
都市繁华中心,坐拥广州CDB!独树一帜各有其魅力。
摒弃色彩,是一种果敢的生活态度
是舍离? 更是收获
就像一幅单色画,少了色觉的扰乱
才能专注于物的轮廓、质地,以及光影形塑
本案设计师简介
叶恒果
资深设计师
从业年限:8 年|作品案例:8套
擅长风格:极简、现代简约、北欧、法式、新中式
预约TA
精品案例推荐
轻法式雅居|温润线条勾勒,藏尽居家温柔诗意
详细
宝岗大厦-118㎡现代简约暖居设计
详细
木色暖居・向光而居|现代简约住宅设计
详细
80㎡现代原木风,把通透感和松弛感搬进家
详细
东海嘉园-98㎡异型户型改造设计,法式优雅,浪漫满屋
详细
乐动体育-乐动体育官方网站|LEDONGSPORTS
在线咨询
装修报价
预约设计
最新活动
官方微信
返回顶部
装修计算器
已经有 16508 业主获取了装修预算
您的称呼:
手机号码:
所在城市:
房屋面积:
*
为了您的利益和我们的口碑,我们将严格保密您的个人隐私
装修预算报价为:
184657
元
材料费:
18897
元
人工费:
24514
元
设计费:
4988
元
管理费:
8504
元
* 报价价格仅供参考,实际装修价格以人工报价为准
关于我们
九艺简介
发展历程
企业荣誉
客户见证
乐动体育-乐动体育官方网站|LEDONGSPORTS
乐动体育-乐动体育官方网站|LEDONGSPORTS
个性设计
全包整装
别墅大宅
装修贷款
设计团队
装修案例
家装案例
工装案例
全景案例
视频案例
乐动体育-乐动体育官方网站|LEDONGSPORTS 热线
177-8888-9250
地址:广州市天河区珠江新城花城大
道2号名门大厦首层
预约设计
扫一扫,微信沟通
Copyright@2021-2025 architectephilippegobin.com All Rights Reserved 乐动体育-乐动体育官方网站|LEDONGSPORTS 版权所有
《中华人民共和国电信与信息服务业务经营许可证》
X
我要预约
装修顾问将在预约后24小时内与您联系
* 为了您的利益和我们的口碑,我们将严格保密您的个人隐私
X
定制您的专属设计方案