
业主需求:
①老房梁位和柱位较多,业主比较在意梁和柱的处理方式;
②业主夫妇是喜爱茶文化和DIY水陆缸景观的,需要有一个可以喝茶的地方,同时DIY水陆缸景观可以起到装饰空间的作用;
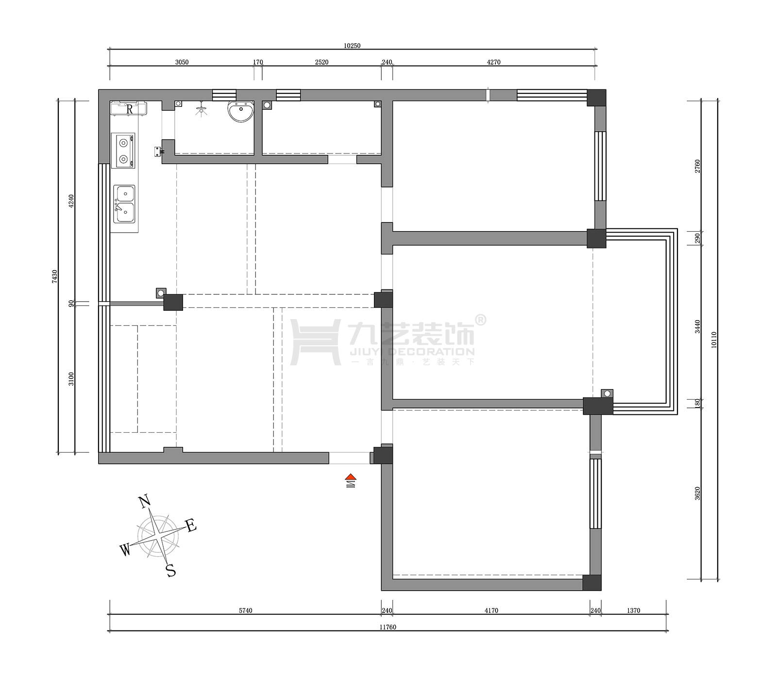
③隔断比较多,需要合理改造空间。

户型优化:
①客餐厅改为一体化的布局,交互式的功能区域可以更好地拉近一家人之间的距离;
②阳台打通,改开放式茶室,打造主人专属的休闲空间;
③客厅电视背景墙做有藏有露的储物式设计,充足的收纳保证空间的整洁;

区分出静区与动区,可以引领屋主从活动区步入睡眠区,享受一天中最放松的时候。


客厅的整体空间色彩系统,围绕着“白色+原木”的经典搭配,大面积的空白赋予空间自由和休闲,同时用绿色植物装饰空间清新优雅,梦幻百叶窗的光线感觉让客厅更加柔和。

电视背景墙采用整体存储设计,亮点是我们在右边设置了一个展示柜,并放置了精美的茶具,以满足业主在业余时间品尝茶叶的需求。

本案设计师:康嘉鸿与业主

餐桌侧面做了一组餐边柜,木色质地恰到好处,小家电嵌入其中,可以保持空间干净整洁。

玻璃推拉门将厨房和餐厅分隔开,玻璃门使空间视野连接顺畅,加强家人之间的互动和沟通;

厨房采用经典高效的U型布局,并按「洗-切-炒」的烹饪动线进行布局,空间更实用、高效。

主卧选用偏暖色作为空间的主色调,大面积的原木色奠定了空间基调,打造一个舒适放松的睡眠空间;

儿童房设计的出发点是舒适、实用,设计风格依然延续了现代的日式原木风,配色上采用了原木色+灰白的设计,木纹地板和灰白色柜体和谐统一

阳台完全打通,改成了开放式的茶室。椭圆形实木长桌居中放置,预留出舒适的视野空间;周围空间添加收纳柜,可以用来收纳各种小摆件、茶具等,精致又实用。

家庭照片被用作过道墙上的空间焦点。设计师在空间中合理有趣地组合照片,增加了过道的趣味性。

本案是一套老房翻新改造,设计师结合业主功能需求和设计风格的要求,以现代混搭原木风的设计,将时尚元素与自然韵味完美融合。简约的线条,低调的色彩,将空间营造出宁静、淡雅的氛围。客厅、卧室、厨房和卫生间等空间各具特色,却又和谐统一。