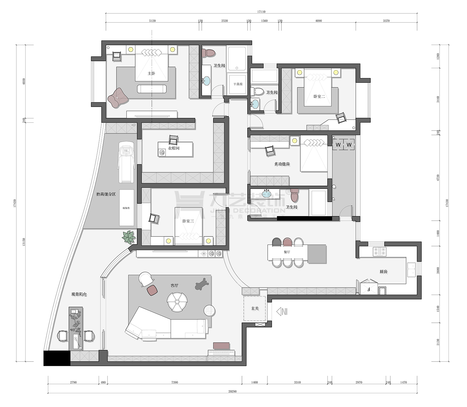
空间的布局简约而随意,满足着最基本的功能需求,通过大面积的统一材质与色块的运用,尽量保持布局中的“空”与极简,呈现侘寂风的随性之美。另外每一处看似极简的空间,也会有一些独特的点缀的材质变换和对称,又让本身沉寂的空间又多了一分灵动之美。最后通过规则的矩形阵列组长了一道道简单而又整体的矩形体块,让整个空间结合建筑设计的表现手法显得更加简结而不失细节。