乐动体育

九艺装饰(三星装饰)

广州
切换城市
自营公司
  • 广州市
  • 肇庆市
  • 惠州市
  • 汕头市
  • 湛江市
  • 赣州市
  • 泉州市
  • 漳州市
  • 南安市
  • 福州市
  • 镇江市
  • 威海市
  • 六盘水
  • 东莞市
  • 海口市
装修报价咨询热线: 177-8888-9250
您的当前位置: 乐动体育 › 装修案例
珠江帝景-160㎡意式轻奢,打造出奢华与时尚
珠江帝景-160㎡意式轻奢,打造出奢华与时尚
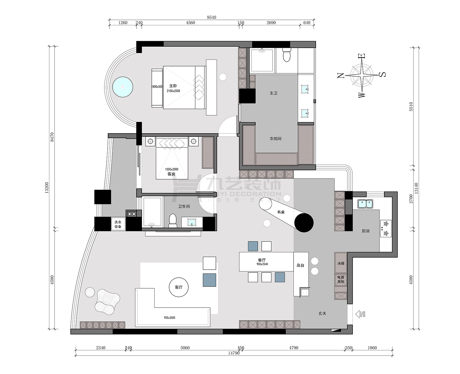
本案采用意式轻奢风格,结合轻奢主义打造意式简约空间,因简约中透着奢华与时尚,具有空间宽敞、内外通透的特质。整体运用了木饰面、亚克力以及岩板等不同材质的碰撞,整体空间精致感十足。空间上最大限度引入自然光,通过线条的简单碰撞,融合内敛木色色块与岩板的和谐统一,打造出高雅奢华的家居风格。
  • 装修公司
    九艺装饰
  • 装修楼盘
    珠江帝景
  • 装修风格
    轻奢
  • 户型结构
    三居室
  • 装修面积
    160平方
  • 设计师
    李伟盛
0
  • 全部
  • 户型图
  • 玄关
  • 客厅
  • 餐厅
  • 厨房
  • 主卧
  • 次卧
  • 儿童房
  • 书房
  • 衣帽间
  • 卫生间
  • 阳台
  • 其他
  • 设计说明
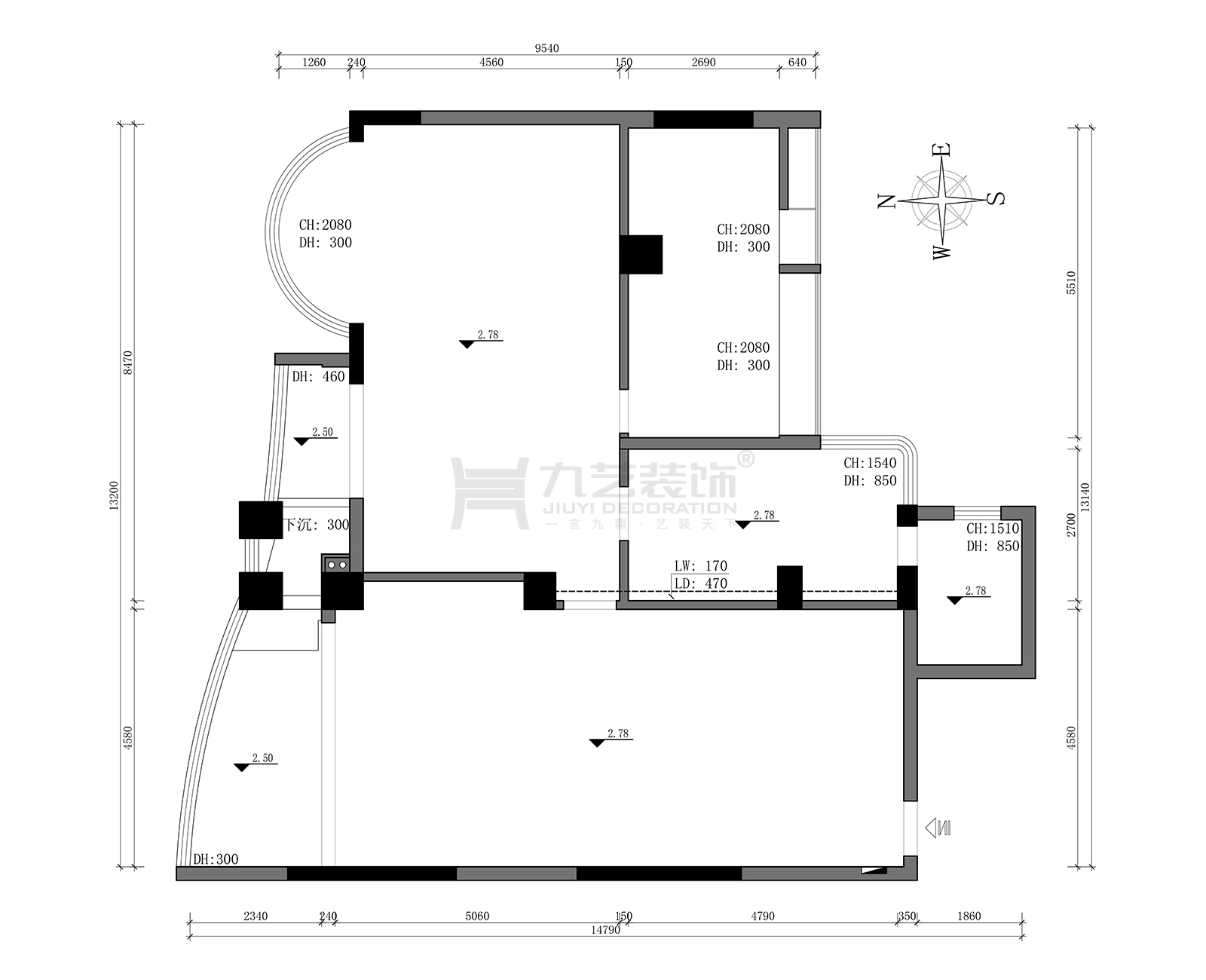
  • 户型图JIUYIDES
    原始户型图

    本案采用意式轻奢风格,结合轻奢主义打造意式简约空间,因简约中透着奢华与时尚,具有空间宽敞、内外通透的特质。

    整体运用了木饰面、亚克力以及岩板等不同材质的碰撞,整体空间精致感十足。空间上最大限度引入自然光,通过线条的简单碰撞,融合内敛木色色块与岩板的和谐统一,打造出高雅奢华的家居风格。

  • 平面户型图
  • 玄关JIUYIDES
    玄关
  • 客厅JIUYIDES
    客厅
  • 客厅
  • 客厅
  • 客厅
  • 客厅
  • 客厅
  • 客厅
  • 客厅
  • 客厅设计师
  • 餐厅JIUYIDES
    餐厅
  • 餐厅
  • 餐厅
  • 餐厅
  • 餐厅
  • 餐厅
  • 厨房JIUYIDES
    厨房
  • 厨房
  • 主卧JIUYIDES
    主卧
  • 主卧
  • 主卧
  • 主卧
  • 主卧
  • 次卧JIUYIDES
    次卧
  • 次卧
  • 次卧
      • 衣帽间JIUYIDES
        衣帽间
      • 衣帽间
      • 卫生间JIUYIDES
        卫生间
      • 阳台JIUYIDES
        阳台
      • 阳台

        本案采用意式轻奢风格,结合轻奢主义打造意式简约空间,因简约中透着奢华与时尚,具有空间宽敞、内外通透的特质。

        整体运用了木饰面、亚克力以及岩板等不同材质的碰撞,整体空间精致感十足。空间上最大限度引入自然光,通过线条的简单碰撞,融合内敛木色色块与岩板的和谐统一,打造出高雅奢华的家居风格。

        本案设计师简介
        李伟盛
        设计一部 设计经理
        从业年限:11 年 | 作品案例:7套
        擅长风格:现代、极简、北欧、轻奢、新中式、欧式
        预约TA
        我家装修需要多少钱?10秒估算一下
        装修估算
        装修计算器已经有 16508 业主获取了装修预算
        • 您的称呼:
        • 手机号码:
        • 所在城市:
        • 房屋面积:
        装修预算报价为:184657
        • 材料费:18897
        • 人工费:24514
        • 设计费:4988 元
        • 管理费:8504 元
        * 报价价格仅供参考,实际装修价格以人工报价为准
        九艺简介
        乐动体育-乐动体育官方网站|LEDONGSPORTS 热线
            177-8888-9250
        地址:广州市天河区珠江新城花城大
        道2号名门大厦首层
        预约设计
        扫一扫,微信沟通
        扫一扫,微信沟通
        Copyright@2021-2025 architectephilippegobin.com All Rights Reserved 乐动体育-乐动体育官方网站|LEDONGSPORTS 版权所有
        《中华人民共和国电信与信息服务业务经营许可证》
        X
        我要预约
        装修顾问将在预约后24小时内与您联系
        • 您的姓名
        • 您的手机号
        • 房屋的面积
        * 为了您的利益和我们的口碑,我们将严格保密您的个人隐私
        X
        设计方案
        定制您的专属设计方案