
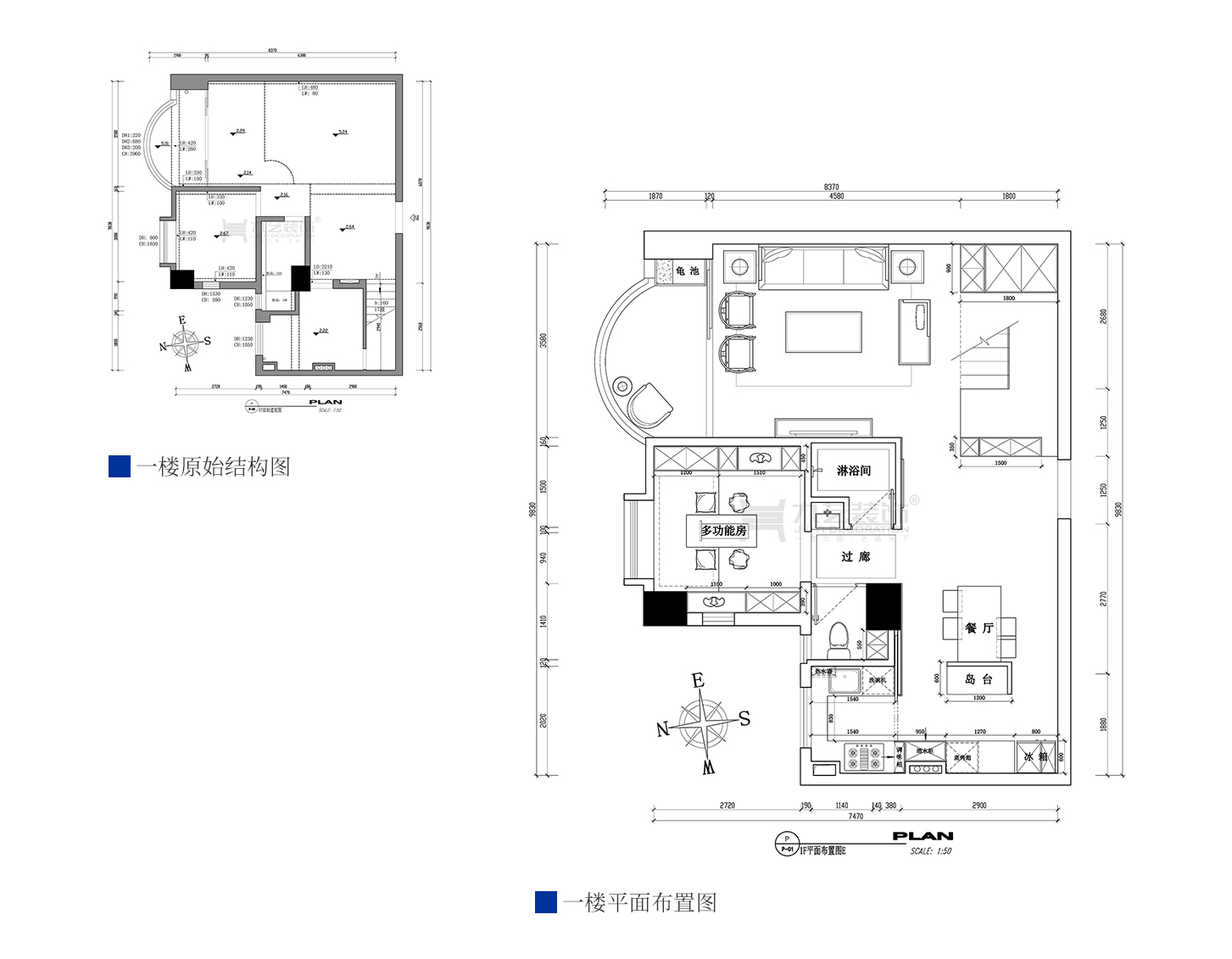
一层为客厅、餐厅、厨房及多功能房一体的公共空间,开放式布局保证各区域之间的联动性,也满足着居住者生活休闲、社交互动、日常聚会等需求。

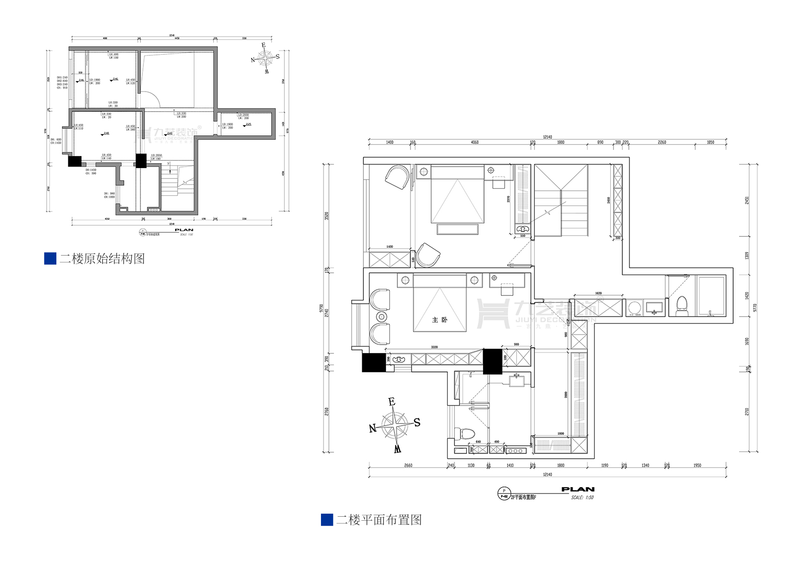
二层作为居住者的私享空间,设计师以沉稳内敛的设计笔触凸显卧室属性,并通过色彩、材质之间有比例的组合变化,释放出睡眠空间的视觉感及功能需求。

悬空的玄关柜,既是收纳又是隔断,错落有致,起隔而不断的视觉效果。且能自然消除湿气聚集,起防潮作用。

公共空间动线重新规划。半开放式的厨房、岛台餐厅、半隔断玄关、客厅释放出开阔空间,整体更加通透和连贯。

客厅流线型吊顶流畅而自然,覆盖住突兀的梁柱,消除横梁带来的压迫感。

设计师巧妙地利用了空间的高度,糅合线性灯与吊隐式冷气装置,构成充满温度格调的舒适画面。

沙发采用蓝色皮革材质,椅子则由黄色皮质材料制成,两者的搭配相得益彰,营造出一种舒适、温馨的氛围。

电视背景墙是大理石纹路肌理,从容大气。设计一排展示柜,随着时间的推移,将填上艺术品或珍品。


楼梯是复式楼的核心。设计师没有固守原建设计,重新布局,将原本封闭昏暗的楼梯区域,与原结构的中空结合,采用玻璃护栏,大限度引入光线。


简约时尚的餐厅设计,以白色和灰色为主色调,营造出清新明亮的氛围。餐桌吧台采用大理石以白色为主色调,搭配了棕色的时尚椅子,营造出一种舒适而高雅的氛围。

在整个空间中,餐厨柜的设计非常实用,提供了充足的储物空间,而酒柜则展示了主人的品酒文化和生活品味。这些家具的设计与整个空间完美地融合在一起,既实用又美观。

中岛台餐厅以及半开放式厨房,动线比较合理,而且通风采光也会比以前好很多。

调换位置后的厨房拥有极佳的采光,使下厨成为一件令人心情舒畅的事情。U型布局遵循洗、切、炒操作顺序,形成简洁而高效的动线。

卧室以温馨而舒适为主,采用了木质地板和乳胶漆奶白色墙壁的搭配,营造出一种自然的氛围。卧室空间足够大,在层高不足的情况下,明亮简单的色彩搭配不至于压抑。

梳妆台上的墙壁上挂着一盏艺术灯,为房间增添了一份艺术气息。此外,还有床头一盏吊灯照亮了整个空间,营造出一种舒适的氛围。

次卧延用了主卧的温馨而舒适的设计

采用隐形门的多功能房,需要寻找一番--推开墙体发现新大陆。

这个多功能房空间设计贴心实用,方便日常使用。洗漱台位于房间的右侧,配备白色圆形水池和方形镜子,提供便捷的洗漱体验。

整个多功能房空间设计充满了实用性和美观性,可以满足不同的需求和使用场景,是一个舒适、宁静的多功能空间。


在空间布局上,设计师巧妙地利用了墙壁和角落,设置了一排排的开放式衣柜和抽屉柜,方便主人存放和取用衣物。

衣帽间空间的设计充满了现代感和时尚感。墙壁和地板采用了木质材料,为整个空间增添了一份自然和温馨的感觉


卫生间设计风格简约而不简单,灰色的大理石瓷砖地面和墙壁,淋浴区玻璃门也是灰色大理石设计,给人一种高端、大气的感觉。

洗漱台的右侧是一面白色镜子,上面装饰着金色的边框,增加了卫生间的华丽感。
本案位于广州珠江新城,花城大道与广州大道交汇处,地理位置得天独厚。业主夫妻两人,小孩在国外,偶尔回来。主人希望改善房子的居住功能,构建一个优雅温馨的理想居所。
一层为客厅、餐厅、厨房及多功能房一体的公共空间,开放式布局保证各区域之间的联动性,也满足着居住者生活休闲、社交互动、日常聚会等需求。
二层作为居住者的私享空间,设计师以沉稳内敛的设计笔触凸显卧室属性,并通过色彩、材质之间有比例的组合变化,释放出睡眠空间的视觉感及功能需求。