乐动体育

九艺装饰(三星装饰)

广州
切换城市
自营公司
  • 广州市
  • 肇庆市
  • 惠州市
  • 汕头市
  • 湛江市
  • 赣州市
  • 泉州市
  • 漳州市
  • 南安市
  • 福州市
  • 镇江市
  • 威海市
  • 六盘水
  • 东莞市
  • 海口市
装修报价咨询热线: 177-8888-9250
您的当前位置: 乐动体育 › 装修案例
珠江湾-200㎡极简复式,高级质感十足
珠江湾-200㎡极简复式,高级质感十足
本案是一套200平方,位于南沙·珠江湾的复式改造案例。该房子存在两个户型痛点:①一楼原始客厅、厨房、洗手间布局与空间过于拥挤,空间体验感大打折扣;②二楼原始户型采光与通风比较差,不能为空间几时补充新鲜空气。针对这两个问题,来看看我们设计师是怎么做调整的,经过设计师的调整之后,这个家又会发生怎样的改变呢?
  • 装修公司
    九艺装饰
  • 装修楼盘
    南沙 · 珠江湾
  • 装修风格
    现代
  • 户型结构
    复式
  • 装修面积
    200平方
  • 设计师
    林万梅
0
  • 全部
  • 户型图
  • 玄关
  • 客厅
  • 餐厅
  • 厨房
  • 主卧
  • 次卧
  • 儿童房
  • 书房
  • 衣帽间
  • 卫生间
  • 阳台
  • 其他
  • 设计说明
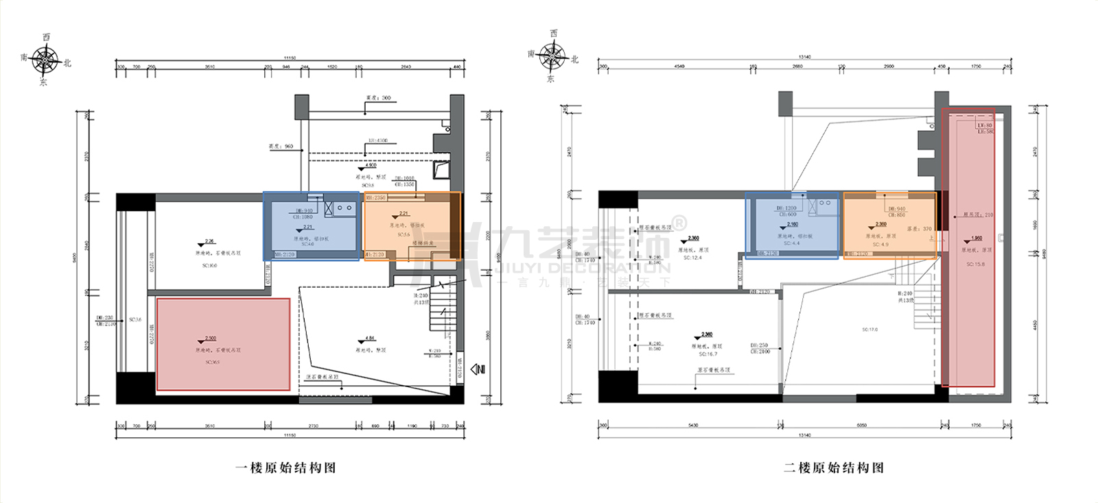
  • 户型图JIUYIDES
    原始户型图

    户型痛点:

    ①一楼原始客厅、厨房、洗手间布局与空间过于拥挤,空间体验感大打折扣;

    ②二楼原始户型采光与通风比较差,不能为空间几时补充新鲜空气。

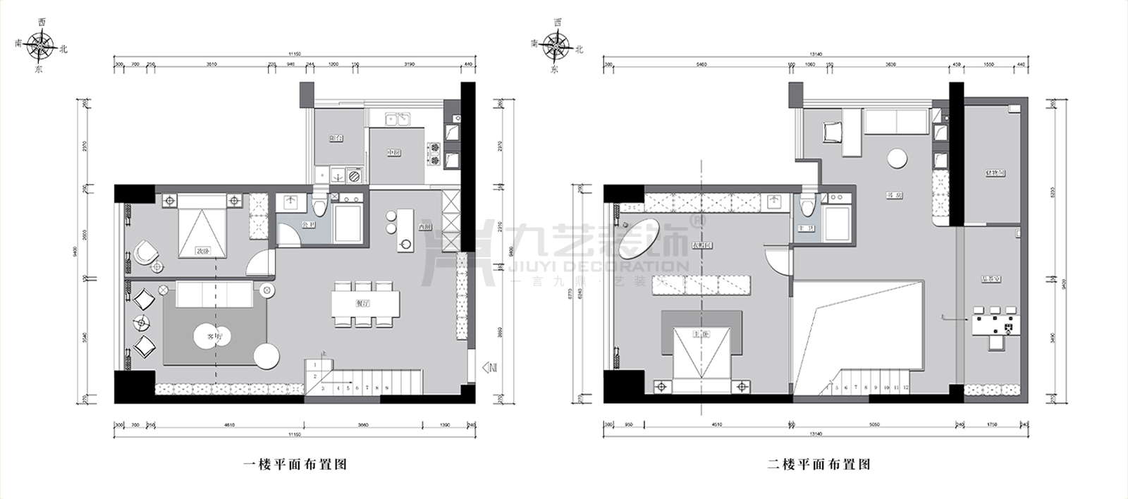
  • 平面户型图

    改造亮点:

    ①一楼把厨房往外扩,中间增加厨房吧台,增大使用空间;

    ②二楼把原有两间房间打通,使主卧增加衣帽间和洗手间;

    ③把书房往外扩,增大办公区空间。

    • 客厅JIUYIDES
      客厅
    • 客厅
    • 客厅

      入户即客餐厅,做了挑高的设计。

      整体上采用现代简约的设计风格,以暖白色和经典黑为主,全屋色彩统一和谐,呈现一个干净利落的的空间氛围。

    • 客厅

      由于原户型客厅空间较小,基于此,设计师将把原有房间和客厅打通,形成一个超大横厅,让整个空间更大气,重新整合成融起居、会友、品茶、等多种生活场景的空间。

    • 客厅

      电视背景墙做悬浮式设计,弱化体量感,显得空间更加轻盈。

    • 客厅

      材质上以岩板和木饰面做拼接,增加空间层次感,软装以绿植作为点缀,以简胜繁,带来高级而优雅的艺术空间感。

    • 客厅

      本案主案设计师:林万梅

    • 餐厅JIUYIDES
      餐厅

      入户第一空间就是餐厅,挑高的餐厅设计将空间打开,给人开阔的视觉感受,入户与楼梯间也没有浪费,餐边柜+储物柜,满足餐厅储物需求。

    • 餐厅

      餐厅处的楼梯采用玻璃+黑钢扶手,让视野延伸,空间线条感更加简明整洁,诠释了家的雅致与温馨。

    • 厨房JIUYIDES
      厨房

      厨房是一个可开放可封闭的设计,以极窄推拉门来灵活转换空间秩序。

    • 厨房
    • 厨房
    • 主卧JIUYIDES
      主卧

      主卧是一个套间,睡眠区+洗漱区合二为一,用半墙做隔断,增加空间的互动性。

    • 主卧

      硬装上采用极简柔美的线条造型,温润的木质元素大量运用,使得空间呈现出一个宁静雅致的美感。一大面落地窗将自然光线引入室内,使得空间通透起来。

    • 主卧
    • 主卧
    • 主卧

      功能上设计还有衣帽间,仅限生活的舒适与便捷

    • 次卧JIUYIDES
      次卧

      次卧空间整体以素色调为主,背景墙采用简洁的漆面+软包。

    • 次卧

      靠墙设计一面嵌入式到顶衣柜+落地窗,整个空间温馨舒适。

      • 书房JIUYIDES
        书房
      • 书房
      • 书房
        • 卫生间JIUYIDES
          洗手间

          卫生间采用白色+原木的沉稳色调,三分离式卫生间设计,保证了空间的整洁与卫生。

          • 其他JIUYIDES
            品茶室

            品茶室

          • 品茶室

            品茶室

          本案是一套200平方,位于南沙·珠江湾的复式改造案例。该房子存在两个户型痛点:①一楼原始客厅、厨房、洗手间布局与空间过于拥挤,空间体验感大打折扣;②二楼原始户型采光与通风比较差,不能为空间几时补充新鲜空气。针对这两个问题,来看看我们设计师是怎么做调整的,经过设计师的调整之后,这个家又会发生怎样的改变呢?

          户型痛点:

          ①一楼原始客厅、厨房、洗手间布局与空间过于拥挤,空间体验感大打折扣;

          ②二楼原始户型采光与通风比较差,不能为空间几时补充新鲜空气。

          改造亮点:

          ①一楼把厨房往外扩,中间增加厨房吧台,增大使用空间;

          ②二楼把原有两间房间打通,使主卧增加衣帽间和洗手间;

          ③把书房往外扩,增大办公区空间。

          本案设计师简介
          林万梅
          资深设计师
          从业年限:9 年 | 作品案例:7套
          擅长风格:现代、新中式、简约、日式
          预约TA
          我家装修需要多少钱?10秒估算一下
          装修估算
          装修计算器已经有 16508 业主获取了装修预算
          • 您的称呼:
          • 手机号码:
          • 所在城市:
          • 房屋面积:
          装修预算报价为:184657
          • 材料费:18897
          • 人工费:24514
          • 设计费:4988 元
          • 管理费:8504 元
          * 报价价格仅供参考,实际装修价格以人工报价为准
          九艺简介
          乐动体育-乐动体育官方网站|LEDONGSPORTS 热线
              177-8888-9250
          地址:广州市天河区珠江新城花城大
          道2号名门大厦首层
          预约设计
          扫一扫,微信沟通
          扫一扫,微信沟通
          Copyright@2021-2025 architectephilippegobin.com All Rights Reserved 乐动体育-乐动体育官方网站|LEDONGSPORTS 版权所有
          《中华人民共和国电信与信息服务业务经营许可证》
          X
          我要预约
          装修顾问将在预约后24小时内与您联系
          • 您的姓名
          • 您的手机号
          • 房屋的面积
          * 为了您的利益和我们的口碑,我们将严格保密您的个人隐私
          X
          设计方案
          定制您的专属设计方案