
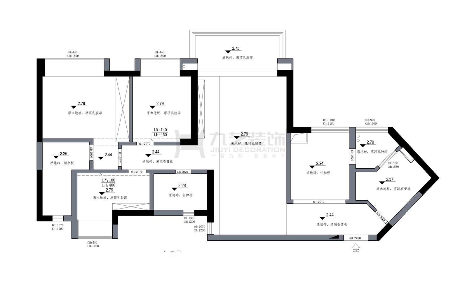
1、改善玄关过道昏暗狭窄的问题,将厨房与客餐厅融为一体,增加空间通透性,同时改善采光。
2、通过将主卫做成二分离的设计,增大主卧空间,提高生活便利性。
3、考虑家庭成员的钢琴需求,预留合适的摆放位置。
4、将洗漱和如厕区域分开,提高生活便利性和居住舒适度。
























本案设计为业主打造一个充满高级感的文化和视觉空间。我们从具体的空间形态出发,深入挖掘建筑空间、精神层面与物质层面、现状与文化之间的内在联系,并将其转化为设计概念、形式和手法,以满足业主精神层面的需求。设计风格并非高冷克制,而是温馨动人。通过鲜明的色彩对比和极致的材质搭配,满足业主对理想家的向往和期待。
1、改善玄关过道昏暗狭窄的问题,将厨房与客餐厅融为一体,增加空间通透性,同时改善采光。
2、通过将主卫做成二分离的设计,增大主卧空间,提高生活便利性。
3、考虑家庭成员的钢琴需求,预留合适的摆放位置。
4、将洗漱和如厕区域分开,提高生活便利性和居住舒适度。