乐动体育

九艺装饰(三星装饰)

广州
切换城市
自营公司
  • 广州市
  • 肇庆市
  • 惠州市
  • 汕头市
  • 湛江市
  • 赣州市
  • 泉州市
  • 漳州市
  • 南安市
  • 福州市
  • 镇江市
  • 威海市
  • 六盘水
  • 东莞市
  • 海口市
装修报价咨询热线: 177-8888-9250
您的当前位置: 乐动体育 › 装修案例
天河大厦-90㎡现代极简空间的极致追求
天河大厦-90㎡现代极简空间的极致追求
现代极简风,其精髓在于对功能与空间组织的极致追求,以及对结构构成美学的深刻理解与展现。这种风格强调线条的干净利落与形态的纯粹,摒弃一切不必要的装饰,让每一件家具、每一处设计都回归本质,展现其最原始的功能美与结构美。
  • 装修公司
    九艺装饰
  • 装修楼盘
    天河大厦
  • 装修风格
    极简
  • 户型结构
    四居室及以上
  • 装修面积
    90平方
  • 设计师
    熊凡荣
0
  • 全部
  • 户型图
  • 玄关
  • 客厅
  • 餐厅
  • 厨房
  • 主卧
  • 次卧
  • 儿童房
  • 书房
  • 衣帽间
  • 卫生间
  • 阳台
  • 其他
  • 设计说明
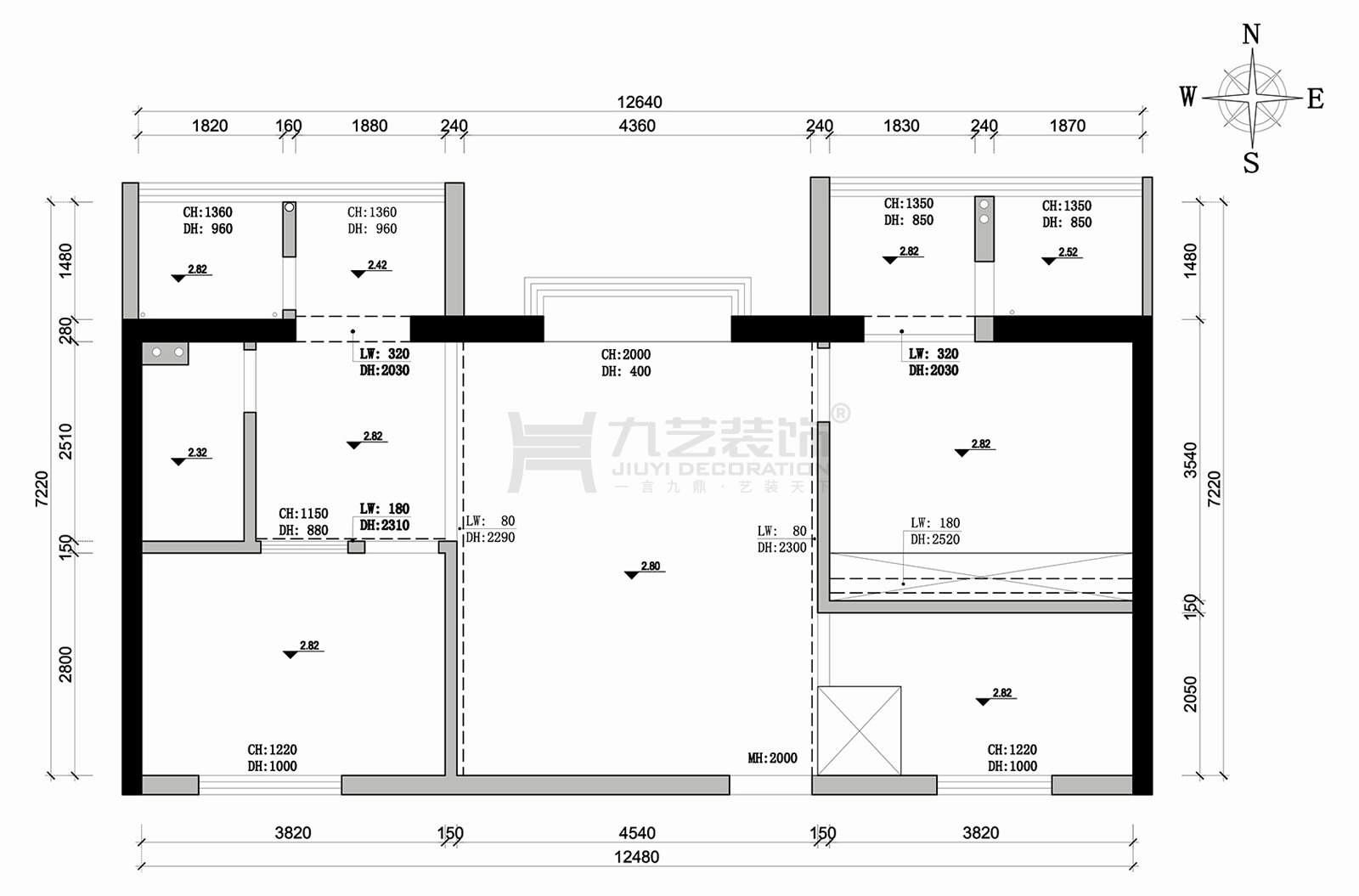
  • 户型图JIUYIDES
    原始户型图
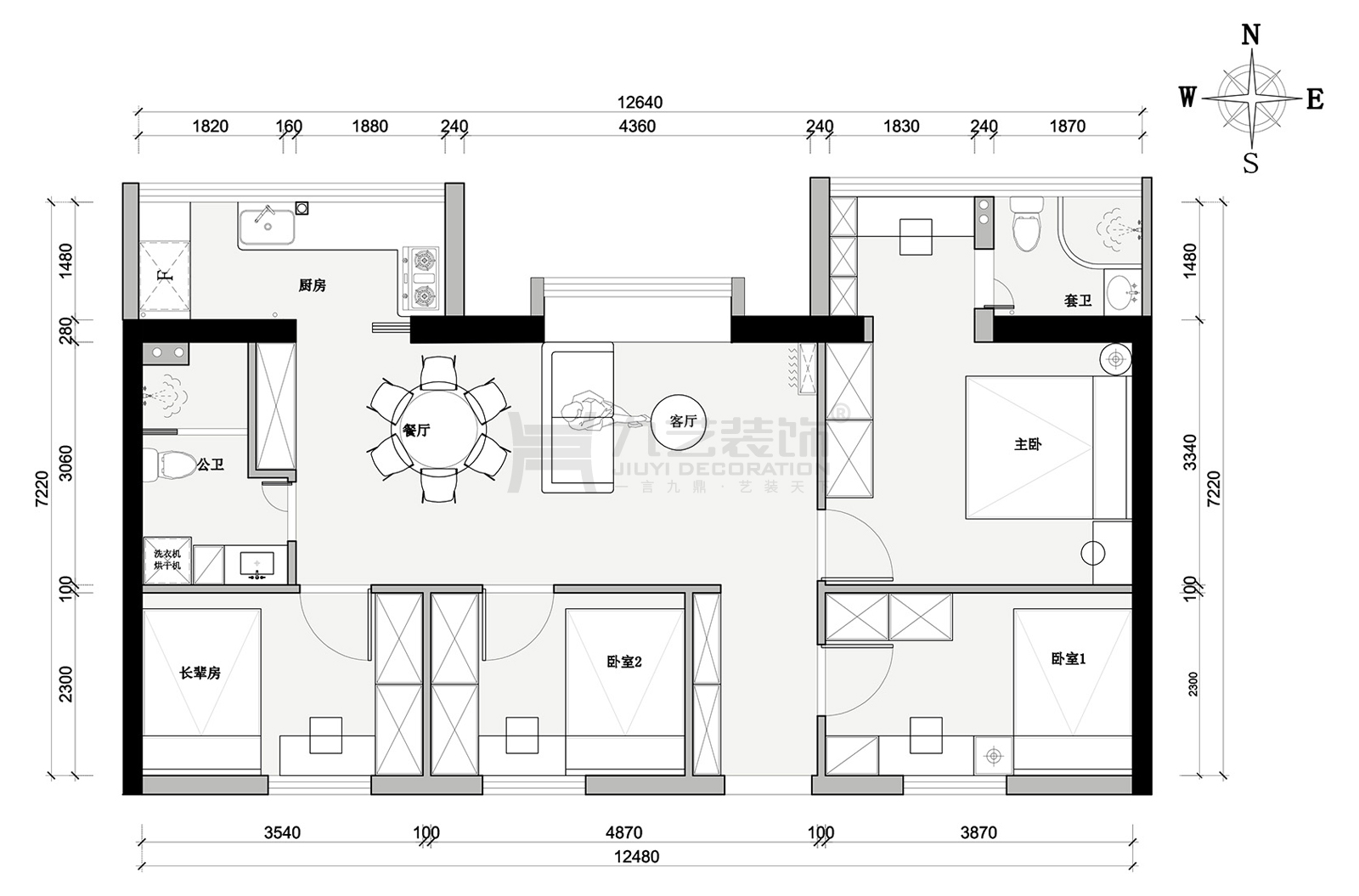
  • 平面户型图
  • 玄关JIUYIDES
    玄关
  • 客厅JIUYIDES
    客餐厅
    • 厨房JIUYIDES
      厨房
    • 主卧JIUYIDES
      主卧
    • 主卧
      • 儿童房JIUYIDES
        儿童房

                现代极简风,其精髓在于对功能与空间组织的极致追求,以及对结构构成美学的深刻理解与展现。这种风格强调线条的干净利落与形态的纯粹,摒弃一切不必要的装饰,让每一件家具、每一处设计都回归本质,展现其最原始的功能美与结构美。

                本案设计师简介
                熊凡荣
                高级设计师
                从业年限:17 年 | 作品案例:9套
                擅长风格:新中式、欧式、美式、现代轻奢
                预约TA
                我家装修需要多少钱?10秒估算一下
                装修估算
                装修计算器已经有 16508 业主获取了装修预算
                • 您的称呼:
                • 手机号码:
                • 所在城市:
                • 房屋面积:
                装修预算报价为:184657
                • 材料费:18897
                • 人工费:24514
                • 设计费:4988 元
                • 管理费:8504 元
                * 报价价格仅供参考,实际装修价格以人工报价为准
                九艺简介
                乐动体育-乐动体育官方网站|LEDONGSPORTS 热线
                    177-8888-9250
                地址:广州市天河区珠江新城花城大
                道2号名门大厦首层
                预约设计
                扫一扫,微信沟通
                扫一扫,微信沟通
                Copyright@2021-2025 architectephilippegobin.com All Rights Reserved 乐动体育-乐动体育官方网站|LEDONGSPORTS 版权所有
                《中华人民共和国电信与信息服务业务经营许可证》
                X
                我要预约
                装修顾问将在预约后24小时内与您联系
                • 您的姓名
                • 您的手机号
                • 房屋的面积
                * 为了您的利益和我们的口碑,我们将严格保密您的个人隐私
                X
                设计方案
                定制您的专属设计方案