乐动体育

九艺装饰(三星装饰)

广州
切换城市
自营公司
  • 广州市
  • 肇庆市
  • 惠州市
  • 汕头市
  • 湛江市
  • 赣州市
  • 泉州市
  • 漳州市
  • 南安市
  • 福州市
  • 镇江市
  • 威海市
  • 六盘水
  • 东莞市
  • 海口市
装修报价咨询热线: 177-8888-9250
您的当前位置: 乐动体育 › 装修案例
天力居-90㎡现代简约造型简洁
天力居-90㎡现代简约造型简洁
本案例90平方,属于旧房改造。现代简约风,本风格的家居重视功能和空间组织,注意发挥结构构成本身的形式美,造型简洁,反对多余装饰,崇尚合理的构成工艺,尊重材料的性能,讲究材料自身的质地和色彩的配置效果,发展了非传统的以功能布局为依据的不对称的构图手法。主张在有限的空间发挥最大的使用效能。家具选择上强调让形式服从功能,一切从实用角度出发,废弃多余的附加装饰,点到为止。简约,不仅仅是一种生活方式,更是一种生活哲学。
  • 装修公司
    九艺装饰
  • 装修楼盘
    天力居
  • 装修风格
    现代
  • 户型结构
    三居室
  • 装修面积
    90平方
  • 设计师
    熊凡荣
0
  • 全部
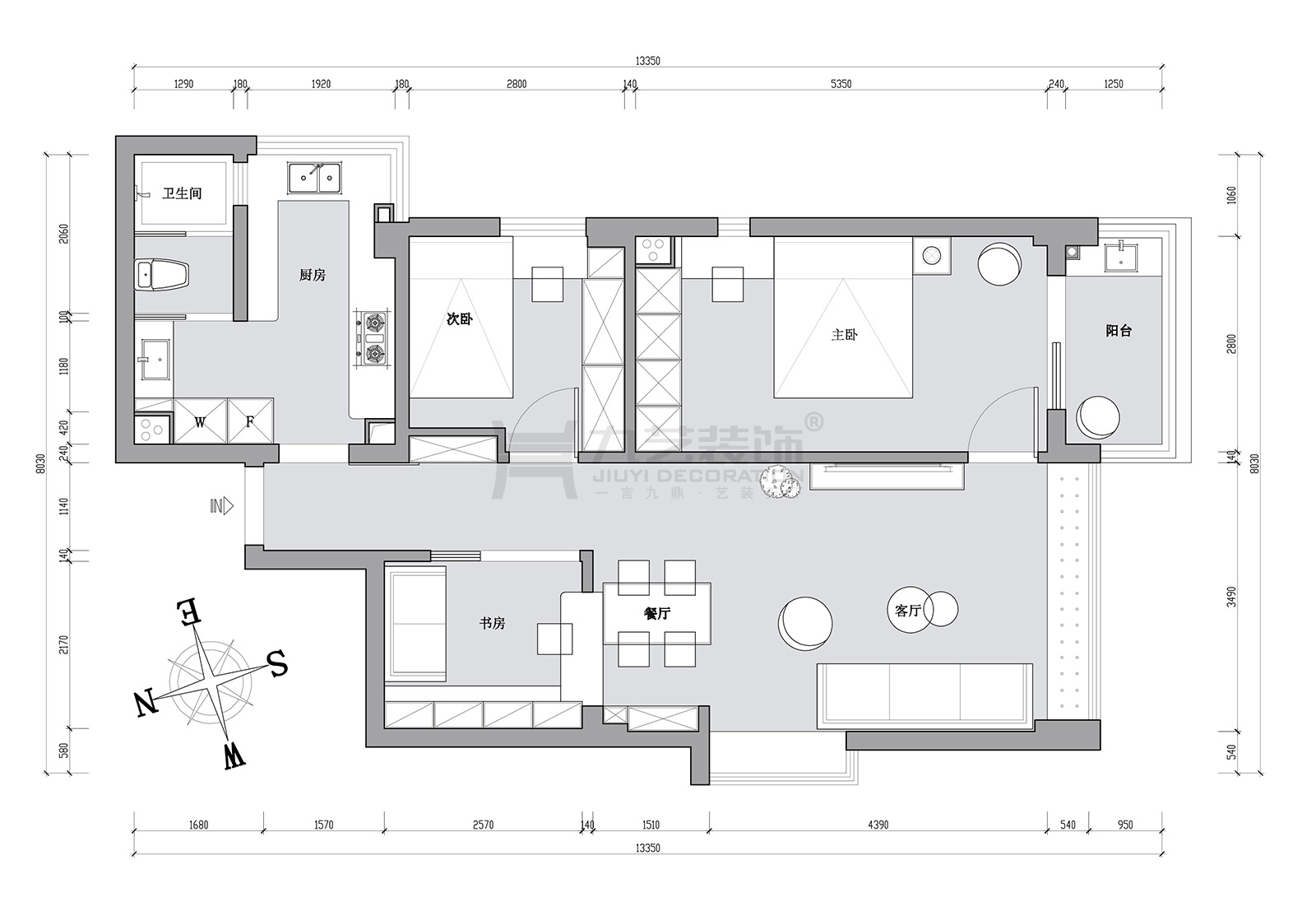
  • 户型图
  • 玄关
  • 客厅
  • 餐厅
  • 厨房
  • 主卧
  • 次卧
  • 儿童房
  • 书房
  • 衣帽间
  • 卫生间
  • 阳台
  • 其他
  • 设计说明
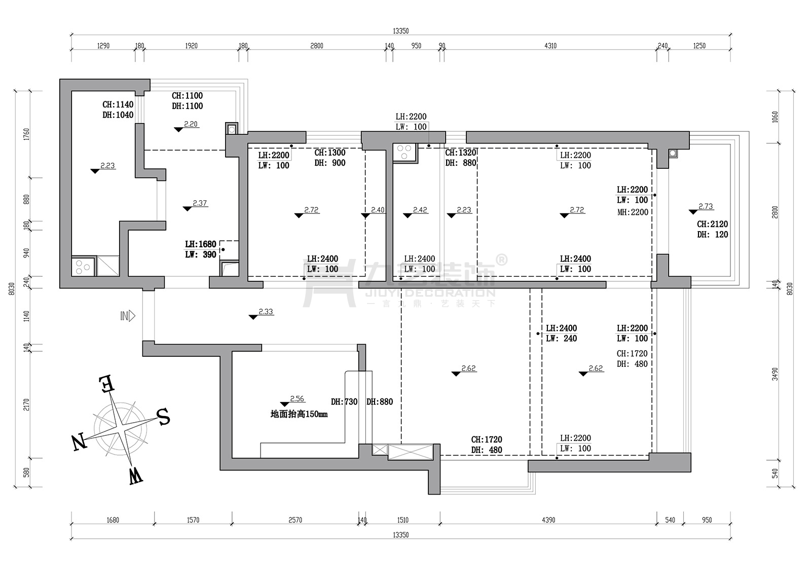
  • 户型图JIUYIDES
    原始户型图
  • 平面户型图
    • 客厅JIUYIDES
      客厅
    • 客厅
    • 客厅
    • 餐厅JIUYIDES
      餐厅
    • 餐厅
    • 餐厅
      • 主卧JIUYIDES
        主卧
          • 书房JIUYIDES
            书房

                  本案例90平方,属于旧房改造。现代简约风,本风格的家居重视功能和空间组织,注意发挥结构构成本身的形式美,造型简洁,反对多余装饰,崇尚合理的构成工艺,尊重材料的性能,讲究材料自身的质地和色彩的配置效果,发展了非传统的以功能布局为依据的不对称的构图手法。主张在有限的空间发挥最大的使用效能。家具选择上强调让形式服从功能,一切从实用角度出发,废弃多余的附加装饰,点到为止。简约,不仅仅是一种生活方式,更是一种生活哲学。

                  本案设计师简介
                  熊凡荣
                  高级设计师
                  从业年限:17 年 | 作品案例:9套
                  擅长风格:新中式、欧式、美式、现代轻奢
                  预约TA
                  我家装修需要多少钱?10秒估算一下
                  装修估算
                  装修计算器已经有 16508 业主获取了装修预算
                  • 您的称呼:
                  • 手机号码:
                  • 所在城市:
                  • 房屋面积:
                  装修预算报价为:184657
                  • 材料费:18897
                  • 人工费:24514
                  • 设计费:4988 元
                  • 管理费:8504 元
                  * 报价价格仅供参考,实际装修价格以人工报价为准
                  九艺简介
                  乐动体育-乐动体育官方网站|LEDONGSPORTS 热线
                      177-8888-9250
                  地址:广州市天河区珠江新城花城大
                  道2号名门大厦首层
                  预约设计
                  扫一扫,微信沟通
                  扫一扫,微信沟通
                  Copyright@2021-2025 architectephilippegobin.com All Rights Reserved 乐动体育-乐动体育官方网站|LEDONGSPORTS 版权所有
                  《中华人民共和国电信与信息服务业务经营许可证》
                  X
                  我要预约
                  装修顾问将在预约后24小时内与您联系
                  • 您的姓名
                  • 您的手机号
                  • 房屋的面积
                  * 为了您的利益和我们的口碑,我们将严格保密您的个人隐私
                  X
                  设计方案
                  定制您的专属设计方案