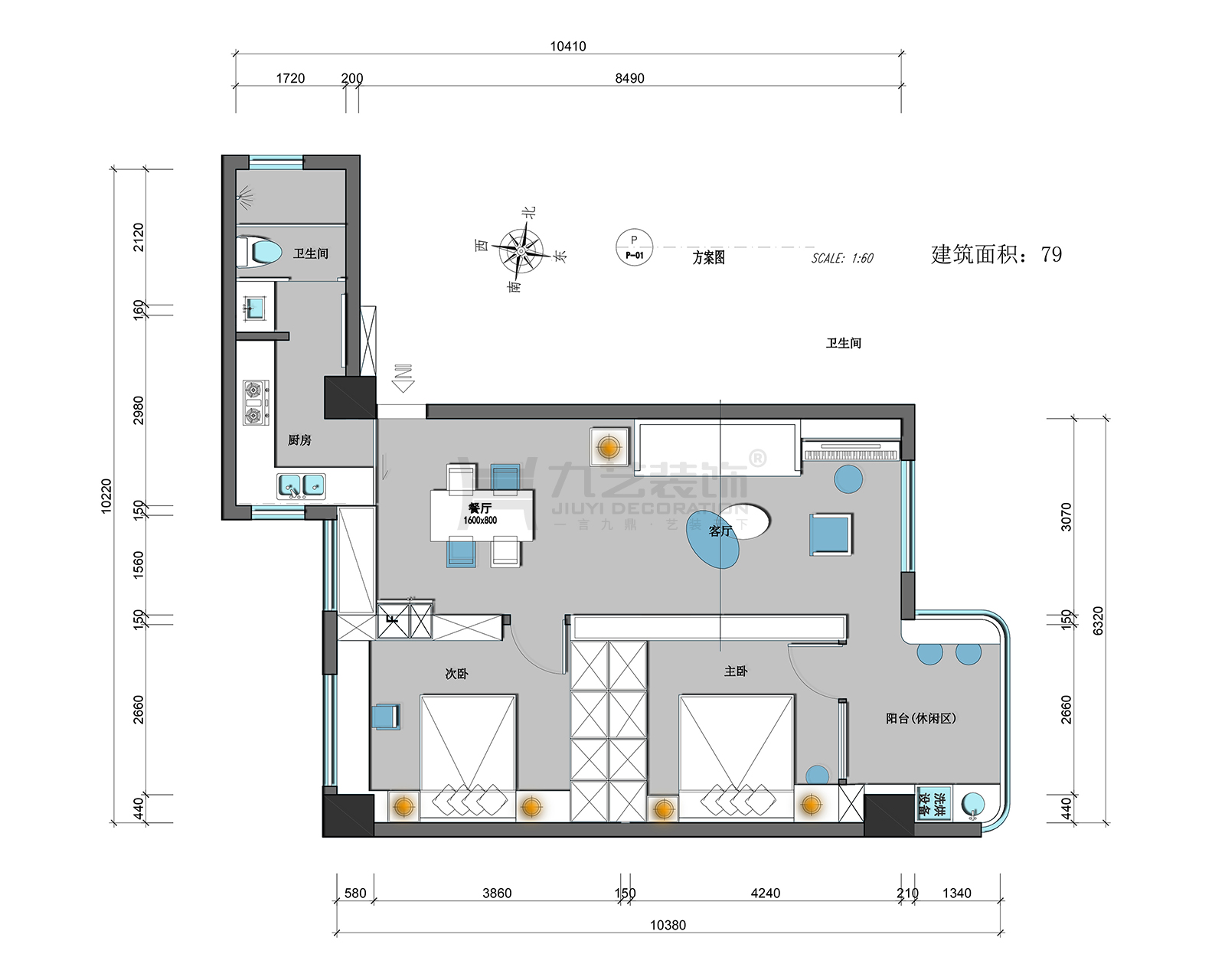
三口之家,一对年轻夫妻,由于是旧房改造,房子卫生间和厨房限制很大,同时业主希望客厅可以更宽敞,收纳空间更多,而且想要一个向阳休闲的区域(阳台),业主非常宠爱小儿子,像是他们的全部,想给与他最好的陪伴与时光。