乐动体育

九艺装饰(三星装饰)

广州
切换城市
自营公司
  • 广州市
  • 肇庆市
  • 惠州市
  • 汕头市
  • 湛江市
  • 赣州市
  • 泉州市
  • 漳州市
  • 南安市
  • 福州市
  • 镇江市
  • 威海市
  • 六盘水
  • 东莞市
  • 海口市
装修报价咨询热线: 177-8888-9250
您的当前位置: 乐动体育 › 装修案例
江山翠苑-160㎡现代简约生活空间设计
江山翠苑-160㎡现代简约生活空间设计
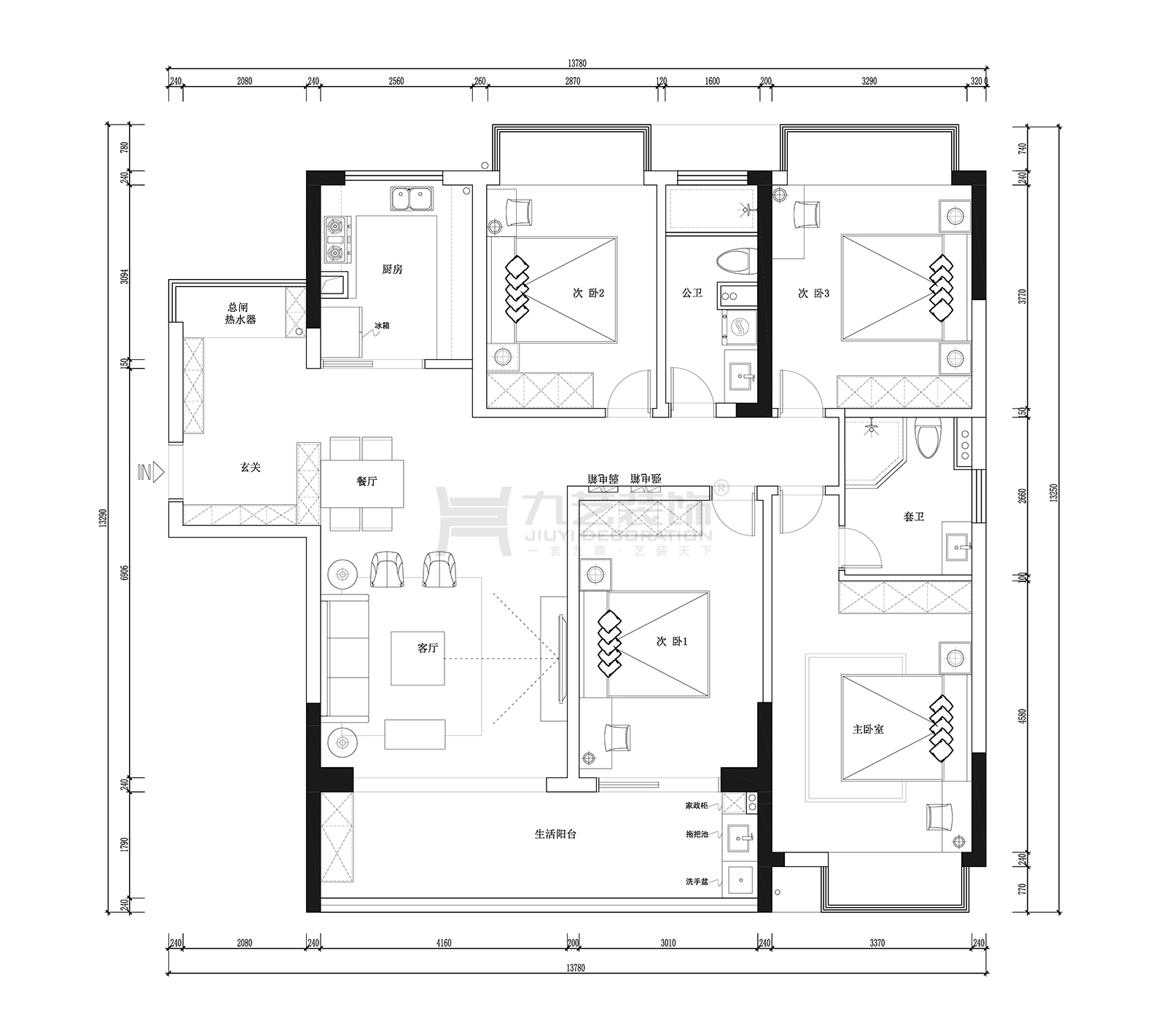
玄关设计提升了实用性和美观性,为家居环境提供过渡。客厅和餐厅的开放式布局增强了空间感,适合聚会。主卧室宽敞舒适,家具布局合理。收纳柜提供了额外存储空间,便于整理。厨房布局实用,便于烹饪。卫生间布局便利,确保隐私。
  • 装修公司
    九艺装饰
  • 装修楼盘
    江山翠苑
  • 装修风格
    现代
  • 户型结构
    四居室及以上
  • 装修面积
    160平方
  • 设计师
    广州设计团队
0
  • 全部
  • 户型图
  • 玄关
  • 客厅
  • 餐厅
  • 厨房
  • 主卧
  • 次卧
  • 儿童房
  • 书房
  • 衣帽间
  • 卫生间
  • 阳台
  • 其他
  • 设计说明
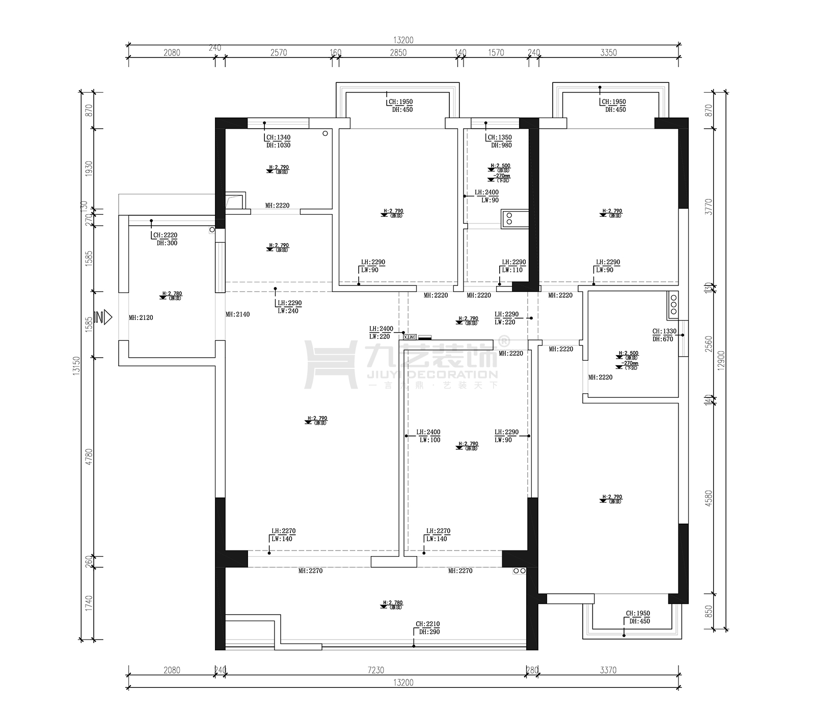
  • 户型图JIUYIDES
    原始户型图
  • 平面户型图
  • 玄关JIUYIDES
    玄关
  • 客厅JIUYIDES
    客厅
  • 客厅
  • 客厅
      • 主卧JIUYIDES
        主卧

                    玄关设计提升了实用性和美观性,为家居环境提供过渡。客厅和餐厅的开放式布局增强了空间感,适合聚会。主卧室宽敞舒适,家具布局合理。收纳柜提供了额外存储空间,便于整理。厨房布局实用,便于烹饪。卫生间布局便利,确保隐私。

                    本案设计师简介
                    广州设计团队
                    私宅家装室内装修设计
                    设计案例:26套
                    擅长风格:现代简约、轻奢、新中式、北欧、美式、奶油风、中式、欧式、日式…
                    预约TA
                    我家装修需要多少钱?10秒估算一下
                    装修估算
                    装修计算器已经有 16508 业主获取了装修预算
                    • 您的称呼:
                    • 手机号码:
                    • 所在城市:
                    • 房屋面积:
                    装修预算报价为:184657
                    • 材料费:18897
                    • 人工费:24514
                    • 设计费:4988 元
                    • 管理费:8504 元
                    * 报价价格仅供参考,实际装修价格以人工报价为准
                    九艺简介
                    乐动体育-乐动体育官方网站|LEDONGSPORTS 热线
                        177-8888-9250
                    地址:广州市天河区珠江新城花城大
                    道2号名门大厦首层
                    预约设计
                    扫一扫,微信沟通
                    扫一扫,微信沟通
                    Copyright@2021-2025 architectephilippegobin.com All Rights Reserved 乐动体育-乐动体育官方网站|LEDONGSPORTS 版权所有
                    《中华人民共和国电信与信息服务业务经营许可证》
                    X
                    我要预约
                    装修顾问将在预约后24小时内与您联系
                    • 您的姓名
                    • 您的手机号
                    • 房屋的面积
                    * 为了您的利益和我们的口碑,我们将严格保密您的个人隐私
                    X
                    设计方案
                    定制您的专属设计方案