富二层平面设计方案
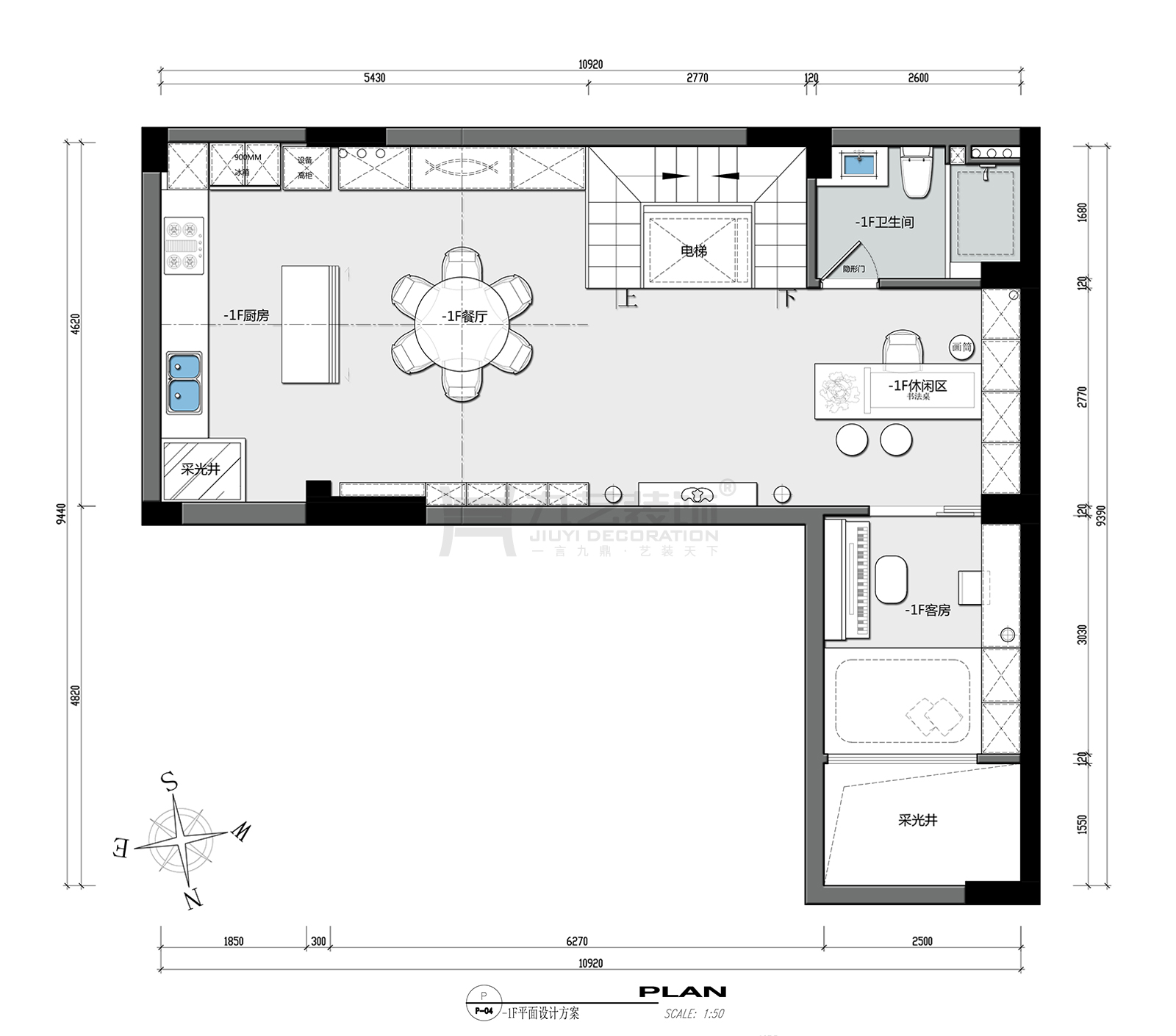
富一层平面设计方案
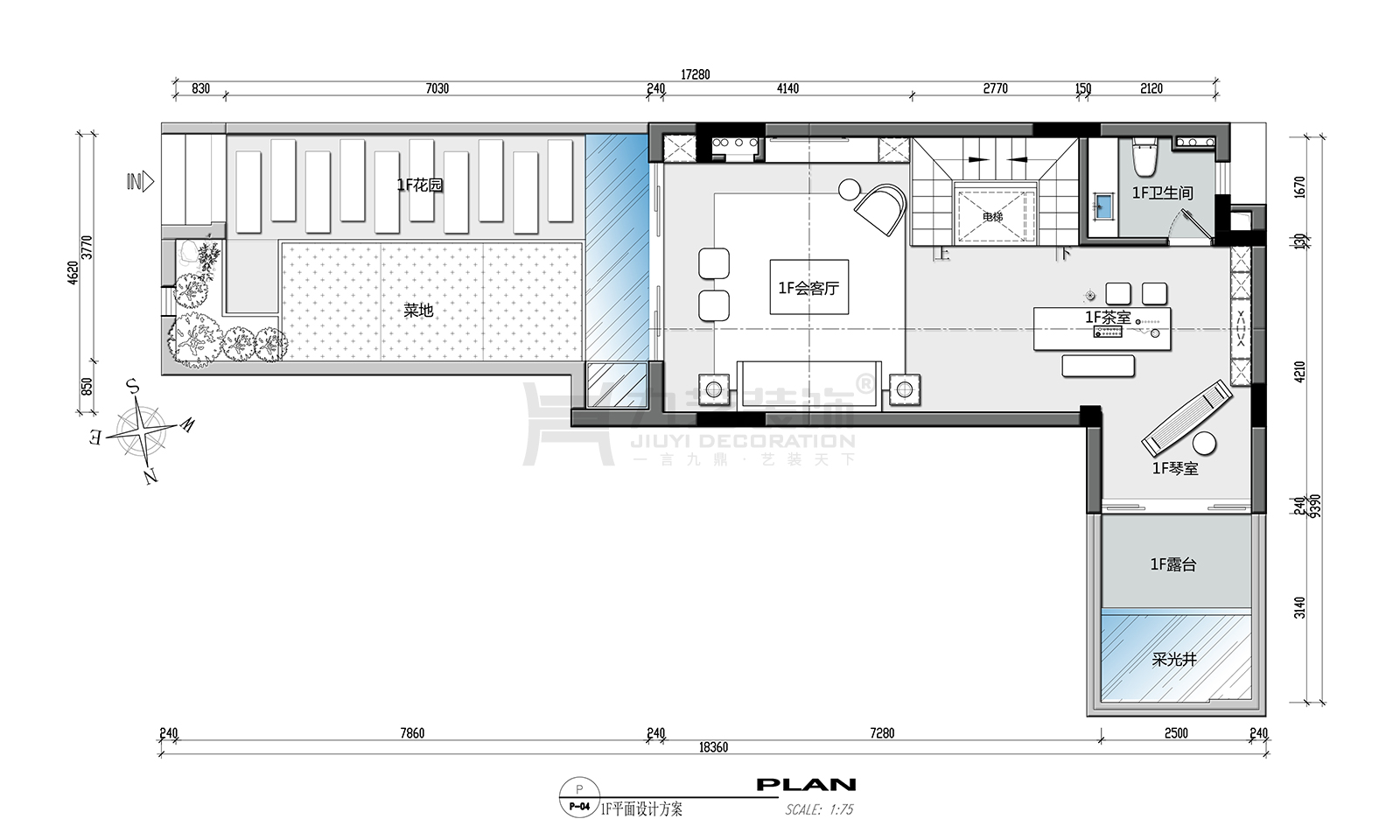
一层平面设计方案
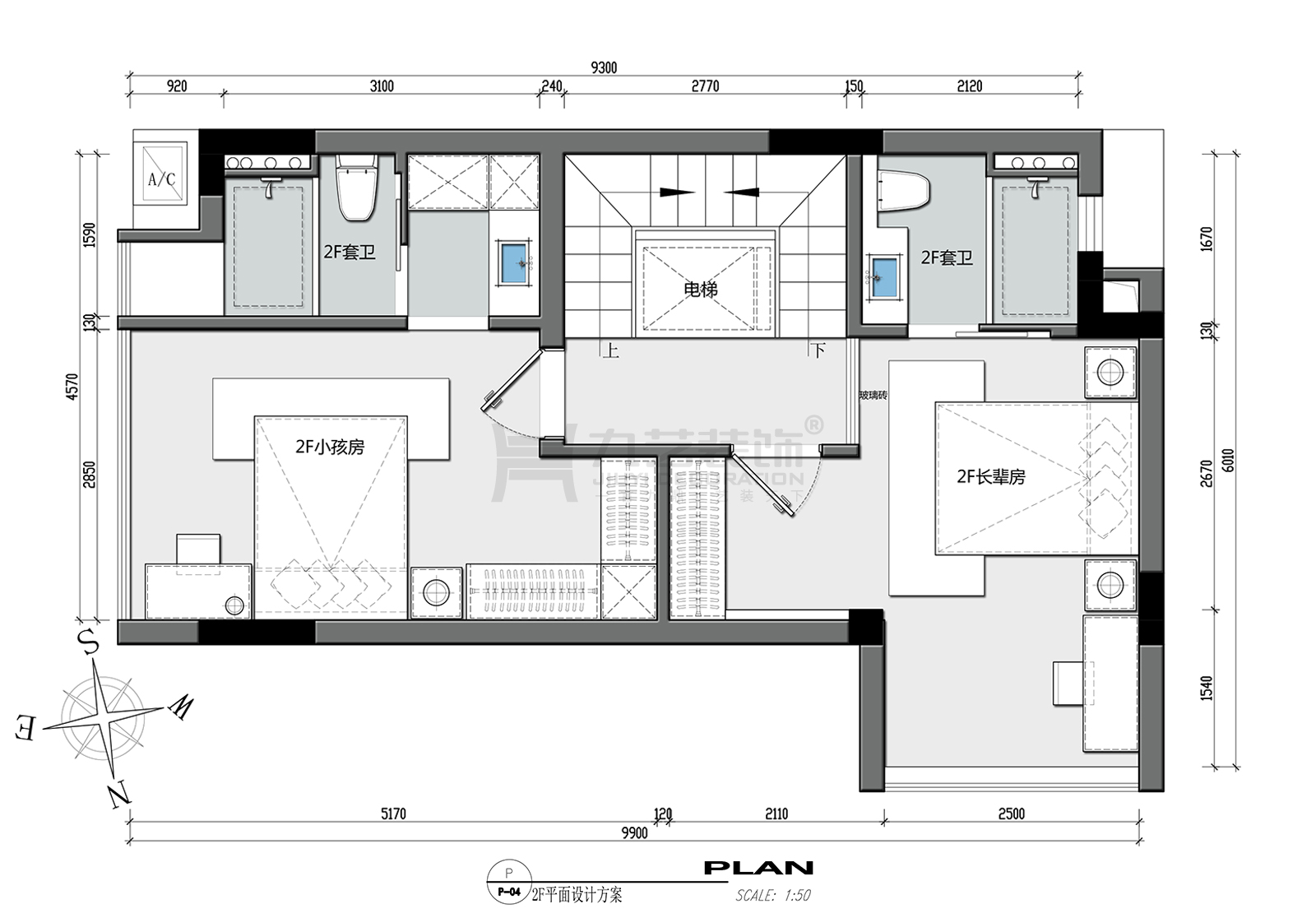
二层平面设计方案
三层平面设计方案
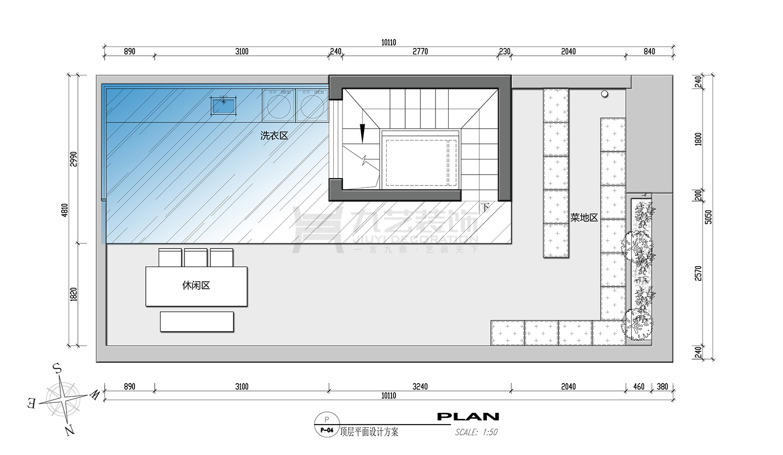
顶层平面设计方案
富一餐厅
富二玄关厅
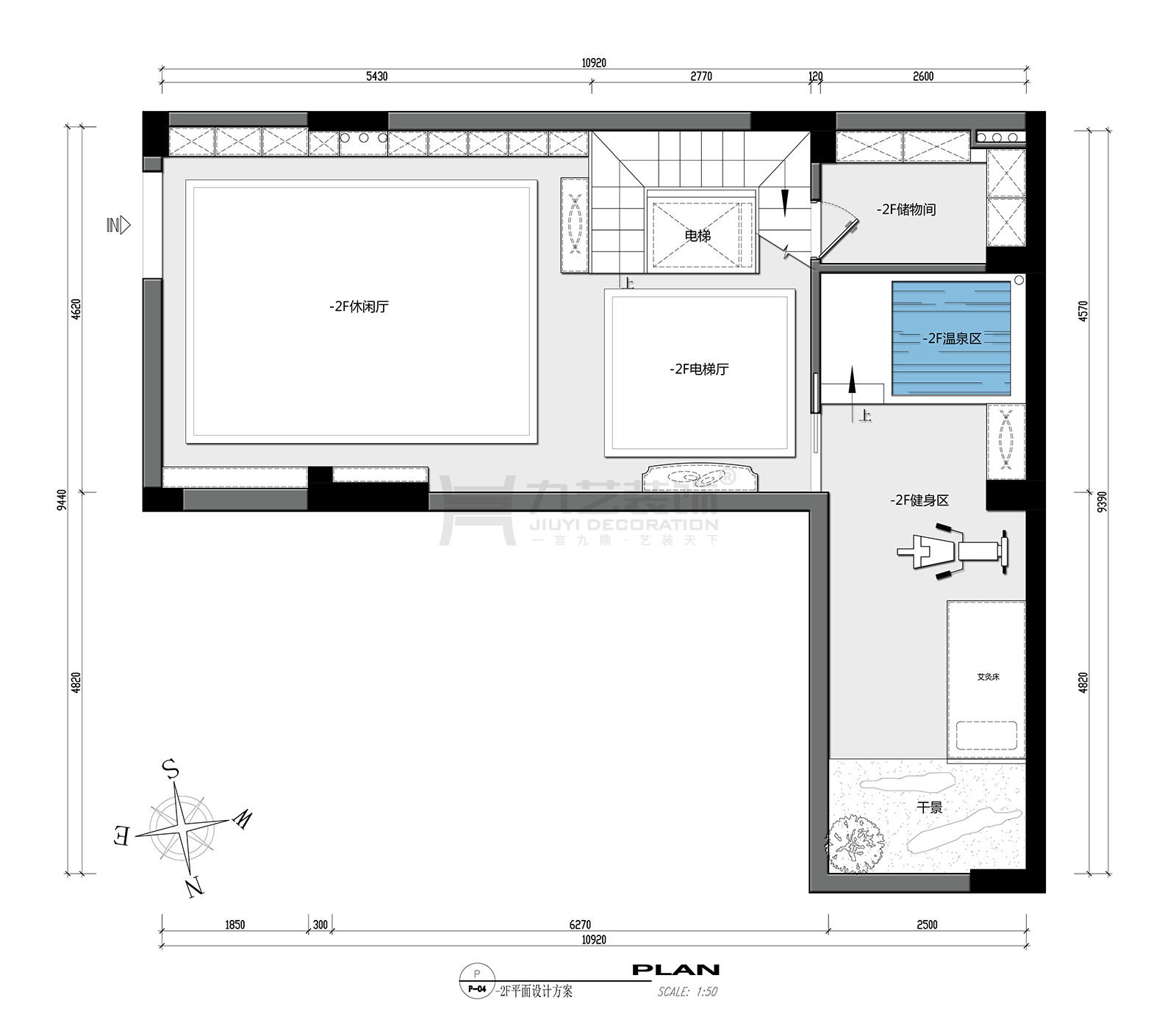
富二健身区
顶层花园
家作为灵魂的栖息之所,表达的是一种立场,也是一种态度。在业主原有的诉求之上,增添更多的色彩、线条、功能、布局等。我们更希望给业主打造一个安静淡然、清新素雅的居住空间。远离喧嚣,感悟日月星辰,细品春夏秋冬,岁月静好君长伴,韶华倾尽两相依。