乐动体育

九艺装饰(三星装饰)

广州
切换城市
自营公司
  • 广州市
  • 肇庆市
  • 惠州市
  • 汕头市
  • 湛江市
  • 赣州市
  • 泉州市
  • 漳州市
  • 南安市
  • 福州市
  • 镇江市
  • 威海市
  • 六盘水
  • 东莞市
  • 海口市
装修报价咨询热线: 177-8888-9250
您的当前位置: 乐动体育 › 装修案例
嘉仕花园-120㎡现代风格,空间重塑与功能优化的艺术
嘉仕花园-120㎡现代风格,空间重塑与功能优化的艺术
整个空间以简洁、明亮、实用为主要特点,通过巧妙的空间布局、色彩搭配以及灯光运用,打造出一个舒适宜人的居住环境。设计师在保留原有建筑结构的基础上,对各功能区域进行了重新规划与优化,使其既满足现代生活的功能需求,又兼具美观与艺术性,让旧房焕发出新的生机与活力。
  • 装修公司
    九艺装饰
  • 装修楼盘
    嘉仕花园
  • 装修风格
    现代
  • 户型结构
    三居室
  • 装修面积
    120平方
  • 设计师
    柏晓辉
0
  • 全部
  • 户型图
  • 玄关
  • 客厅
  • 餐厅
  • 厨房
  • 主卧
  • 次卧
  • 儿童房
  • 书房
  • 衣帽间
  • 卫生间
  • 阳台
  • 其他
  • 设计说明
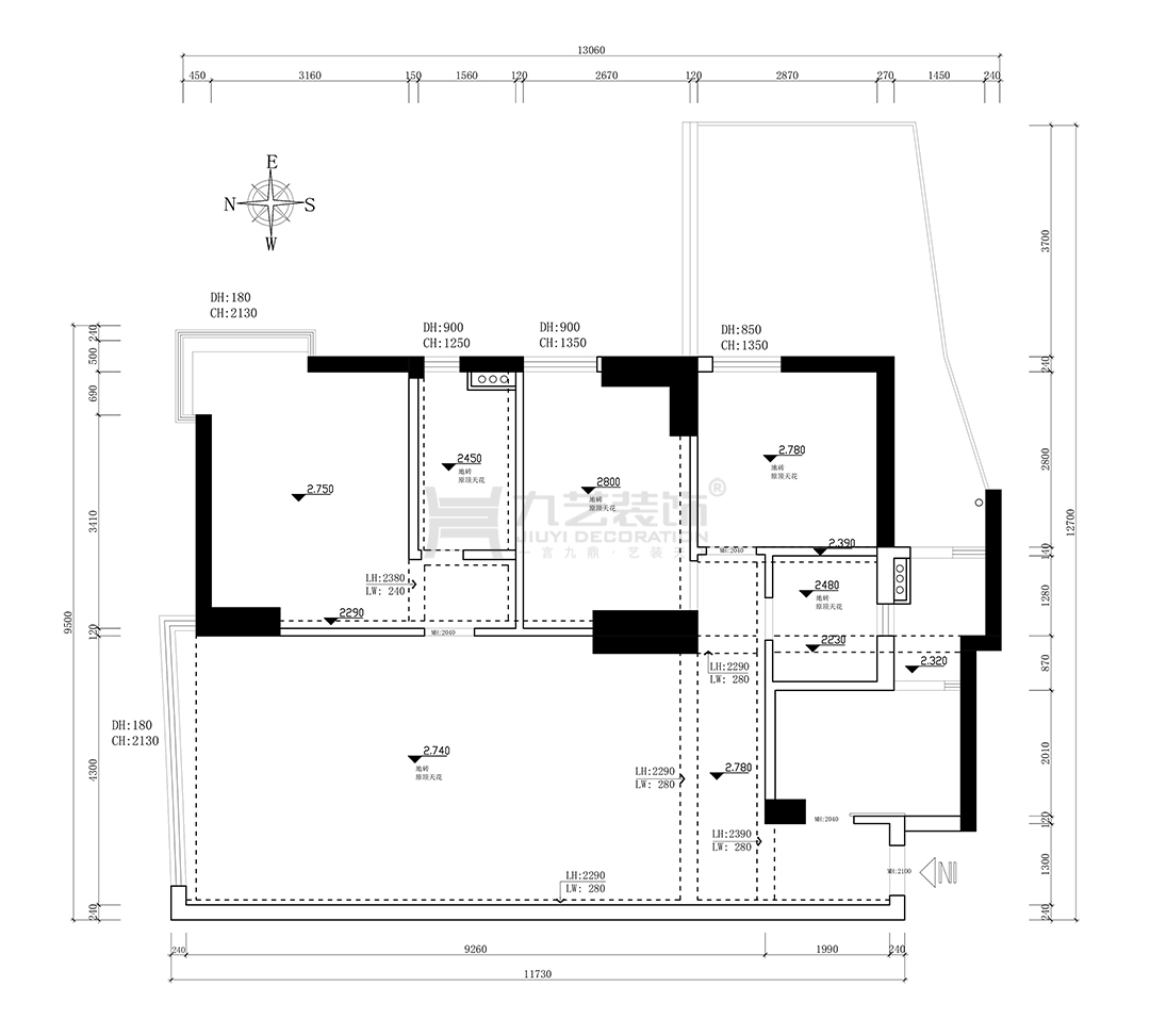
  • 户型图JIUYIDES
    原始户型图

    整个空间以简洁、明亮、实用为主要特点,通过巧妙的空间布局、色彩搭配以及灯光运用,打造出一个舒适宜人的居住环境。设计师在保留原有建筑结构的基础上,对各功能区域进行了重新规划与优化,使其既满足现代生活的功能需求,又兼具美观与艺术性,让旧房焕发出新的生机与活力。

  • 平面户型图
  • 玄关JIUYIDES
    玄关
  • 玄关
  • 客厅JIUYIDES
    客厅
  • 客厅
  • 客厅
  • 客厅
  • 客厅
  • 客厅
  • 餐厅JIUYIDES
    餐厅
  • 餐厅
  • 餐厅
  • 餐厅
  • 餐厅
  • 厨房JIUYIDES
    厨房
  • 主卧JIUYIDES
    主卧
  • 主卧
  • 主卧
    • 儿童房JIUYIDES
      儿童房
    • 儿童房
        • 卫生间JIUYIDES
          卫生间
        • 阳台JIUYIDES
          阳台
        • 阳台
        • 阳台

          整个空间以简洁、明亮、实用为主要特点,通过巧妙的空间布局、色彩搭配以及灯光运用,打造出一个舒适宜人的居住环境。设计师在保留原有建筑结构的基础上,对各功能区域进行了重新规划与优化,使其既满足现代生活的功能需求,又兼具美观与艺术性,让旧房焕发出新的生机与活力。

          本案设计师简介
          柏晓辉
          设计五部 设计经理
          从业年限:18 年 | 精选案例:12套
          擅长风格:港式、现代、轻奢、欧式、轻奢
          预约TA
          我家装修需要多少钱?10秒估算一下
          装修估算
          装修计算器已经有 16508 业主获取了装修预算
          • 您的称呼:
          • 手机号码:
          • 所在城市:
          • 房屋面积:
          装修预算报价为:184657
          • 材料费:18897
          • 人工费:24514
          • 设计费:4988 元
          • 管理费:8504 元
          * 报价价格仅供参考,实际装修价格以人工报价为准
          九艺简介
          乐动体育-乐动体育官方网站|LEDONGSPORTS 热线
              177-8888-9250
          地址:广州市天河区珠江新城花城大
          道2号名门大厦首层
          预约设计
          扫一扫,微信沟通
          扫一扫,微信沟通
          Copyright@2021-2025 architectephilippegobin.com All Rights Reserved 乐动体育-乐动体育官方网站|LEDONGSPORTS 版权所有
          《中华人民共和国电信与信息服务业务经营许可证》
          X
          我要预约
          装修顾问将在预约后24小时内与您联系
          • 您的姓名
          • 您的手机号
          • 房屋的面积
          * 为了您的利益和我们的口碑,我们将严格保密您的个人隐私
          X
          设计方案
          定制您的专属设计方案